Bildegalleri

Velkommen til Stegen 12- Leiligheten ligger i 2.etasje i bygg A
Nydelig 3-roms leilighet under oppføring i Os sentrum | Stor balkong og gode solforhold | Heis og garasje | Ferdig Q3-26
Prisantydning4 790 000 kr
Nøkkelinfo
- Boligtype
- Leilighet
- Eieform
- Eier (Selveier)
- Soverom
- 2
- Internt bruksareal
- 71 m² (BRA-i)
- Bruksareal
- 76 m²
- Eksternt bruksareal
- 5 m² (BRA-e)
- Balkong/Terrasse
- 15 m² (TBA)
- Byggeår
- 2025
- Energimerking
- A - Gul
- Rom
- 3
- Tomteareal
- 5 821 m² (eiet)
Fasiliteter
Barnevennlig
Balkong/Terrasse
Garasje/P-plass
Kabel-TV
Heis
Offentlig vann/kloakk
Parkett
Turterreng
Vaktmester-/vektertjeneste
Sentralt
Moderne
Rolig
Balansert ventilasjon
Om boligen
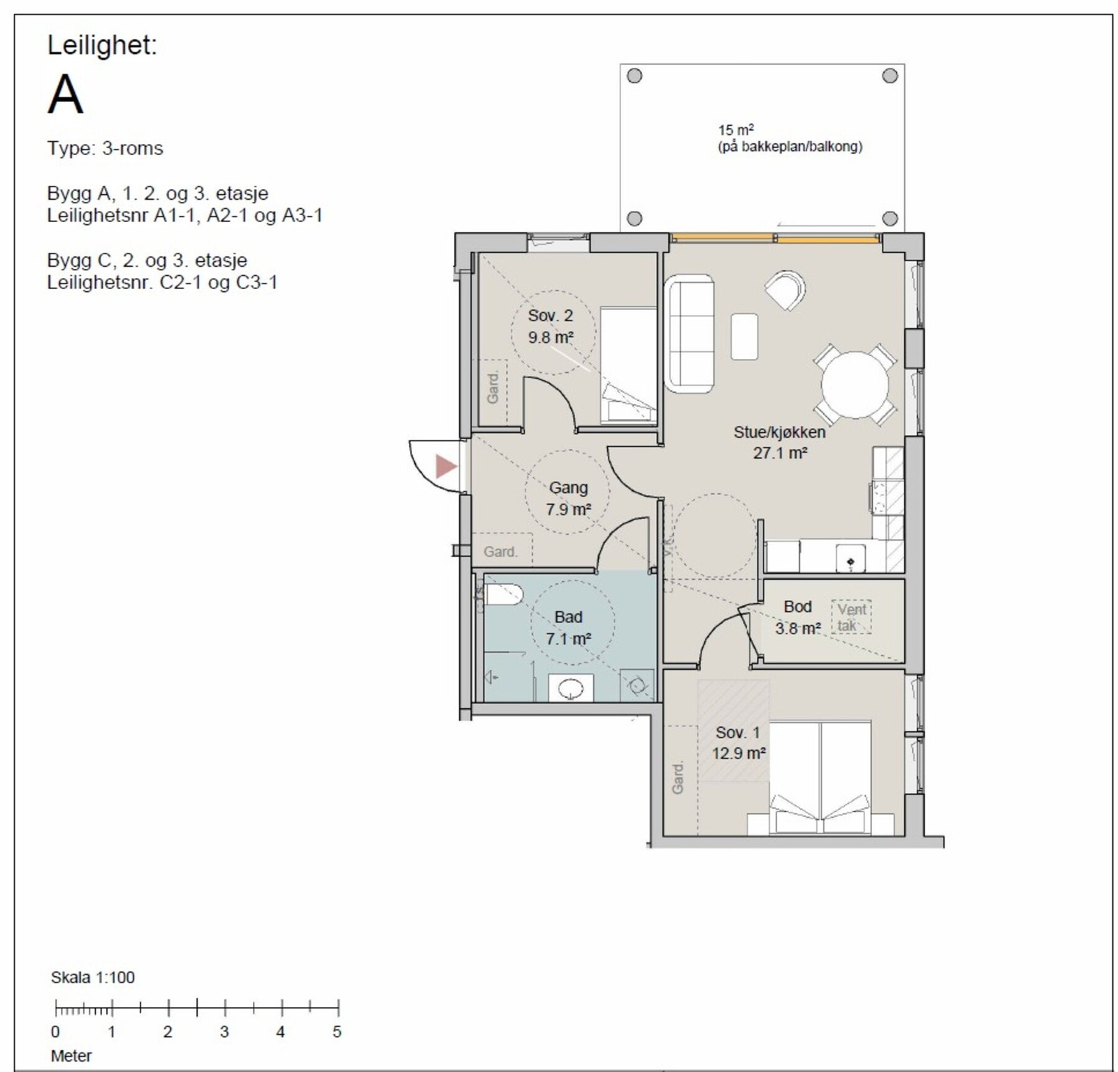
Vi har nå for salg en nydelig 3-romsleilighet under oppføring i prosjektet Stegen 12. Leiligheten ligger i 2. etasje i bygg A.
Leiligheten inneholder gang, åpen stue- og kjøkkenløsning, to soverom, bad og bod. Fra stuen er det utgang til herlig balkong på 15 kvm.
Leiligheten vil også ha parkering i lukket garasjeanlegg samt sportsbod. Boligen vil være klar til innflytting innen 3.kvartal 2026.
Videresalg av kontrakt
Selger har kjøpt retten til en prosjektert eierseksjon i prosjektet Stegen 12, leilighet A2-1. Selger skal nå selge leiligheten videre. Da selger ikke er å anse som forbruker etter bustadoppføringsloven vil salget skje etter bustadoppføringsloven.
Leiligheten inneholder gang, åpen stue- og kjøkkenløsning, to soverom, bad og bod. Fra stuen er det utgang til herlig balkong på 15 kvm.
Leiligheten vil også ha parkering i lukket garasjeanlegg samt sportsbod. Boligen vil være klar til innflytting innen 3.kvartal 2026.
Videresalg av kontrakt
Selger har kjøpt retten til en prosjektert eierseksjon i prosjektet Stegen 12, leilighet A2-1. Selger skal nå selge leiligheten videre. Da selger ikke er å anse som forbruker etter bustadoppføringsloven vil salget skje etter bustadoppføringsloven.
NB: Knappen for å vise hele beskrivelsen har kun en visuell effekt.
NB: Knappen for å vise hele beskrivelsen har kun en visuell effekt.
Salgsoppgaven beskriver vesentlig og lovpålagt informasjon om eiendommen
Se komplett salgsoppgaveNyttige lenker
Nærområdet

PrivatMegleren Vikebø & Jørgensen Nybygg
Kun det beste på dine vegne
Annonseinformasjon
| FINN-kode | 447251304 |
|---|---|
| Sist endret | 26. jan. 2026 05:23 |
| Referanse | 194260014 |
Annonsene kan være mangelfulle i forhold til lovpålagt opplysningsplikt. Før bindende avtale inngås oppfordres interessenter til å innhente komplett informasjon fra meglerforetaket, selger eller utleier.






