Bildegalleri

Nordvik Bolig v/Thomas Birkeland har gleden av å presentere Kaptein Mejlænders gate 20! Foto: Per Bendiksen.
Solgt
Bjergsted
Enebolig med utleiedel i 1. etasje- renoveringsobjekt med potensiale og sentral beliggenhet
Prisantydning5 590 000 kr
Nøkkelinfo
- Boligtype
- Enebolig
- Eieform
- Eier (Selveier)
- Soverom
- 4
- Internt bruksareal
- 199 m² (BRA-i)
- Bruksareal
- 212 m²
- Eksternt bruksareal
- 13 m² (BRA-e)
- Balkong/Terrasse
- 14 m² (TBA)
- Etasje
- 3
- Byggeår
- 1970
- Energimerking
- E - Oransje
- Tomteareal
- 734 m² (eiet)
Fasiliteter
Barnevennlig
Garasje/P-plass
Hage
Offentlig vann/kloakk
Peis/Ildsted
Turterreng
Om boligen
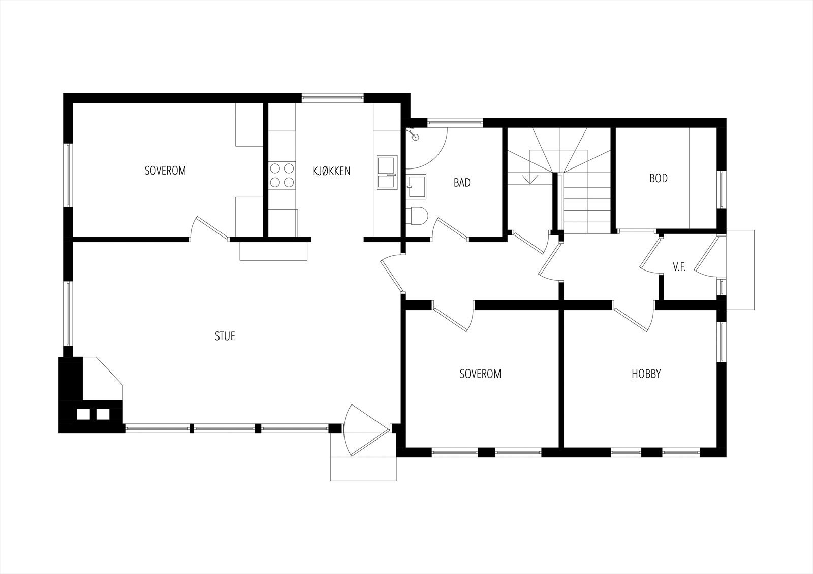
En romslig bolig beliggende i et attraktivt og veletablert boligområde med kort vei til Stavanger sentrum. Boligen har behov for renovering både innvendig og utvendig, men gir svært gode muligheter for å skape et hjem tilpasset egne ønsker og behov. Eiendommen er i dag innredet med utleiedel i 1. etasje, noe som kan gi fleksible bruksmuligheter. Her bor du sentralt, samtidig som du har rolige omgivelser og enkel tilgang til byens servicetilbud, kollektivtransport og fritidsmuligheter.
- Fleksibel og funksjonell planløsning
- Innredet utleiedel med intern inngang og muligheter for leieinntekter
- Carport og parkering i eget gårdsrom
- Egnet for både familiebolig, generasjonsbolig eller kombinasjon av egen bruk og utleie
- Rolig og etablert boligområde
- Gode kollektivforbindelser i nærhet
- Fleksibel og funksjonell planløsning
- Innredet utleiedel med intern inngang og muligheter for leieinntekter
- Carport og parkering i eget gårdsrom
- Egnet for både familiebolig, generasjonsbolig eller kombinasjon av egen bruk og utleie
- Rolig og etablert boligområde
- Gode kollektivforbindelser i nærhet
NB: Knappen for å vise hele beskrivelsen har kun en visuell effekt.
NB: Knappen for å vise hele beskrivelsen har kun en visuell effekt.
Salgsoppgaven beskriver vesentlig og lovpålagt informasjon om eiendommen
Se komplett salgsoppgaveNyttige lenker
Nærområdet
Nordvik Stavanger
Vi vet hva det er verdt
Annonseinformasjon
| FINN-kode | 447241701 |
|---|---|
| Sist endret | 02. feb. 2026 11:09 |
| Referanse | 43-0290/25 |
Annonsene kan være mangelfulle i forhold til lovpålagt opplysningsplikt. Før bindende avtale inngås oppfordres interessenter til å innhente komplett informasjon fra meglerforetaket, selger eller utleier.














































