Bildegalleri

I Frydenbergveien på Greverud skal det bygges moderne tomannsboliger der det er lagt vekt på kvalitet og arkitektur.
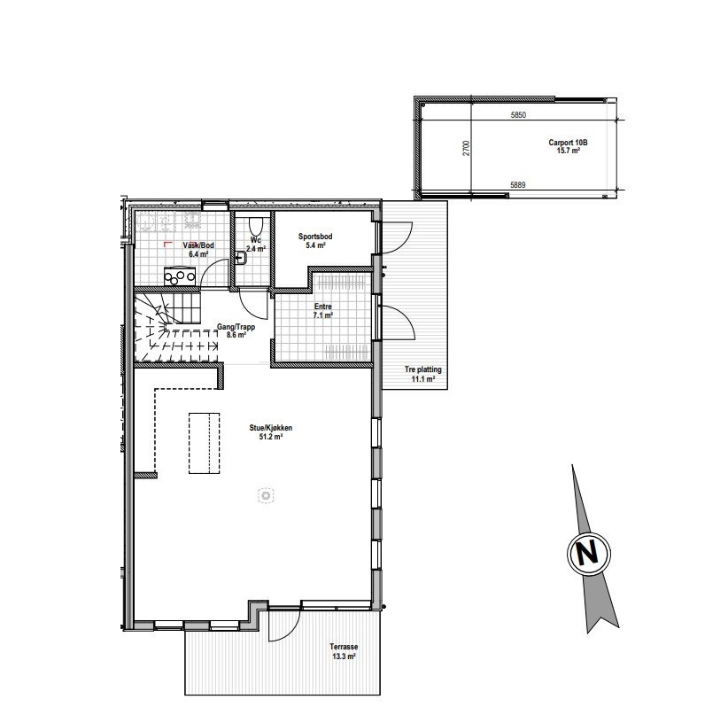
Prosjektert halvpart av tomannsbolig innerst i blindvei med sentral beliggenhet ca. 100 meter fra Greverud stasjon.
Prisantydning11 500 000 kr
Nøkkelinfo
- Boligtype
- Tomannsbolig
- Eieform
- Eier (Selveier)
- Soverom
- 4
- Internt bruksareal
- 176 m² (BRA-i)
- Bruksareal
- 191 m²
- Eksternt bruksareal
- 15 m² (BRA-e)
- Balkong/Terrasse
- 24 m² (TBA)
- Etasje
- 2
- Rom
- 5
- Tomt
- Eiet
Fasiliteter
Balkong/Terrasse
Barnevennlig
Bredbåndstilknytning
Garasje/P-plass
Golfbane
Hage
Kjæledyr tillatt
Ingen gjenboere
Offentlig vann/kloakk
Parkett
Peis/Ildsted
Rolig
Sentralt
Turterreng
Lademulighet
Balansert ventilasjon
Om boligen
Denne moderne boligen ligger innerst i en blindvei med rolig, skjermet beliggenhet og gode solforhold!
Første etasje byr på en romslig entré med god plass for garderobe, WC og stort vaskerom. Denne etasjen har også stor stue/spisestue med åpen kjøkkenløsning. Her får du store vindusflater som går helt ned til gulvet og takhøyde på ca. 270 cm. som gir en følelse av luksus. Fra stuen er det utgang til sørvendt terrasse og hage.
Andre etasje har fire soverom: Hovedsoverom med eget bad og walk-in garderobe, samt ytterligere tre soverom med god størrelse. Etasjen tilbyr i tillegg loftstue og eget bad med avsatt plass til badekar.
Frittstående carport og overflateparkeringsplass på egen gårdsplass.
Her får du svært gjennomtenkte løsninger, fleksible rom og flotte uteområder.
Første etasje byr på en romslig entré med god plass for garderobe, WC og stort vaskerom. Denne etasjen har også stor stue/spisestue med åpen kjøkkenløsning. Her får du store vindusflater som går helt ned til gulvet og takhøyde på ca. 270 cm. som gir en følelse av luksus. Fra stuen er det utgang til sørvendt terrasse og hage.
Andre etasje har fire soverom: Hovedsoverom med eget bad og walk-in garderobe, samt ytterligere tre soverom med god størrelse. Etasjen tilbyr i tillegg loftstue og eget bad med avsatt plass til badekar.
Frittstående carport og overflateparkeringsplass på egen gårdsplass.
Her får du svært gjennomtenkte løsninger, fleksible rom og flotte uteområder.
NB: Knappen for å vise hele beskrivelsen har kun en visuell effekt.
NB: Knappen for å vise hele beskrivelsen har kun en visuell effekt.
Salgsoppgaven beskriver vesentlig og lovpålagt informasjon om eiendommen
Se komplett salgsoppgaveNyttige lenker
Nærområdet
DNB Eiendom AS
Verdifulle salg
Annonseinformasjon
| FINN-kode | 447226692 |
|---|---|
| Sist endret | 03. mars 2026 08:15 |
| Referanse | 912240407 |
Annonsene kan være mangelfulle i forhold til lovpålagt opplysningsplikt. Før bindende avtale inngås oppfordres interessenter til å innhente komplett informasjon fra meglerforetaket, selger eller utleier.








