Bildegalleri

Hel horisontaldelt tomannsbolig nært sentrum
Nøkkelinfo
- Boligtype
- Tomannsbolig
- Eieform
- Eier (Selveier)
- Soverom
- 5
- Internt bruksareal
- 254 m² (BRA-i)
- Bruksareal
- 288 m²
- Eksternt bruksareal
- 34 m² (BRA-e)
- Byggeår
- 1951
- Tomteareal
- 907 m²
Fasiliteter
Om boligen
Denne flotte tomannsboligen i Kirkenes byr på romslige 254 kvm fordelt på 2 boenheter over tre etasjer og kjeller. Boligen har en god standard med blant annet garasje og 2 innkjørsler, 3 balkong/terrasser, peis og en koselig hage som skaper en avslappende atmosfære. Med en sentral beliggenhet og barnevennlige omgivelser, passer denne boligen perfekt for familier som ønsker komfortabel og praktisk boform. Ta kontakt for å oppleve denne flotte boligen selv!
Beliggenhet
Boligen ligger i en stille gate, med umiddelbar nærhet til skole, barnehage og Kirkenes Sentrum
Annet
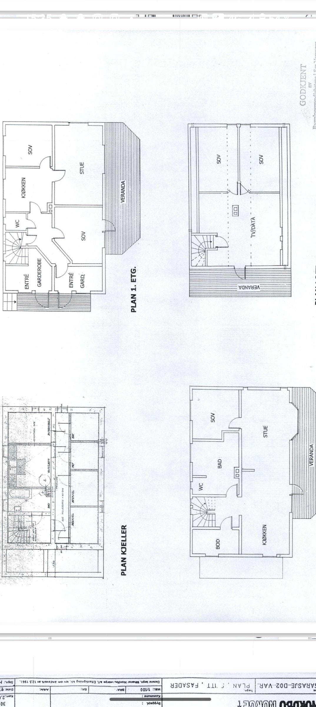
2 boenheter, med hovedleilighet i 2. Og 3. Etg og og sekundær leilighet i 1. Etasje, med bad og vaskerom i kjeller
Hovedleilighet:
1. Etasje: stor yttergang, med flislagt gulv og skyvedørsgarderobe.
2. Etasje: åpen stue-kjøkkenløsning, hovedsoverom, stort bad med badstue og bod/vaskerom, stor veranda mot hagen.
3. Etasje: stor loftstue med utgang til balkong med utsikt mot sentrum, 2 soverom
Sekundær leilighet
1. Etasje: yttergang med skyvedørsgarderobe, 2 soverom, toalettrom, kjøkken og stue.
Kjeller: gang, bad og vaskerom.
Kjeller: 4 boder, gangarealer, vaskerom, utvendig kjellerdør/trapp.
Uisolert garasje på 34 m2 med elektrisk portåpner.
Utleie
Begge boenheter er utleid pr. idag, ny kjøper overtar leieboere etter nærmere avtale.
Hovedleilighet utleid med 3 måneders oppsigelsestid, men med borett frem til 30.06, med mindre annet avtales.
Omkostninger
15 900 kr (HELP boligkjøperforsikring (valgfritt))
110 000 kr (Dokumentavgift)
545 kr (Tinglysing av pantedokument)
545 kr (Tinglysing av skjøte)
---
126 990 kr (Omkostninger totalt)
---
4 526 990 kr (Totalpris inkl. omkostninger)
NB: Regnestykket forutsetter at det kun tinglyses én låneobligasjon og at eiendommen selges til prisantydning.
Det tas forbehold om endringer i offentlige og private gebyrer.
Selger er selv ansvarlig for følgende gebyr:
545 kr (Panterett med urådighet)
Salgsoppgaven beskriver vesentlig og lovpålagt informasjon om eiendommen
Se komplett salgsoppgaveNyttige lenker
Nærområdet
Propr.no
Annonsene kan være mangelfulle i forhold til lovpålagt opplysningsplikt. Før bindende avtale inngås oppfordres interessenter til å innhente komplett informasjon fra meglerforetaket, selger eller utleier.







































