Bildegalleri

Karoline Frostad v/Nordvik Majorstuen har gleden av å presentere Schønings gate 34! Foto: Henrik Fjørtoft Sporsheim
Lys og arealeffektiv leilighet med sentral beliggenhet - Heisadkomst - Balkong - Vv og fyring inkl. - Ingen dok.avgift
Prisantydning3 990 000 kr
Nøkkelinfo
- Boligtype
- Leilighet
- Eieform
- Andel
- Soverom
- 1
- Internt bruksareal
- 28 m² (BRA-i)
- Bruksareal
- 30 m²
- Eksternt bruksareal
- 2 m² (BRA-e)
- Balkong/Terrasse
- 1 m² (TBA)
- Etasje
- 5
- Byggeår
- 1925
- Energimerking
- Rom
- 1
- Tomteareal
- 600 m² (eiet)
Fasiliteter
Balkong/Terrasse
Bredbåndstilknytning
Heis
Kjæledyr tillatt
Offentlig vann/kloakk
Rolig
Sentralt
Om boligen
Karoline L. K. Frostad v/Nordvik Majorstuen har gleden av å presentere Schønings gate 34!
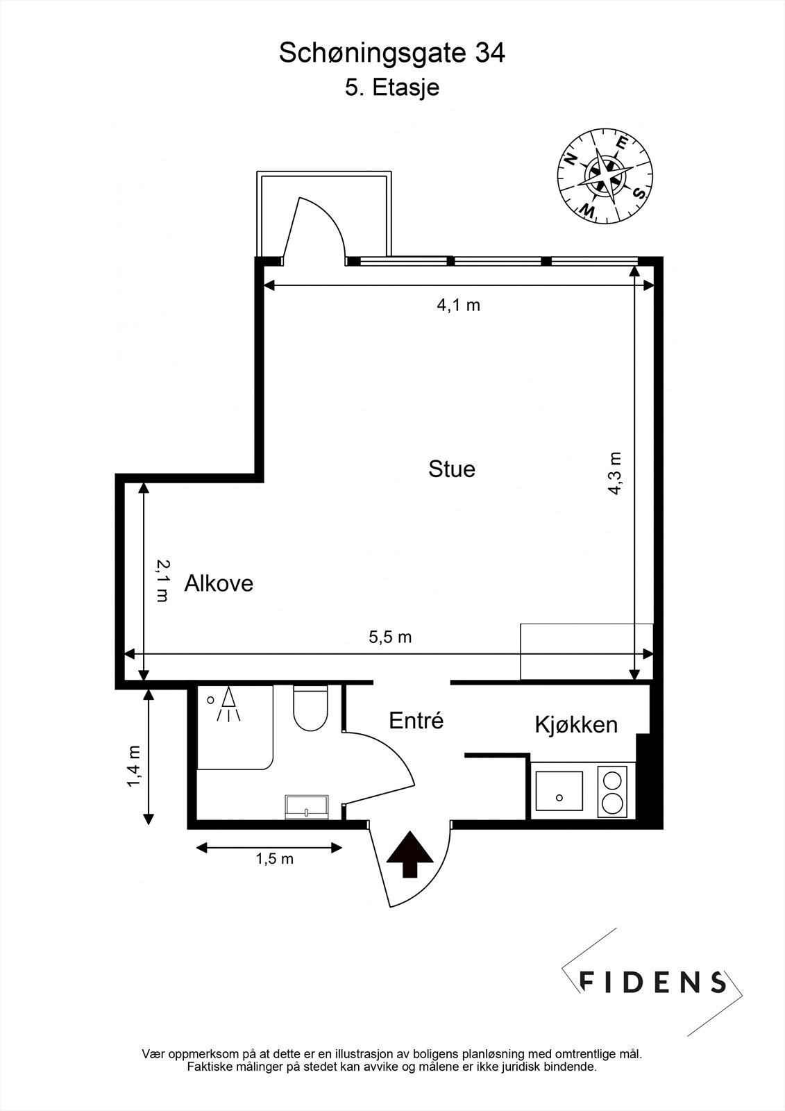
Leiligheten har en god og funksjonell planløsning med separat kjøkken og romslig oppholdsrom med plass til både sofakrok, spisebord og alkoveløsning. Her bor du høyt og fritt i byggets 5. etasje med heis, og med balkong ut fra stuen.
Attraktiv og sentral beliggenhet midt på Majorstuen, med alt av servicetilbud, kollektivtransport og byliv rett utenfor døren. Her bor man i et veletablert område, bestående av pene og klassiske bygårder. Butikker, kaféer, restauranter, barer og nisjeforretninger innen gangavstand.
Leiligheten har en god og funksjonell planløsning med separat kjøkken og romslig oppholdsrom med plass til både sofakrok, spisebord og alkoveløsning. Her bor du høyt og fritt i byggets 5. etasje med heis, og med balkong ut fra stuen.
Attraktiv og sentral beliggenhet midt på Majorstuen, med alt av servicetilbud, kollektivtransport og byliv rett utenfor døren. Her bor man i et veletablert område, bestående av pene og klassiske bygårder. Butikker, kaféer, restauranter, barer og nisjeforretninger innen gangavstand.
- Balkong ut fra stue
- 5.etasje med heis
- Bad rehabilitert av borettslaget i 2016
- Ingen dokumentavgift
- Varmtvann og fyring inkl.
- Sentral og tilbaketrukket beliggenhet
NB: Knappen for å vise hele beskrivelsen har kun en visuell effekt.
NB: Knappen for å vise hele beskrivelsen har kun en visuell effekt.
Salgsoppgaven beskriver vesentlig og lovpålagt informasjon om eiendommen
Se komplett salgsoppgaveNyttige lenker
Nærområdet
Nordvik Majorstuen
Annonseinformasjon
| FINN-kode | 447216027 |
|---|---|
| Sist endret | 02. apr. 2026 08:13 |
| Referanse | 8-0704/25 |
Annonsene kan være mangelfulle i forhold til lovpålagt opplysningsplikt. Før bindende avtale inngås oppfordres interessenter til å innhente komplett informasjon fra meglerforetaket, selger eller utleier.























