Bildegalleri

Eiendomsmegler 1 v/Kristian Sundland har gleden av å presentere Strindfjordvegen 27 A. (Foto: krokstad & Nervik - Jens Martin)
Grilstad Marina
Lekker 3-roms hjørneleilighet fra 2021 | Attraktiv beliggenhet | 2 Balkonger med gode sol- og utsiktsforhold | P-plass
Prisantydning7 990 000 kr
Nøkkelinfo
- Boligtype
- Leilighet
- Eieform
- Eier (Selveier)
- Soverom
- 2
- Internt bruksareal
- 89 m² (BRA-i)
- Bruksareal
- 96 m²
- Eksternt bruksareal
- 7 m² (BRA-e)
- Balkong/Terrasse
- 40 m² (TBA)
- Etasje
- 3
- Byggeår
- 2021
- Energimerking
- B - Lysegrønn
- Rom
- 3
- Tomteareal
- 3 933 m² (eiet)
Fasiliteter
Barnevennlig
Balkong/Terrasse
Garasje/P-plass
Kabel-TV
Heis
Offentlig vann/kloakk
Parkett
Utsikt
Vaktmester-/vektertjeneste
Sentralt
Bredbåndstilknytning
Moderne
Rolig
Balansert ventilasjon
Visning
mandag, 02. februar
11:30 – 12:15
Våre visninger har påmelding. Dette gjør vi for å kunne yte bedre service for våre kunder. Verdifullt for boligkjøper og for oss. Vi anbefaler at salgsoppgaven lastes ned digitalt før visning, og ring oss gjerne på forhånd for spørsmål om boligen. Passer ikke angitt tidspunkt, ta kontakt så finner vi en løsning. Skulle det mot formodning ikke være påmeldte til angitt visningstidspunkt vil ikke visning bli gjennomført.
mandag, 02. februar
16:15 – 17:00
Våre visninger har påmelding. Dette gjør vi for å kunne yte bedre service for våre kunder. Verdifullt for boligkjøper og for oss. Vi anbefaler at salgsoppgaven lastes ned digitalt før visning, og ring oss gjerne på forhånd for spørsmål om boligen. Passer ikke angitt tidspunkt, ta kontakt så finner vi en løsning. Skulle det mot formodning ikke være påmeldte til angitt visningstidspunkt vil ikke visning bli gjennomført.
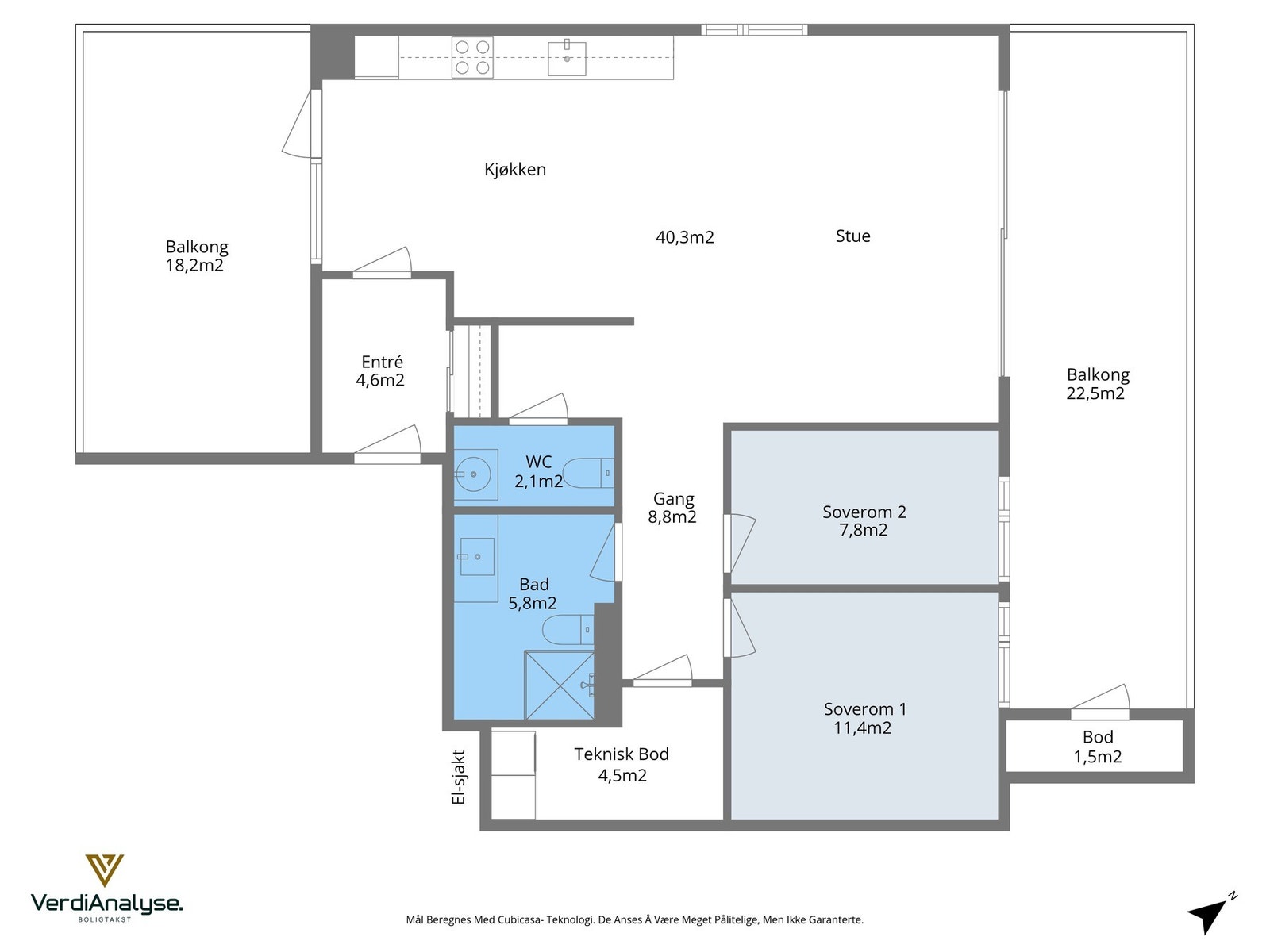
Om boligen
EiendomsMegler 1 v/ Kristian Sundland har gleden av å presentere Strindfjordvegen 27 A!
Nå har du muligheten til å sikre deg en særdeles lekker og moderne 3-roms hjørneleilighet beliggende i byggets 3. etasje, med etterspurt beliggenhet på Grilstad Marina. Leiligheten ble oppført i 2021 og holder en gjennomgående høy standard, noe som gjenspeiles i tilstandsrapporten fra takstmann med TG0/TG1 på samtlige punkter. Leiligheten byr på en svært god og funksjonell planløsning med blant annet romslig, åpen stue- og kjøkkenløsning, lekkert og moderne kjøkken, to gode soverom, pent flislagt bad, praktisk separat WC samt to herlige balkonger med nydelige sol- og utsiktsforhold. Leiligheten har en attraktiv beliggenhet i et populært og sjønært boligområde. Her bor man med umiddelbar nærhet til marina og båtliv, restaurant, dagligvarebutikk, treningssenter samt idylliske bade- og turområder.
Av flere foretrukne kvaliteter fremheves:
Velkommen til en hyggelig visning!
Nå har du muligheten til å sikre deg en særdeles lekker og moderne 3-roms hjørneleilighet beliggende i byggets 3. etasje, med etterspurt beliggenhet på Grilstad Marina. Leiligheten ble oppført i 2021 og holder en gjennomgående høy standard, noe som gjenspeiles i tilstandsrapporten fra takstmann med TG0/TG1 på samtlige punkter. Leiligheten byr på en svært god og funksjonell planløsning med blant annet romslig, åpen stue- og kjøkkenløsning, lekkert og moderne kjøkken, to gode soverom, pent flislagt bad, praktisk separat WC samt to herlige balkonger med nydelige sol- og utsiktsforhold. Leiligheten har en attraktiv beliggenhet i et populært og sjønært boligområde. Her bor man med umiddelbar nærhet til marina og båtliv, restaurant, dagligvarebutikk, treningssenter samt idylliske bade- og turområder.
Av flere foretrukne kvaliteter fremheves:
- Lekkert og stilrent kjøkken med integrerte hvitevarer og rikelig med skap- og benkeplass
- Åpen og romslig stue-/kjøkkenløsning med gode møbleringsmuligheter
- Praktisk innvendig bod, bod på balkong samt ekstern bod i kjeller
- Oppgradert og pent flislagt bad med alt man trenger, samt separat toalettrom
- To store balkonger med gode solforhold og flott sjøutsikt
- To romslige soverom, begge med utgang til balkong
- Parkering i felles P-kjeller med elbil-lader
Velkommen til en hyggelig visning!
NB: Knappen for å vise hele beskrivelsen har kun en visuell effekt.
NB: Knappen for å vise hele beskrivelsen har kun en visuell effekt.
Salgsoppgaven beskriver vesentlig og lovpålagt informasjon om eiendommen
Se komplett salgsoppgaveNyttige lenker
Nærområdet
EiendomsMegler 1 Grilstadporten
Vi loser deg trygt gjennom hele boligsalget
Annonseinformasjon
| FINN-kode | 447205739 |
|---|---|
| Sist endret | 23. jan. 2026 12:49 |
| Referanse | 33250121 |
Annonsene kan være mangelfulle i forhold til lovpålagt opplysningsplikt. Før bindende avtale inngås oppfordres interessenter til å innhente komplett informasjon fra meglerforetaket, selger eller utleier.







































