Bildegalleri

Strøken enebolig fra 2024 på endetomt i et familievennlig strøk på Nardo.
Nardo
Strøken enebolig fra 2024 på endetomt i et familievennlig strøk på Nardo. Romslig og solrik hage. Carport m/lader.
Prisantydning8 490 000 kr
Nøkkelinfo
- Boligtype
- Enebolig
- Eieform
- Eier (Selveier)
- Soverom
- 3
- Internt bruksareal
- 138 m² (BRA-i)
- Bruksareal
- 143 m²
- Eksternt bruksareal
- 5 m² (BRA-e)
- Balkong/Terrasse
- 22 m² (TBA)
- Etasje
- 2
- Byggeår
- 2024
- Energimerking
- B - Lysegrønn
- Tomteareal
- 883 m² (eiet)
Fasiliteter
Barnevennlig
Balkong/Terrasse
Garasje/P-plass
Offentlig vann/kloakk
Parkett
Peis/Ildsted
Sentralt
Moderne
Rolig
Lademulighet
Balansert ventilasjon
Om boligen
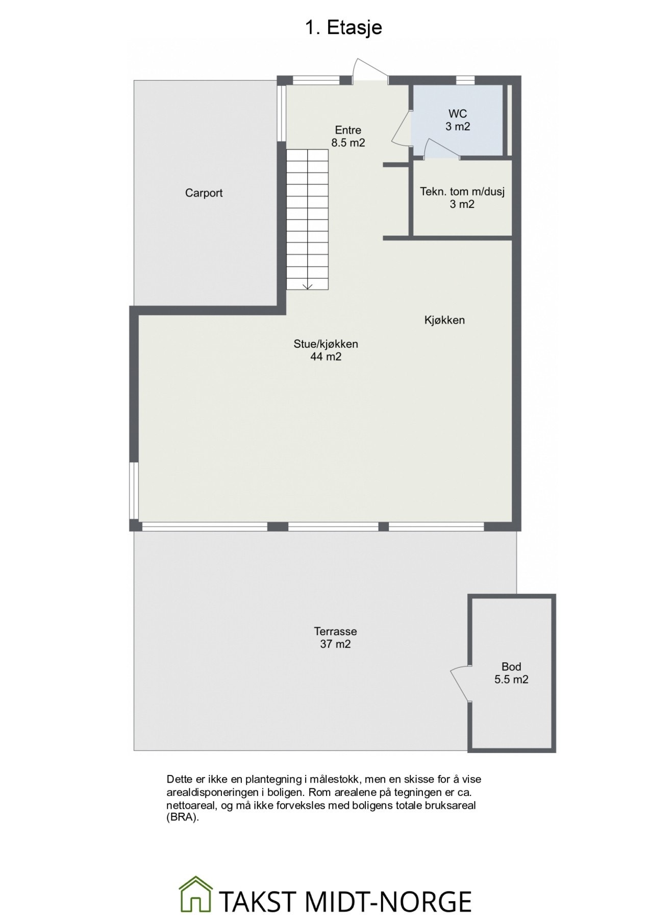
Lekker enebolig med påkostet standard fra 2024. Boligen har en attraktiv beliggenhet i et barnevennlig strøk på Nardo, med kort vei til sentrum og daglige fasiliteter. Huset har endeplassering med god plass omkring, carport m/lader og hage.
- Nybygg-garanti til 2029.
- God standard med oppgraderte tilvalg fra eier.
- Lekker 1-stavsparkett gjennom alle oppholdsrom.
- Gulvvarme på stue og gang i 1. etasje, samt våtrom.
- Stilfullt Sigdal-kjøkken med integrerte hvitevarer.
- Lys og privat stue med utgang til markterrasse og plenareal.
- Romslig hovedbad i 2. etasje, og bad/vaskerom i 1. etasje.
- Tre romslige soverom i overetasjen samt ekstra stue.
- Carport med lader og ekstra oppstillingsplass.
- God lagringsplass i bod ved carport samt egen hagebod.
- Ypperlig beliggenhet på Nardo med knappe 5-10 min sykkelavstand til NTNU og St. Olavs. Svært godt kollektivtilbud, og 5 min gange til Nardocenteret.
- Nybygg-garanti til 2029.
- God standard med oppgraderte tilvalg fra eier.
- Lekker 1-stavsparkett gjennom alle oppholdsrom.
- Gulvvarme på stue og gang i 1. etasje, samt våtrom.
- Stilfullt Sigdal-kjøkken med integrerte hvitevarer.
- Lys og privat stue med utgang til markterrasse og plenareal.
- Romslig hovedbad i 2. etasje, og bad/vaskerom i 1. etasje.
- Tre romslige soverom i overetasjen samt ekstra stue.
- Carport med lader og ekstra oppstillingsplass.
- God lagringsplass i bod ved carport samt egen hagebod.
- Ypperlig beliggenhet på Nardo med knappe 5-10 min sykkelavstand til NTNU og St. Olavs. Svært godt kollektivtilbud, og 5 min gange til Nardocenteret.
NB: Knappen for å vise hele beskrivelsen har kun en visuell effekt.
NB: Knappen for å vise hele beskrivelsen har kun en visuell effekt.
Salgsoppgaven beskriver vesentlig og lovpålagt informasjon om eiendommen
Se komplett salgsoppgaveNyttige lenker
Nærområdet

PrivatMegleren Trondheim
Kun det beste på dine vegne
Annonseinformasjon
| FINN-kode | 447087375 |
|---|---|
| Sist endret | 29. jan. 2026 05:06 |
| Referanse | 114260005 |
Annonsene kan være mangelfulle i forhold til lovpålagt opplysningsplikt. Før bindende avtale inngås oppfordres interessenter til å innhente komplett informasjon fra meglerforetaket, selger eller utleier.



























