Bildegalleri

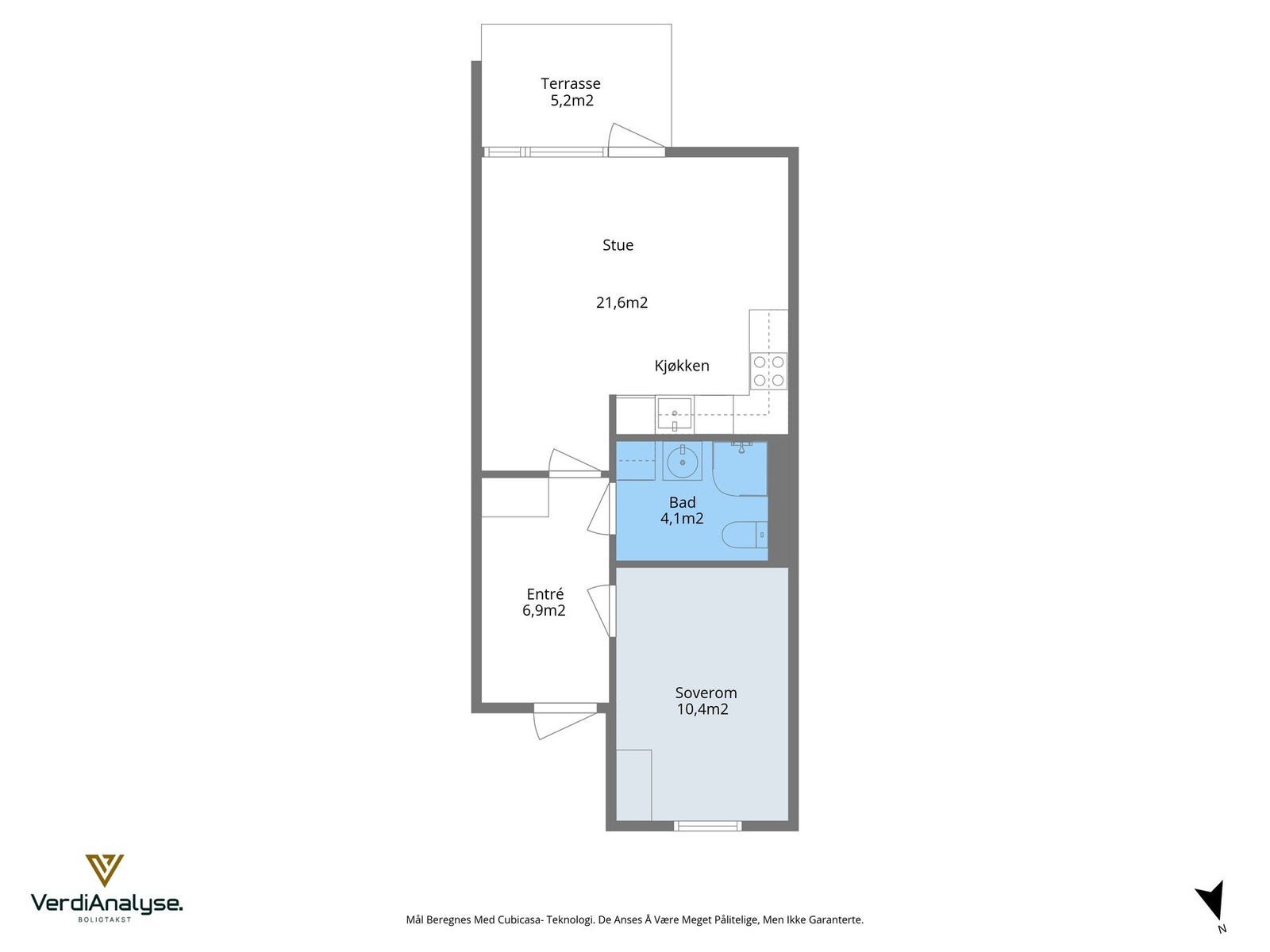
Leiligheten har en lys og luftig stue- og kjøkkenløsning på 21,6 kvadratmeter.
Moholt
Lys og flott 2-roms selveier, med moderne kjøkken og delikat bad. Solrik terrasse og direkte tilgang til grøntarealer.
Prisantydning2 950 000 kr
Nøkkelinfo
- Boligtype
- Leilighet
- Eieform
- Eier (Selveier)
- Soverom
- 1
- Internt bruksareal
- 45 m² (BRA-i)
- Bruksareal
- 48 m²
- Eksternt bruksareal
- 3 m² (BRA-e)
- Balkong/Terrasse
- 5 m² (TBA)
- Etasje
- 1
- Byggeår
- 2003
- Energimerking
- C - Lysegrønn
- Rom
- 2
- Tomteareal
- 19 598 m² (eiet)
Fasiliteter
Balkong/Terrasse
Garasje/P-plass
Kabel-TV
Offentlig vann/kloakk
Turterreng
Vaktmester-/vektertjeneste
Sentralt
Bredbåndstilknytning
Moderne
Rolig
Visning
torsdag, 05. februar
15:00 – 16:00
Våre visninger har påmelding. Dette gjør vi for å kunne yte bedre service for våre kunder. Verdifullt for boligkjøper og for oss. Vi anbefaler at salgsoppgaven lastes ned digitalt før visning, og ring oss gjerne på forhånd for spørsmål om boligen. Passer ikke angitt tidspunkt, ta kontakt så finner vi en løsning. Skulle det mot formodning ikke være påmeldte til angitt visningstidspunkt vil ikke visning bli gjennomført.
Om boligen
LYS OG FLOTT 2-ROMS SELVEIER.
- Utsøkt beliggenhet, i enden av skjermet og rolig felt på Moholt
- Egen solrik terrasse, åpent og fint beliggende, i direkte kontakt med store grøntarealer
- Lys og luftig stue- og kjøkkenløsning på 21,6 kvm
- God plass til spisebord
- Hvitt, stilrent kjøkken. Integrert platetopp, komfyr og oppvaskmaskin
- Delikat flislagt bad. Behagelig gulvvarme. Stilig dusjhjørne. Opplegg for vaskemaskin
- Kort vei til Estenstadmarka
- Kjøkken oppgradert i 2015. Bad oppgradert av fagfolk i 2019
- Stort og fint soverom på 10,4 kvm
- Lys og romslig gang på 6,9 kvm. God plass til oppbevaring
- Egen ekstern bod og felles sykkelbod
- Parkering og gjesteparkering
- Fellesutgifter inkl. kabel-tv/internett, bygningsforsikring, vaktmester og vedlikehold
- Nært NTNU på Gløshaugen. Kort vei til buss og butikk
NB: Knappen for å vise hele beskrivelsen har kun en visuell effekt.
NB: Knappen for å vise hele beskrivelsen har kun en visuell effekt.
Salgsoppgaven beskriver vesentlig og lovpålagt informasjon om eiendommen
Se komplett salgsoppgaveNyttige lenker
Nærområdet
EiendomsMegler 1 Valentinlyst
Vi loser deg trygt gjennom hele boligsalget
Annonseinformasjon
| FINN-kode | 447080024 |
|---|---|
| Sist endret | 29. jan. 2026 10:41 |
| Referanse | 34260001 |
Annonsene kan være mangelfulle i forhold til lovpålagt opplysningsplikt. Før bindende avtale inngås oppfordres interessenter til å innhente komplett informasjon fra meglerforetaket, selger eller utleier.
























