Bildegalleri

Velkommen til Øystein Møylas veg 10, presentert av Johannes Tømmerås!

Lerkendal/Sorgenfri

FLOTT 3-ROMS TOPPLEILIGHET MED FIN UTSIKT & SVÆRT GODE SOLFORHOLD FRA BALKONGEN. Lave felleskostnader. P-plass. 3 boder

Prisantydning3 450 000 kr
Totalpris
3 537 340 kr
Omkostninger
87 340 kr
Felleskost/mnd.
2 250 kr
Fellesformue
9 346 kr
Eiendomsskatt
4 055 kr per år
Formuesverdi
790 857 kr

Nøkkelinfo

Boligtype
Leilighet
Eieform
Eier (Selveier)
Soverom
2
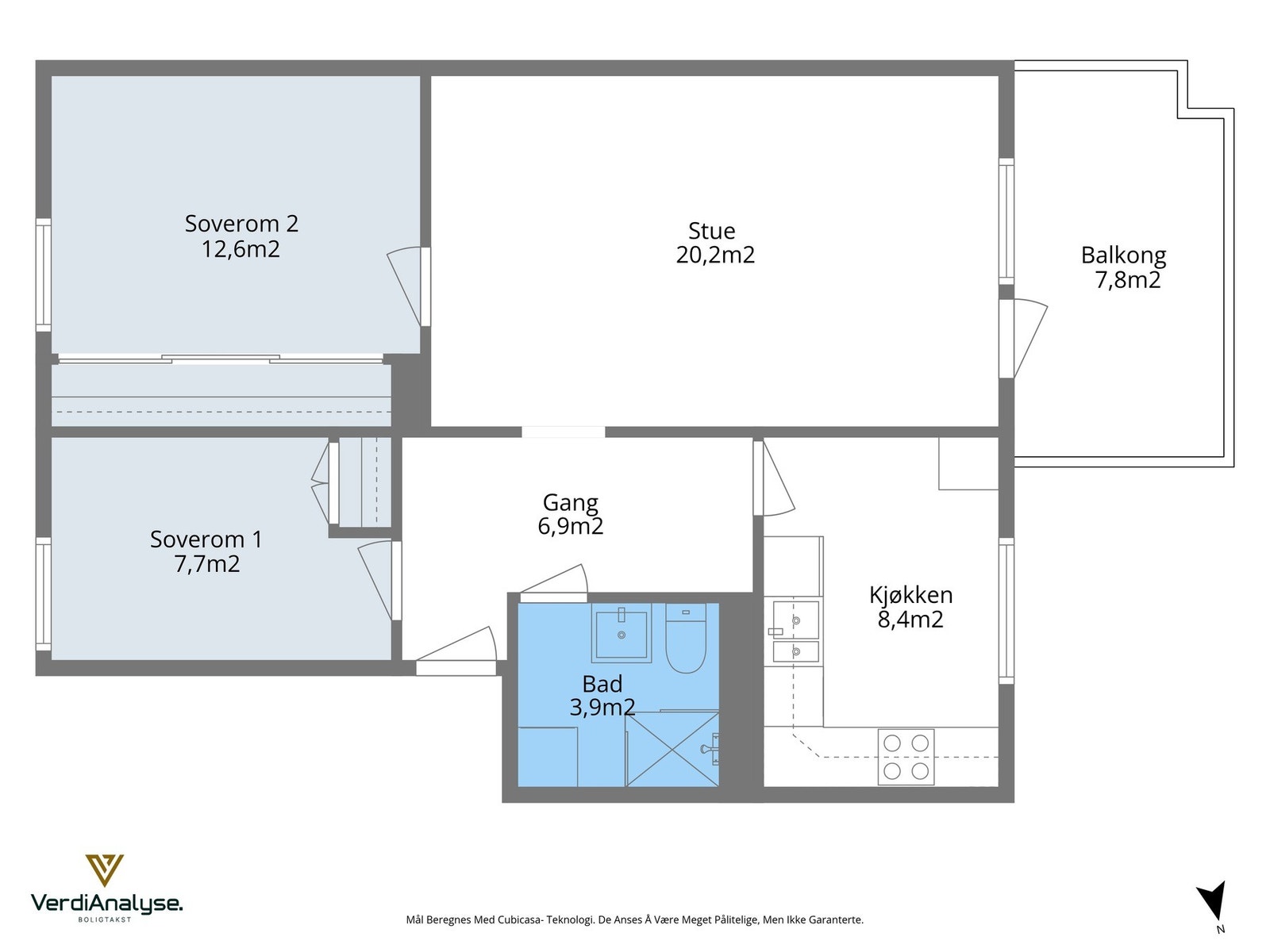
Internt bruksareal
64 m² (BRA-i)
Bruksareal
80 m²
Eksternt bruksareal
16 m² (BRA-e)
Balkong/Terrasse
8 m² (TBA)
Etasje
3
Byggeår
1960
Energimerking
G - Rød
Rom
3
Tomteareal
3 661 m² (eiet)

Les mer om bruksareal her

Fasiliteter

Barnevennlig
Balkong/Terrasse
Garasje/P-plass
Kabel-TV
Offentlig vann/kloakk
Ingen gjenboere
Peis/Ildsted
Turterreng
Utsikt
Sentralt
Bredbåndstilknytning

Visning

Ta kontakt for å avtale visning.Visningspåmelding

Om boligen

Velkommen til Øystein Møylas veg 10, presentert av Johannes Tømmerås! En flott 3-roms selveierleiligheten. Leiligheten har en sentralt beliggenhet ved Lerkendal som ligger i kort avstand fra NTNU og St. Olavs.

- Solrik balkong på 7,8 kvm og fin utsikt av nærområdet
- Stor stue med plass til spisestue på 20 kvm.
- To gode soverom
- Lave felleskostnader
- Leiligheten har vedovn som gir god varme i vinterhalvåret
- Kjøkkenet har fått TG1 (utenom avtrekk)
- Elektriske anlegg har fått TG1 - utført EL-kontroll 2021
- 3 boder gir leiligheten ekstra god lagringsplass.
- Muligheter til parkering på felles biloppstilingsplass.
- Koselig felles hage som kan benyttes av beboerne
- Blokken ligger tilbaketrukket ved enveiskjørt gate og har en vestvendt balkong med gode solforhold.
- Nye vinduer og balkongdør i leiligheten, regi sameiet 2017.

Velkommen til en hyggelig visning!

Salgsoppgaven beskriver vesentlig og lovpålagt informasjon om eiendommen

Se komplett salgsoppgave

Nærområdet

Annonseinformasjon

FINN-kode447002468
Sist endret29. jan. 2026 09:10
Referanse37250311

Rapporter annonse

Annonsene kan være mangelfulle i forhold til lovpålagt opplysningsplikt. Før bindende avtale inngås oppfordres interessenter til å innhente komplett informasjon fra meglerforetaket, selger eller utleier.