Bildegalleri

Velkommen til Løkendalen 72, presentert av Malin Goa i Nordvik Lillestrøm!
Skedsmokorset / Løkendalen
Attraktiv og familievennlig halvpart av tomannsbolig. Innerst i blindevei. Garasje. Store vestvendte uteplasser
Prisantydning6 990 000 kr
Nøkkelinfo
- Boligtype
- Tomannsbolig
- Eieform
- Eier (Selveier)
- Soverom
- 3
- Internt bruksareal
- 147 m² (BRA-i)
- Bruksareal
- 173 m²
- Eksternt bruksareal
- 26 m² (BRA-e)
- Etasje
- 2
- Byggeår
- 2001
- Energimerking
- C - Lysegrønn
- Rom
- 4
- Tomteareal
- 316 m² (eiet)
Fasiliteter
Balkong/Terrasse
Barnevennlig
Garasje/P-plass
Offentlig vann/kloakk
Peis/Ildsted
Rolig
Sentralt
Turterreng
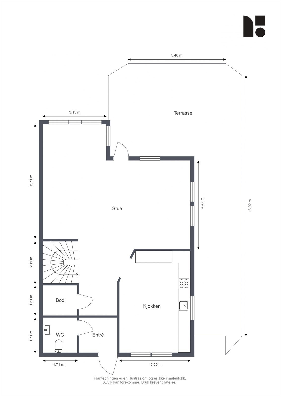
Om boligen
Velkommen til en gjennomført og tiltalende halvpart av vertikaldelt tomannsbolig med attraktiv beliggenhet. Boligen byr på lyse og luftige oppholdsrom, gjennomtenkte løsninger og en lun atmosfære som gir en følelse av kvalitet og komfort. Med garasje og stor, solrik uteplass ligger alt til rette for et behagelig og representativt hjem perfekt for deg som verdsetter både funksjonalitet og estetikk.
Høydepunkter:
- Romslig stue med gode lysforhold og peis
- Kjøkken oppgradert i 2020
- Skreddersydd walk-in garderobe (2023)
-Skreddersydd walk-in garderobe ved entré (2020)
- Vannbåren varme (ny pumpe 2023)
- Romslig bad, toalettrom og separat vaskerom
- Garasje med el-bil lader, isolert bod og hems
- Store uteplasser med gode solforhold. Terrasse på hele 50 kvm!
- Romslig gulvbelagt kaldloft
Høydepunkter:
- Romslig stue med gode lysforhold og peis
- Kjøkken oppgradert i 2020
- Skreddersydd walk-in garderobe (2023)
-Skreddersydd walk-in garderobe ved entré (2020)
- Vannbåren varme (ny pumpe 2023)
- Romslig bad, toalettrom og separat vaskerom
- Garasje med el-bil lader, isolert bod og hems
- Store uteplasser med gode solforhold. Terrasse på hele 50 kvm!
- Romslig gulvbelagt kaldloft
NB: Knappen for å vise hele beskrivelsen har kun en visuell effekt.
NB: Knappen for å vise hele beskrivelsen har kun en visuell effekt.
Salgsoppgaven beskriver vesentlig og lovpålagt informasjon om eiendommen
Se komplett salgsoppgaveNyttige lenker
Nærområdet
Nordvik Lillestrøm
Annonseinformasjon
| FINN-kode | 446995890 |
|---|---|
| Sist endret | 20. feb. 2026 15:08 |
| Referanse | 60-0457/25 |
Annonsene kan være mangelfulle i forhold til lovpålagt opplysningsplikt. Før bindende avtale inngås oppfordres interessenter til å innhente komplett informasjon fra meglerforetaket, selger eller utleier.












































