Bildegalleri

Velkommen til Verfts veien 4, presentert av Eiendomsmegler1 ved Jesper Snekkestad ! Foto: Eiendomsfotograf AS.
Arkitekttegnet og innholdsrikt skipperhus m/moderniseringsbehov | Supersentralt | 760 m² eiertomt | Høye innertak!
Nøkkelinfo
- Boligtype
- Enebolig
- Eieform
- Eier (Selveier)
- Soverom
- 3
- Internt bruksareal
- 193 m² (BRA-i)
- Bruksareal
- 217 m²
- Eksternt bruksareal
- 17 m² (BRA-e)
- Innglasset balkong
- 7 m² (BRA-b)
- Balkong/Terrasse
- 6 m² (TBA)
- Etasje
- 3
- Byggeår
- 1922
- Energimerking
- G - Rød
- Rom
- 11
- Tomteareal
- 761 m² (eiet)
Fasiliteter
Visning
Beliggenhet
VELKOMMEN VERFTSVEIEN 4 VIS A VIS KALDNES BRYGGE - BO MED KOMBINASJON AV "BYEN I FRONT OG REKREASJONOMRÅDER I BAKKANT":
Eiendomsmegler 1 ved Jesper Snekkestad har gleden av å ønske velkommen til en spennende eiendom med supersentral og bynær beliggenhet på Kaldnes, vis a vis Kaldnes brygge.
Verfts veien på Kaldnes, i den del av av området som tilhører Tønsberg kommune, har fått navnet sitt etter den omfattende skipsbyggingshistorien som i sin tid fant sted i området. Veien ligger i hjertet av det som i nesten 100 år var et sentrum for maritim industri som også involverte bygging av hvalfangstskuter og store skip.
På en solfylt og pent opparbeidet hagetomt i nummer 4 i gaten, finner man dette stilfulle og klassiske "skipperhuset", tegnet i 1922 av arkitekt E. Ander Nilssen. Tomten er en selveiertomt på 760 m². Eiendommen fremstår med vedlikeholds- og oppgraderingsbehov og oppussing/modernisering må påregnes for å løfte bygningstandarden til dagens forventninger til bokomfort og bygningsstandard. Vi vil likevel bemerke at boligens innhold, bygningsstil og utstrakte bruk av høye innvendige himlinger danner et flott utgangspunkt for å skape et vakkert og stilfullt hjem! I "nyere tid" har eier blant annet skiftet ut boligens takstein, så og si alle vinduer i 1. og 2. etasje er skiftet ut og det elektriske anlegget er omfattende modernisert.
Huset byr på god plass og ikke minst rikelig med boder og lagringsplass. Et av husets "signaturer" er arealgenerøse og innbydende rom med innslag av høye himlinger og særpregede vindusløsninger. 1. etasjen byr på en hyggelig hall/entre, to romslige kombinerte stuer, skjermet spisekjøkken, glassveranda, bad og et romslig soverom. I 2. etasje finner man ytterligere tre gode soverom, i tillegg inneholder etasjen foruten en stor gang med oppgang til loft både kott, boder og walk-in rom/alkove. Det er uinnredet underetasje med både innvendig og utvendig tilkomst.
Familiens kjøretøy plasseres trygt og godt i frittstående garasje og på eiendommens gårdsplass.
På vegne av selger og megler ønskes du velkommen til visning.
HØYDEPUNKT:
º En klassisk og stilfull enebolig fra 1922 med god plass og mange muligheter!
º Arkitekttegnet av arkitekt E. Anker Nilssen
º Huset har betydelige vedlikeholds- og oppgraderingsbehov
º Kun få steinkast til gangbroen mellom Kaldnes og Tønsberg brygge
º Supersentral beliggenhet tett på Tønsberg sentrum!
º 2-3 minutter å gå til nærmeste dagligvareforretning
º Kombinasjon av "byen i front og rekreasjonsområder i bakkant"
º Selveiertomt på 760 m² med pent opparbeidet hageanlegg
º 1. etasje med store stuer, kjøkken, bad, soverom og glassveranda
º 2. etasje med tre store soverom og diverse lagringsrom
º Innholdsrik uinnredet underetasje
º Rikelig med boder og oppbevaringsplass i underetasje og på loft
º 1995: Lagt ny takstein på boligen - vasket og renset i 2008
º 2008: Utskifting av de fleste vinduer i 1. etasje og 2. etasje
º 2017: Modernisering/utskifting av betydelig del av elektrisk anlegg
º Særpreget garasje - oppført i murstein med renovert yttermur i 2016
º Ingen boplikt!
BELIGGENHET:
På Kaldnes bor man perfekt Tønsbergs yrende byliv rett innen kort rekkevidde til fots samtidig som er det er kort vei til både maritime opplevelse, rekreasjonsområder i skog og mark og ikke minst sentrumsfasiliteter.
Med gangbroen fra Kaldnes er det kort gangavstand til Tønsberg sentrum. Det er ca. 10 minutter å gå til Tønsberg torv og kun få steinkast til Kaldnes brygge hvor man finner en levende bydel med bl.a. ulike forretninger, dagligvare, spisesteder, cafèer, bystrand og en rekke kulturtilbud.
Teieskogen ligger innen kort gangavstand og byr på flotte rekreasjonsmuligheter, lange turstuer og lysløype i vinterhalvåret.
Eiendommen ligger ca. 100 km fra Oslo og har enkel adkomst til E 18 med tilførselsveien i Kjelletunnelen fra Kilen. E-18 fra Tønsberg til Oslo har firefelts motorvei hele veien, noe som gjør at kjøreturen til Oslo gjøres unna på drøye timen!
Utmerket kommunikasjonstilbud både med buss til Tønsberg sentrum og togforbindelse fra Tønsberg jernbanestasjon. Til Torp Flyplass er det ca. 25 minutter med bil som ved normale ruteavganger har daglige flyvninger til en rekke Europeiske byer. Det nye dobbeltsporet på Vestfoldbanen fram til Tønsberg skal være klart til bruk i nær fremtid. Det planlegges da fire tog i timen mellom Tønsberg og Oslo-regionen og en reisetid på under en time.
Se for øvrig nabolagsprofil for beskrivelse av områdets fasiliteter.
Innhold
Boligen er oppført over tre etasjeplan hvor 1. etasje og 2. etasje er innredet og underetasjen er uinnredet. Huset har i tillegg til dette et lagringsloft.
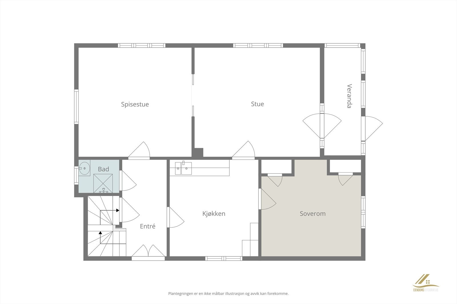
1. ETASJE:
Noe overbygget INNGANGPARTI med trapp opp fra eiendommens gårdsplass.
HALL/ENTRÈ med åpen trappoppgang til 2. etasje og lukket trappenedgang til underetasje.
BADEROM med dusjvegg og servant.
Romsilg KJØKKEN med spiseplass - kjøkkenet har inngang fra både hall/entrè og hjemmets stuesone.
Meget innholdsrik og romlig STUE-/SPISESTUE med verandadør til en mindre GLASSVERANDA og hage. Stuesonen består av to kombinerte stuer, adskilt av dobbel skyvedør.
2. ETASJE:
GANG/SOVEROMSHALL med tilknyttet kott og tilknyttet bod/lagringsrom. Det er åpen trappegang ned til 1. etasje, og gangen har også tilkomst til til lagringsloft via trappestige i himling.
3 SOVEROM - alle av god størrelse. Hovedsoverommet har utgang til balkong med flott utsikt, mens ett av de øvrige soverommene har inngang til walk-in bod/alkove på hver side av naturlig plassering av seng i rommet.
UNDERETASJE:
Denne etasjen har inngang både innvendig fra lukket trappegang i 1. etasje i tillegg til utvendig inngang fra "trappehals" fra hagen, til sides for husets hovedinngangsparti. Etasjen er i sin helhet uinnredet og inndelt med to store og åpne hobbyrom/lagringsrom, vaskekjeller, gang med oppgang, rom med wc (sokkeltoalett) og en mindre bod/lagringsrom.
Det er krypkjeller under en liten del av soverommet mot sør, med adkomst via vindu i mur.
FRITTSTÅENDE GARASJEBYGNING:
På eiendommens nordvestre hjørne, ved gårdsplass, er det oppført frittstående garasje fra ca. 1946. Garasjen er på ca. 17 m² (innvendig areal - BRA-i) og er oppført med murte vegger som er utvendig pusset. Yttertaket er har saltak, konstruert i treverk med bærende undertak og takshingel. Det er innkjøring via to-fløyet sidehengslet port. Garasjen har også sideinngangsdør fra hagen. Eier opplyser at takshingel er lagt om, og det er gjort en jobb med fuger og utvendig slamming av utvendige vegger i 2016.
PLANSKISSER:
Vedlagt følger planskisser over husets tre etasjeplan. Vi gjør oppmerksom på at disse kun er av illustrativ karakter og ikke er i målestokk. Det tas også forbehold om avvik fra stedlig løsning og innredning. Loft og garasje følger ikke av planskissene.
Tomt
Eiet tomt på 760,60 m².
Eiendommen har en romslig, tilnærmet flat og ikke minst solrik hagetomt. Den hyggelige og romslige hagen innbyr fra alt til lek og moro for barn til familie-/venneselskap. Husets plassering, tilbaketrukket mot særskilt to sider av eiendommen, gir grøntanlegg med stor hageplen og flotte åpne boltreplasser mot de mest solrike delene av eiendommen.
Hagens grøntanlegg har innslag av ulike trær og prydbusker. Det er noe hekkbeplantning (løvhekk), for øvrig er det utstrakt bruk av tregjerde som innhegner eiendommen. Det er også tregjerde ut mot sykkelstien i retningen mot Kaldnes brygge. Hagen har gressplen i alle retninger og inngangspartiet til eiendommen har både smijernsport og smijernsportal, klassisk montert i tidstypiske søyler av stein.
Tomtens grenselinjer fremkommer av matrikkelbrev som utgjør del av salgsoppgaven.
Byggemåte
Eiendommen består av en enebolig opplyst oppført i 1922 og frittstående garasje.
Boligens byggemåte beskrives på forenklet vis som følger.
YTTERVEGGER:
Veggene har trekonstruksjon av ukjent utførelse. Det kan ved vinduer i stue observeres stående plank i yttervegg. Fasade har liggende bordkledning.
YTTERTAK:
Boligen har saltaksløsning med "halvvalm" - plassbygget takkonstruksjon av tresperrer. Taktekkingen er av betongtakstein, utskiftet ca. 1995. Sløyfer og lekter er ubehandlet, takpapp på undertak av rupanel. Nedløp og beslag i lakkert stål.
GRUNNMUR/FUNDAMENT.
Bygningen har grunnmur i betong og stein. Dreneringsløsning vurderes å være fra byggeår, det foreligger ingen informasjon om utbedring eller modernisering av dreneringsløsning.
VINDUER OG DØRER:
Bygningen har malte trevinduer med 2-lags glass fra 2008 i 1. og 2. etasje, med unntak av vinduet på badet og vinduet på kottet i 2. etasje, som er 1-lags eldre vinduer. Vinduer i kjelleren er også 1-lags av eldre årgang. Bygningen har en eldre, malt hovedytterdør med enkelt glass, og en malt balkongdør i tre med enkelt glass til glassveranda. Balkongdøren i 2. etasje har 2-lags glass fra 2008. Sydvendt altan i 2. etasje med tekket gulv over innglasset veranda i 1. etg.
ØVRIG:
Etasjeskiller er av trebjelkelag. Boligen har mursteinspipe.
Beskrivelsen er basert på utarbeidet tilstandsrapport. Se for øvrig denne rapporten for mer inngående beskrivelse.
Standard
STANDARD:
Eiendommen fremstår med betydelige vedlikeholds- og oppgraderingsbehov. Oppussing/modernisering må påregnes for å løfte bygningstandarden til dagens forventninger til bokomfort og bygningsstandard. Boligens innhold, bygningsstil og utstrakte bruk av høye innvendige himlinger danner et flott utgangspunkt for å skape et vakkert og stilfullt hjem!
ÅRSTALL FOR ENKELTE PÅKOSTNINGER/UTBEDRINGER:
1995: Lagt ny takstein på boligen
2008: Utskifting av de fleste vinduer i 1. etasje og 2. etasje
2008: Vask/rens av takstein
2008: Ny kjellerlem
2008: Ny tekking av terrasse
2009: Utvendig maling av huset
2016: Utskifting av fuger og utvendig slamming av utvendige vegger på garasje
2017: Modernisering/utskifting av betydelig del av elektrisk anlegg *
2019: Skiftet ut varmtvannsbereder (200 liter)
2025: Skiftet ut stoppekran i underetasje
DE STORE OG LYSE KOMBINERTE STUENE MED TILKNYTTET GLASSVERANDA:
Stuene imponerer med sin herlige størrelse, det er godt med vindusflater og ikke minst mulighetene for "flere avdelinger". Som ellers i de fleste rom i 1. og 2. etasje imponerer rommene med god takhøyde og vakre vinduer! Et stort antall vinduer mot tre himmelretninger, sørger for for flott nærkontakt med hagen og innglasset veranda. Dette er en romslig sone i hjemmet hvor nærheten til uterommene og godt innslipp av naturlig dagslys er med på å dominere inntrykkene i rommet. Stuene har vinduer har i det vesentlige vinduer på langsiden mot "bysiden", innerst i rommet er det også det blyglassvindu trukket opp mot ytterveggen. Stuene har for øvrig god plass til flere "avdelinger". Rommets mest naturlige plassering av spisestuemøbler er ut for inngangen til spisekjøkkenet. Her er det god plass til oppdekking av rundt spisestuebord. I øvrige del av stuene er det god plass til sofa-/loungemøbler og de kombinerte stuene kan holdes adskilt av doble skyvedører på dager hvor det er ønskelig. Verandadøren i syd/øst leder ut til hagen. Varmepumpen gir økonomisk gunstig varme til hjemmet i vinterhalvåret - i tillegg gir den kjøling på hete sommerdager.
Glassverandaen ble innbygget på slutten av 1940-tallet. Eldre dør leder inn fra spisestuen, mens både vinduer og utgangdøren til hagen er skiftet ut på 2000-tallet. Store vindusflater gjør rommet lyst og trivelig, mens tretrapp med rekkverk leder ut til hagen!
KJØKKENET MED SPISEPLASS:
Kjøkkenet har inngang både fra spisestuen og fra hall/entrè. Det store og flotte vinduet mot syd gir fint lysinnslipp og den gode takhøyden forsterker romfølelsen! Over vinduet er det for øvrig montert markise for skjerming på solfylte dager. Under samme vindu er det avsatt plass til rommets spisebord - her er det for øvrig også fin nærkontakt med den koselige hagen. Innslipp av naturlig dagslys får man også via døråpningen mot spisestuen og når døren mot soverommet står åpen. Innredningen består av kjøkkenskaper med både over-/underskap, antatt utskiftet på 1970-tallet. Her kan man stå og kokkelere i i delvis nærhet med gjester/familie ved spisestuebordet i spisestuen. Innredningen er enkel og det er ingen medfølgende hvitevarer. Det er klargjort for avtrekksvifte med uttrekk via yttervegg, men tidligere kjøkkenvifte er demontert. Kjøkkenet har avsatt frittstående plass for kjøle-/fryseskap. I oppvasksonen er det montert heldekkende stålbenk med integrert oppvaskkum og utslagsvask. Det er ikke installert opplegg for oppvaskmaskin.
HALL/ENTRÈ:
Hjemmets inngangsparti har adkomst trapp fra gårdsplass på det syd-vest, og vel innenfor boligens dobbeltfløyede og eldre hovedinngangsdør, møter man hjemmets kombinerte entrè og hall. Store vindusflater i inngangsdørene sørger for lysinnslipp. Den orginale, malte tretrappen med tette trinn leder opp til 2. etasje - denne kan fort bli et flott "møbel" i rommet! Innerst i rommet er det lukket trappegang til underetasjen. Det er noe plass til å etablere garderobeløsning for ytterklær og skotøy hvis ønskelig. Rommet leder både inn til "dagligstue", til baderommet og til kjøkkenet.
SOVEROMMET I 1. ETASJE:
Soverommet i denne etasjen var tidligere et "kammers", men rommet med inngang fra kjøkkenet, ble på slutten av 1940-tallet utvidet og omgjort til soverom i sin nåværende form. Dette rommet har stort og høyreist vindu mot syd-øst og det er god plass for både seng og garderobeskap. Innerst i rommet er det et plassbygget skap for oppbevaring av klestøy og annet. Legg gjerne merke "signaturtapet" fra Tønsberg, skippertapeten fra veggene er nemlig fra Vallø tapetfabrikk!
DE TRE SOVEROMMENE SAMT GANG, KOTT OG WALK-IN GARDEROBE/ALKOVE I 2. ETASJE:
De tre soverommene i hjemmets 2. etasje er alle arealgenerøse, lyse og har god takhøyde. Samtlige rom er perfekt skjermet fra hovedoppholdsrommene i 1. etasje og ulike kott/knevegger og walk-in garderobe/alkove legger fint til rette for fine og løsninger ved oppussing. Samtlige soverom ligger på hvert sitt hushjørne, to av de med syd-østvendte vinduer og ett med vindu mot nord-vest. De to innerste soverommene er tilknyttet hverandre med dør mellom rommene. Samtlige rom har god plass til dobbeltseng og det er god plass for klesoppbevaring i soner hvor det kan monteres garderobeskap. Det innerste soverommet har utgang til balkong hvor man kan nyte fin utsikt! I rommet med tilknyttet alkove/walk-in rom er det fortsatt noe veggskap samt utslagsvask i rommet.
BADEROMMET:
Baderommet er et mindre og eldre rom som åpenbart har sett sine beste dager. Her er det behov for totaloppussing! Rommet har et mindre vindu, trukket godt opp på ytterveggen i nord-vest som tilfører daglys. Det er eldre våtromsbelegg (med oppkant foruten mot dør som fungerer som rommets membran) på gulvet og veggene består av malt tapet/strie. Det er ingen innredning utover tekniske installasjoner som veggmontert vask, dusj på vegg og gulvsluk! Det er utført fuktmåling ved hullaking av takstmann. Hulltakingen er foretatt uten å påvise unormale forhold. Hulltaking er foretatt i trapp til kjeller, i vegg bak blandebatteri. Fuktkvotemåling (vekt%) i konstruksjonen ga ingen utslag på måleapparatet i følge tilstandsrapporten.
*) Ved modernisering av elektrisk anlegg opplyser eier at dette i hovedsak bestod av nytt inntak, ny hovedtavle med nye automatsikringer, fjerning av vesentlige deler av spredenett som er erstattet med nytt samt ny tilførsel samt opplegg til garasje.
GULV-VEGGER-HIMLINGER:
Innvendig er det i det vesentlige gulv av belegg, vegg-til-vegg-tepper og malte tregulv.
Innerveggene har utstrakt bruk av tapeter, trepanel og malte plater.
Innvendige tak har for det meste malte plater, himlingsplater og trukket tak.
I underetasjen har de fleste rom gulv av betong og innervegger har utstrakt bruk av av betong/mur. Det er innslag av malt panel/rupanel.
Huset har malt tretrapp med belegg i trinn til 2. etasje. Malt trapp til kjeller.
Innvendig har boligen i det vesentlige malte fyllingsdører.
ANNET:
* 230V elektrisk anlegg med 50A hovedsikring.
* Innvendige vannledninger er av stål og kobber
* Det er avløpsrør av støpejern
* Boligen har naturlig ventilasjon i form av ventiler i oppholdsrom
* Utvendige avløpsrør er av ukjent type. det er støpejern innvendig i bolig
* Det er septiktank med ukjent overløpsløsning
* Utvendige vannledninger er av jernrør
For ytterligere beskrivelses av standard vises det til utarbeidet tilstandsrapport.
TILSTANDSRAPPORT OG OPPSUMMERING AV TILSTANDSGRADER:
Det foreligger en tilstandsrapport fra Ståle Brattestå som er uavhengig og autorisert Takstmann.
En tilstandsrapport er en utvidet teknisk rapport utarbeidet av en autorisert takstmann. Tilstandsrapporten, hvor innholdet i denne er regulert i egen forskrift, gir en vurdering og beskrivelse av eiendommens byggverk og bygningsdeler som takstmannen har observert, og som normalt vil være av betydning ved salg av eiendommen. Den bygningssakkyndige undersøker rom og bygningsdeler slik det kommer frem av Forskrift til avhendingsloven. Rapporten fremhever vanligvis ikke positive egenskaper ved boligen. Det er opp til selger å avgjøre hvorvidt det skal innhentes slik rapport eller ikke ved salg av eiendom. Både tilstandsrapport og selgers egenerklæringsskjema følger som vedlegg til salgsoppgaven for denne eiendommen.
Boligen har tilstandsgrader oppsummert som følger;
- 2 stk. tilstandsgrad 1 (TG1) - mindre eller moderate avvik.
- 20 stk. tilstandsgrad 2 (TG2) - avvik som kan kreve tiltak
- 6 stk. tilstandsgrad 3 (TG3) - store eller alvorlige avvik.
TG-3 anmerkingene er som følger:
Etasjeskille/gulv mot grunn
Målt høydeforskjell på mellom 10 - 20 mm innenfor en lengde på 2 meter. Tilstandsgrad 2 gis med bakgrunn i standardens krav til godkjente måleavvik. Målt høydeforskjell på over 30 mm gjennom hele rommet. Tilstandsgrad 3 gis med bakgrunn i standardens krav til godkjente måleavvik. Det er registrert inntil 20 mm høydeforskjell gjennom hele etasjen i 1. etasje. Det er registrert mer enn 30 mm høydeforskjell gjennom hele etasjen i 2. etasje. Det er ingen øvrige tegn til setninger på bygningen.
Kostnadsestimat: 20 000 - 100 000.
Pipe og ildsted
Det er ilagt fyringsforbud på pipen, pipeløpet er derfor murt igjen slik at ingen ildsteder er tilkoblet ifølge kontaktperson. Det foreligger rapport fra feier i forbindelse med dette.
Kjeller - vaskerom -generell
Våtrommet må oppgraderes for å tåle normal bruk etter dagens krav.
Kostnadsestimat: 100 000 - 200 000.
Toalettrom -overflater og konstruksjon
Toalettrom har ingen ventilering fra rommet, NS 3600 krever mekanisk avtrekk for å kunne gi TG 0/1. Toalettrom mangler tilluftsventilering, f.eks. spalte/ventil ved dør.
Kostnadsestimat: Under 20 000.
Bad -generell
Våtrommet må oppgraderes for å tåle normal bruk etter dagens krav.
Kostnadsestimat: 100 000 - 200 000.
Kjøkken -avtrekk
Det er manglende forsert mekanisk avtrekk fra kokesone i kjøkkenet. Avtrekksventilator er ikke installert på kjøkkenet.
Kostnadsestimat: Under 20 000.
Konsekvens av avvikene og tiltak for å lukke avvikene finnes i tilstandsrapporten.
TG-2 anmerkningene er relatert til kommenterte utvendig forhold for taktekking, nedløp/beslag, vegg-/takkonstruksjon og dører/vinduer/balkonger/terrasser. Innvendige forhold er relatert til overflater, kjøkkenoverflater og innredning, rom under terreng, krypkjeller og innvendige dører/trapper. Tekniske forhold er relatert til vannledninger, og avløpsrør, varmesentral. For tomteforhold er anmerkningene relatert til grunnmur/fundamenter, fuktsikring/drenering, utvendige vann-/avløpsledninger og septiktank.
Inngående beskrivelse av forholdene fremkommer av tilstandsrapporten. Opplistingen over er ikke uttømmende og du oppfordres til å lese og sette deg grundig inn i tilstandsrapporten, som ligger vedlagt i salgsoppgaven.
Oppvarming
Oppvarming med strøm. Det er montert luft-til-luft varmepumpe i stuen. Dersom beboelsesrom ikke har vegg- eller fastmonterte varmekilder ved visning følger dette heller ikke med.
Vårt firma har innhentet opplysninger fra brannvesen/feiervesen. Brannvesenet hadde sist tilsyn med fyringsanlegget og feiing den 02.02.2023.
Det ble under tilsynet avdekket følgende avvik ved anlegget og VIB har mottatt skriftlig tilbakemelding om retting av feil med tilfredsstillende tilbakemelding fra eier. Rapport og tilbakemelding er vedlagt i salgsoppgave.
Det gjøres oppmerksom på at det er ilagt fyrings forbud på pipen, pipeløpet er derfor murt igjen slik at ingen ildsteder er tilkoblet (se VIB rapport). Kjøper er ansvarlig for utbedring/fornying av pipe dersom det ønskes å benytte ildsted i huset.
Energimerking
Denne bolig er energimerket. På en skala fra A til G, der A er best, har denne bolig oppnådd rød G (en normalbolig vil gjerne ligge i området C-F). Kopi av energiattest kan fås ved henvendelse til megler.
Radonmåling
Selger er ikke kjent med at det er utført radonmåling på eiendommen. Det er heller ikke krav til dette da eiendommen ikke leies ut.
Ifølge opplysninger mottatt av kommunen ligger eiendommen i et område som har middels til lav aktsomhet aktsomhet for radon. For mer informasjon vedrørende radon se www.dsa.no.
Adkomst
For veibeskrivelse henvises det til vedlagte kart i salgsoppgaven. Det vil bli skiltet med EiendomsMegler 1 skilt ved fellesvisning.
Parkering
Det er parkering både på egen tomtegrunn samt i egen frittstående garasje.
Øvrig parkering i gateløp og annet, etter lokale retningslinjer/føringer.
Se punktet "innhold" for nærmere beskrivelse av garasjen.
Boligselgerforsikring
Selgeren har kjøpt boligselgerforsikring fra Fremtind forsikring. Forsikringen dekker selgerens økonomiske ansvar hvis du oppdager feil eller mangler som omfattes av avhendingsloven. Forsikringen gjelder fra kjøpers overtagelse av eiendommen og varer i fem år. I tillegg dekker forsikringen perioden mellom budaksept og overtagelse begrenset til 12 måneder. Forsikringsdekningen er begrenset til salgssum, maksimalt 14 millioner kroner. For kombinasjonseiendommer gjelder forsikringen kun for boligdelen. Se nettsidene til Sparebank 1 for mer informasjon om hva forsikringen dekker og hvilke begrensninger som gjelder.
Overtakelse
Etter nærmere avtale med selger. Vær vennlig å angi ønsket overtagelsesdato i vedlagte budskjema.
Sentrale lover
Eiendommen selges etter reglene i avhendingsloven.
Salgsoppgaven er basert på de opplysningene selger har gitt til bygningssakkyndig og megler, samt opplysninger innhentet fra kommunen, Statens kartverk og andre tilgjengelige kilder.
Eiendommen skal overleveres kjøper i tråd med det som er avtalt. Det er viktig at kjøper setter seg grundig inn i alle salgsdokumentene, herunder salgsoppgave, tilstandsrapport og selgers egenerklæring. Kjøper anses kjent med forhold som er tydelig beskrevet i salgsdokumentene. Forhold som er beskrevet i salgsdokumentene kan ikke påberopes som mangler. Dette gjelder uavhengig av om kjøper har lest dokumentene.
Alle interessenter oppfordres til å undersøke eiendommen nøye, gjerne sammen med fagkyndig før bud inngis. Kjøper som velger å kjøpe usett kan ikke gjøre gjeldende som mangel noe han burde blitt kjent med ved undersøkelsen. Dersom det er behov for avklaringer, anbefaler vi at kjøper rådfører seg med eiendomsmegler eller en bygningssakyndig før det legges inn bud.
Dersom kjøper ikke er forbruker selges eiendommen som den er , og selgers ansvar er da begrenset jf.avhendingsloven § 3-9 1. ledd 2. pkt.
Informasjon om kjøpers undersøkelsesplikt, herunder oppfordringen om å undersøke eiendommen nøye, gjelder også for kjøpere som ikke anses som forbrukere.
På grunn av ulike avtalevilkår kan selger vurdere bud fra en som ikke er forbruker, ulikt fra en forbrukers bud. Dersom kjøper ikke er forbruker, er selger sitt mulige mangelsansvar begrenset fordi eiendommen selges "som den er". Selger kan ikke ta som den er forbehold ovenfor en forbrukerkjøper. Selv et lavere bud fra en som ikke er forbruker kan foretrekkes fordi begrensningen i mulig mangelsansvar kan ha egenverdi for selger. Selger står fritt til å forkaste eller akseptere ethvert bud, og er for eksempel ikke forpliktet til å akseptere høyeste bud. Budgivere får informasjon dersom andre bud er inngitt av en som ikke er forbruker.
Forbrukerkjøp - definisjon Med forbrukerkjøp menes kjøp av eiendom når kjøperen er en fysisk person som ikke hovedsakelig handler som ledd i næringsvirksomhet.
Forbruker avtalevilkår Eiendommen har en mangel dersom den ikke er i samsvar med kravene som følger av avtalen, eller det foreligger brudd på bestemmelsene i avhendingsloven §§ 3-2 til 3-8. Hvis eiendommen ikke er i samsvar med det kjøperen må kunne forvente ut ifra alder, type og synlig tilstand, kan det være grunnlag for mangelskrav. Det samme gjelder hvis det er holdt tilbake eller gitt uriktige opplysninger om eiendommen. Dette gjelder likevel bare dersom man kan gå ut ifra at det virket inn på avtalen at opplysningen ikke ble gitt eller at feil uriktige opplysninger ikke blir rettet i tide på en tydelig måte.
En bolig som har blitt brukt i en viss tid, har vanligvis blitt utsatt for slitasje og skader kan ha oppstått. Slik bruksslitasje må kjøper regne med, og det kan avdekkes enkelte forhold etter overtakelse som nødvendiggjør utbedringer. Normal slitasje og skader som nødvendiggjør utbedring, er innenfor hva kjøper må forvente og vil ikke utgjøre en mangel.
Boligen kan ha en mangel etter avhendingsloven § 3-3 dersom det er avvik mellom opplyst og faktisk innvendig areal, forutsatt at avviket er på 2% eller mer og minimum 1 kvm. Ved beregning av et eventuelt prisavslag eller erstatning må kjøper selv dekke tap/kostnader opptil et beløp på kr 10 000 (egenandel).
Ikke-forbruker (næringsdrivende) definisjon Dersom kjøper er en juridisk person, eller en fysisk person som hovedsakelig handler som ledd i næringsvirksomhet, vil kjøpet ikke anses som et forbrukerkjøp.
Ikke-forbruker avtalevilkår Eiendommen har en mangel dersom den ikke er i samsvar med kravene som følger av avtalen. Eiendommen selges som den er , og selgers ansvar utover det konkret avtalte er da begrenset etter avhendingsloven § 3-9, første ledd andre setning. Avhendingsloven § 3-3 andre ledd fravikes, og hvorvidt boligens arealsvikt utgjør en mangel vurderes etter avhendingsloven § 3-8.
En forutsetning for salget er at skjøtet for eiendommen tinglyses på kjøper. Interessenter og kjøper må godta at selger og megler bruker elektronisk kommunikasjon i salgsprosessen.
I tråd med eiendomsmeglingsforskriften vil informasjon om oppdragsgiver, salgsobjektet, interessenter og kjøper bli lagret av meglerforetaket i min. 10 år. Se em1.no for mer informasjon om vår behandling av personopplysninger.
Adgang til utleie
Boligen består av en boenhet, den er ingen separat bo-/utleieenhet utover dennee.
Bolig med en boenhet kan som hovedregel fitt kan leies ut i sin helhet. Deler av boligen kan også leies ut, forutsatt at det er en del av boligens godkjente hoveddel med rom godkjent for varig opphold og at den utleide delen ikke er adskilt som en selvstendig boenhet.
Ferdigattest / Brukstillatelse
Det er ferdigattest den 10.10.1922 . At slike tillatelser/ attester eksisterer gir ingen garanti for at det ikke senere er utført arbeider som ikke er byggemeldt/godkjent.
Det foreligger godkjente og byggemeldte tegninger, som i hovedsak stemmer med dagens bruk. Tegninger fra kommunens arkiv er lagt til grunn ved vurdering av boligens lovlige arealer. Beskrivelsen av rommene er basert på faktisk bruk på tidspunkt for befaring. Ett av de tre innredede soverom i 2. etasje, nærmest trappoppgang, fremkommer på godkjente bygningstegninger benevnt som "loft" datert i 1922. Det foreligger ingen dokumentasjon på at rommet i ettertid er omdisponert/bruksendret til soverom. Selger opplyser at rommet har vært benyttet som oppholdsrom fra og med byggeåret.
Det foreligger godkjente og byggemeldte tegninger for garasjen, som stemmer med dagens bruk.
Hvitvaskingsregelverk
Eiendomsmeglere er underlagt lov om hvitvasking og er forpliktet til å rapportere til Økokrim om mistenkelige transaksjoner. Lov om hvitvasking innehar også strenge regler om kontroll av legitimasjon fra alle parter i handelen, herunder, selger, kjøper og fullmektiger for disse.
Budgivning
Megler kan ikke formidle bud med kortere akseptfrist enn klokken 12:00 første virkedag etter siste annonserte visning, dersom selger er forbruker. Det kan hende at fristene for å akseptere bud blir kortere etter hvert som det kommer inn nye bud. Det er budgiver som setter fristen for når et bud må være akseptert og denne fristen er absolutt. Det betyr at selger må akseptere budet og kjøper må ha mottatt aksepten innen fristens utløp. Dersom du legger inn bud tett opp mot akseptfristen, er det en reell fare for at eiendommen blir solgt før budet når frem til megler.
Husk å ringe til megler etter du har sendt et bud eller budforhøyelse, for å forsikre deg om at budet er mottatt av megler. Megler tar ikke ansvar for forsinkelser på el- eller telenettet, eller andre tekniske feil.
Alle bud og budforhøyelser med eventuelle forbehold, opplysning om finansiering og ønsket overtakelse, skal sendes skriftlig til megler.
Megler kan ikke formidle bud med forbehold om at budet eller forbehold i budet (hemmelige bud og/eller hemmelige forbehold) skal holdes skjult for andre budgivere og interessenter.
Megler skal sende skriftlig varsel om bud og budforhøyelser, som kan formidles, til budgiver, selger og interessenter. Når et bud aksepteres, skal megler sende skriftlig beskjed om det til både budgiver og selger.
Megler skal kontrollere budgivers finansiering før handel inngås. Dersom slik kontroll ikke lar seg gjennomføre, skal selger motta skriftlig informasjon om dette, og mulige konsekvenser. Dersom megler ikke får kontrollert budgivers finansiering, kan det derfor medføre at en annen budgiver også en med lavere bud anbefales overfor selger.
For å legge inn bud kan du enkelt legge inn bud via EiendomsMegler 1s gi bud -knapp i nettannonsen, eller benytte budskjema, elektronisk budgivning, skannet budskjema sendt på e-post eller annen godkjent skriftlig metode.
Skal du legge inn bud må du legitimere deg med kopi av legitimasjon og signatur. Kravet til legitimasjon og signatur er oppfylt dersom budgiver benytter e-signatur, for eksempel BankID.
Ta en prat med megler om hvordan du legger inn bud.
Vedlegg til salgsoppgaven
- Tilstandsrapport
- Selgers egenerklæring
- Energimerking
- Opplysninger fra kommunen
Diverse
Selger har ikke bebodd eiendommen, og er derfor ikke er kjent med feil eller mangler utover det som fremkommer av salgsmaterialet. Da selgers kunnskap om eiendommen på denne måte er begrenset, oppfordres interessenter til å foreta en særlig grundig undersøkelse av eiendommen.
Det gjøres oppmerksom på at eiendommen/boligen ikke vil bli ryddet eller rengjort ytterligere, utover slik den fremstår på visning, før overtakelse med mindre kjøper ta tydelig forbehold om det motsatte i sin budgivning.
Regulering
Gjeldende regulering:
Eiendommen er i reguleringsplan planid: 3905 65203. G/S Banebakken, Solveien og Kaldnesgaten datert den 07.12.1994.
Relaterte planer:
Planid: 20120069 Banebakken 35datert den 03.02.2016.
Planid: 20150111 Havegaten datert den 13.09.2017.
Planid : 20150123 Færderkvartalet den 15.06.2022.
Planid: 65211 Bomstasjon i Banebakken 23.04.2014.
Kommuneplan/kommunedelplan:
Eiendommen er avsatt til boligbebyggelse - nåværende og ras- og skredfare i kommuneplanens arealdel 2023 - 2035 datert den 03.04.2024.
Regulering under arbeid:
Det er ikke igangsatt planleggingsarbeid på et område som inkluderer/berører eiendommen.
Planforslag:
Det eksisterer ikke planforslag som berører eiendommen.
Kopi av kart, reguleringsplaner og bestemmelser ligger vedlagt i salgsoppgaven eller kan fås ved henvendelse til megler. Vi oppfordrer interessenter til å gjøre seg kjent med disse.
Kvikkleire:
På kart/plan som megler har mottatt fra kommunen er området der eiendommen ligger markert med aktsomhetsområde for kvikkleire. Kommunen har dermed evaluert risikoen for skred og gradert området i forhold til sannsynlighet og risiko og merket på kartene større soner og områder som kan skli ut. Risiko for skred på eiendommen er satt til lav.
Rød støysone:
Eiendommen er befattet med Rød sone iht. T-1442 fra veg. Dette angir et område, nærmest støykilden, som ikke er egnet til støyfølsomme bruksformål, og etablering av ny støyfølsom bebyggelse skal unngås. Se eget vedlegg. Støy fra jernbane, støy fra lufthavn og støy fra skytefelt er satt til "ingen".
Salgsoppgaven beskriver vesentlig og lovpålagt informasjon om eiendommen
Se komplett salgsoppgaveNyttige lenker
Nærområdet
EiendomsMegler 1 Tønsberg
Annonseinformasjon
| FINN-kode | 446921898 |
|---|---|
| Sist endret | 25. jan. 2026 14:57 |
| Referanse | 2871260009 |
Annonsene kan være mangelfulle i forhold til lovpålagt opplysningsplikt. Før bindende avtale inngås oppfordres interessenter til å innhente komplett informasjon fra meglerforetaket, selger eller utleier.








































































