Bildegalleri

DNB Eiendom v/Julie Kleppe presenterer Ammerudveien 87!
AMMERUD
Strøken og totaloppusset 3-roms andelsleilighet! | Nytt og lekkert kjøkken og bad | Varmtvann og fyring inkl |Parkering*
Prisantydning4 200 000 kr
Nøkkelinfo
- Boligtype
- Leilighet
- Eieform
- Andel
- Soverom
- 2
- Internt bruksareal
- 75 m² (BRA-i)
- Bruksareal
- 87 m²
- Eksternt bruksareal
- 5 m² (BRA-e)
- Innglasset balkong
- 7 m² (BRA-b)
- Etasje
- 3
- Byggeår
- 1967
- Energimerking
- Rom
- 3
- Tomteareal
- 32 090 m² (eiet)
Fasiliteter
Balkong/Terrasse
Barnevennlig
Bredbåndstilknytning
Garasje/P-plass
Kjæledyr tillatt
Ingen gjenboere
Kabel-TV
Offentlig vann/kloakk
Parkett
Rolig
Utsikt
Vaktmester-/vektertjeneste
Turterreng
Visning
Velkommen til visning! Meld deg på ved å trykke "visningspåmelding" i våre boligannonser. Ta gjerne kontakt med megler i forkant av visningen om du har spørsmål.
VisningspåmeldingOm boligen
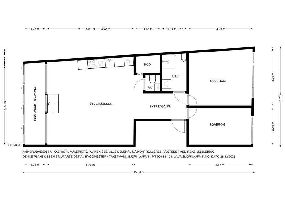
Ammerudveien 87 er en totalt oppusset leilighet med åpen stue/kjøkken løsning. Leiligheten fremstår moderne, strøken og virkelig gjennomført med flotte detaljer og lekker innredning. Her har du rikelig med lysinnslipp fra vindusflatene ut mot balkongen. Leiligheten ligger i byggets 3.etasje og har en fantastisk planløsning med entré, stue/kjøkken, 2 soverom, bad/vaskerom, toalettrom, innvendig bod og innglasset balkong. Her kan du flytte rett inn i en ny og strøken leilighet på Ammerud!
Leiligheten ligger sentralt til i et etablert og populært boligområde på Ammerud med marka som nærmeste nabo. Borettslaget har store grøntarealer, og for den friluftsglade er det kort vei til flotte tur- og friluftsområder.
Her vil du trives!
Velkommen til en hyggelig visning.
Leiligheten ligger sentralt til i et etablert og populært boligområde på Ammerud med marka som nærmeste nabo. Borettslaget har store grøntarealer, og for den friluftsglade er det kort vei til flotte tur- og friluftsområder.
Her vil du trives!
Velkommen til en hyggelig visning.
NB: Knappen for å vise hele beskrivelsen har kun en visuell effekt.
NB: Knappen for å vise hele beskrivelsen har kun en visuell effekt.
Salgsoppgaven beskriver vesentlig og lovpålagt informasjon om eiendommen
Se komplett salgsoppgaveNyttige lenker
Nærområdet
DNB Eiendom AS
Verdifulle salg
Annonseinformasjon
| FINN-kode | 446904487 |
|---|---|
| Sist endret | 04. mars 2026 10:30 |
| Referanse | 325260005 |
Annonsene kan være mangelfulle i forhold til lovpålagt opplysningsplikt. Før bindende avtale inngås oppfordres interessenter til å innhente komplett informasjon fra meglerforetaket, selger eller utleier.































