Bildegalleri

Velkommen til Ringstabekkveien 58 - Presentert av Jørgen Ek v/Privatmegleren Dyve og partnere
Arkitekttegnet familiebolig fra 2025 | Fantastisk utsikt |Dobbelgarasje | Hybel | Kveldssol | Ubebodd & innflytningsklar
Nøkkelinfo
- Boligtype
- Tomannsbolig
- Eieform
- Eier (Selveier)
- Soverom
- 4
- Internt bruksareal
- 238 m² (BRA-i)
- Bruksareal
- 238 m²
- Balkong/Terrasse
- 74 m² (TBA)
- Byggeår
- 2025
- Rom
- 7
- Tomteareal
- 1 985 m² (eiet)
Fasiliteter
Om boligen
Velkommen til Ringstabekkveien 58
En lekker og innbydende familiebolig med utsikt, fint beliggende på ettertraktede Jar. Boligen er kun tilknyttet nabohuset i underetasjen ved garasjene, og oppleves derfor som en frittliggende enebolig.
Beliggende i et populært, rolig område samtidig som det er kort vei til alt - dette er en mulighet du ikke vil gå glipp av!
Boligen kort oppsummert:
- Byggeår 2025
- Ubebodd
- Utsikt mot Oslofjorden
- Flere uteplasser
- Lekkert design med store vindusflater og gode lysforhold.
- Masteravdeling med eget bad
- Snekkerbygd kjøkken.
- 3 delikate bad og 4 gode soverom.
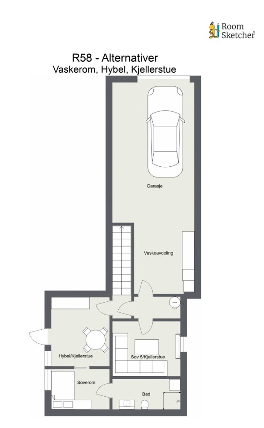
- Vaskerom
- Flere oppholdssoner for familien.
- Gasspeis
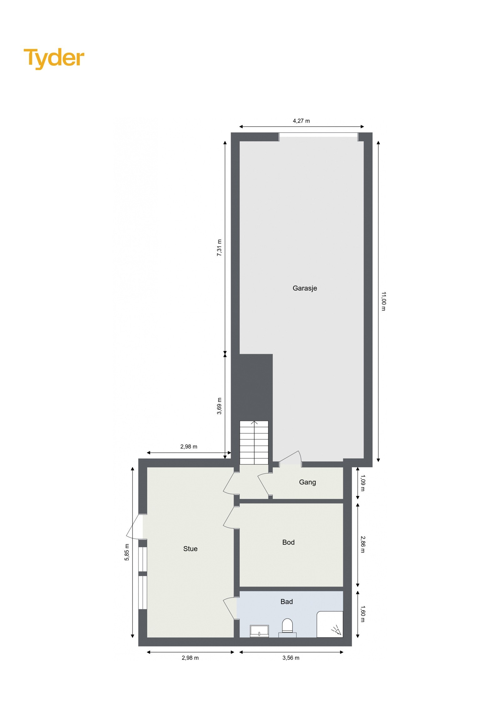
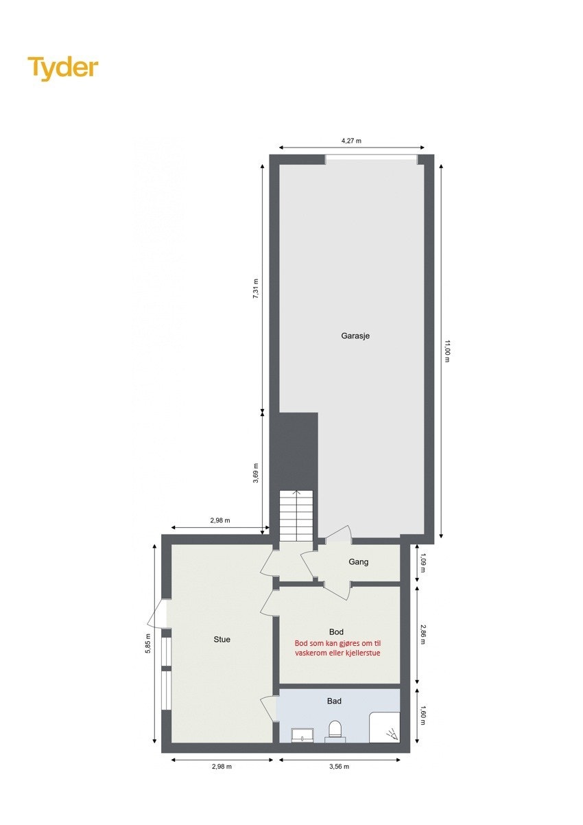
- Dobbelgarasje integrert i boligen.
- Lagringsplass.
- Hybel med egen inngang, estimert leieinntekt 12 500,-
Salgsoppgaven beskriver vesentlig og lovpålagt informasjon om eiendommen
Se komplett salgsoppgaveNyttige lenker
Nærområdet

PrivatMegleren Dyve & Partnere
Elise Høiberg Lien
Annonseinformasjon
| FINN-kode | 446868701 |
|---|---|
| Sist endret | 12. mars 2026 03:07 |
| Referanse | 159240580 |
Annonsene kan være mangelfulle i forhold til lovpålagt opplysningsplikt. Før bindende avtale inngås oppfordres interessenter til å innhente komplett informasjon fra meglerforetaket, selger eller utleier.




































































