Bildegalleri

Velkommen til Bentsegata 10 og denne nyoppussede 3-R hjørneleiligheten!
Inaktiv
SAGENE
Flytt rett inn i nydelig og påkostet 3-R hjørneleil. I Høy standard fra 2025/26 I Balkong I "Alt" inkl. i felleskost.
Prisantydning6 190 000 kr
Nøkkelinfo
- Boligtype
- Leilighet
- Eieform
- Selveier
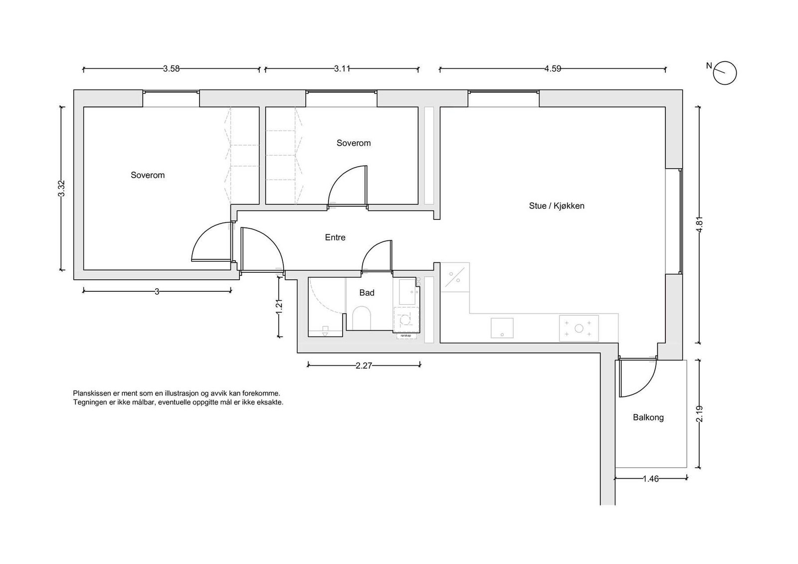
- Soverom
- 2
- Internt bruksareal
- 50 m² (BRA-i)
- Bruksareal
- 54 m²
- Eksternt bruksareal
- 4 m² (BRA-e)
- Balkong/Terrasse
- 3 m² (TBA)
- Etasje
- 5
- Byggeår
- 1952
- Energimerking
- D - Gul
- Rom
- 3
- Tomteareal
- 796 m² (eiet)
Fasiliteter
Balkong/Terrasse
Kabel-TV
Parkett
Utsikt
Vaktmester-/vektertjeneste
Sentralt
Bredbåndstilknytning
Moderne
Om boligen
Velkommen til Sagene og Bentsegata 10!
Flytt rett inn i denne stilrene og gjennomførte 3-R hjørneleiligheten.
Totalrenovert i 2025 med fine materialer, påkostede og arkitekttegnede løsninger og en imponerende finish.
Leiligheten ligger høyt og fritt med flott utsikt og er like praktisk som den er lekker. Her får du en perfekt balanse mellom åpen stue/kjøkkenløsning og gode private soner med to lyse og fine soverom.
- Totalrenovert med høy standard i 2025
- Eksklusive materialvalg og helhetlig interiørkonsept
- Sydvendt balkong
- Nytt el-anlegg
- A konto oppvarming, v.vann og internett/kabel-TV inkl.
Flytt rett inn i denne stilrene og gjennomførte 3-R hjørneleiligheten.
Totalrenovert i 2025 med fine materialer, påkostede og arkitekttegnede løsninger og en imponerende finish.
Leiligheten ligger høyt og fritt med flott utsikt og er like praktisk som den er lekker. Her får du en perfekt balanse mellom åpen stue/kjøkkenløsning og gode private soner med to lyse og fine soverom.
- Totalrenovert med høy standard i 2025
- Eksklusive materialvalg og helhetlig interiørkonsept
- Sydvendt balkong
- Nytt el-anlegg
- A konto oppvarming, v.vann og internett/kabel-TV inkl.
NB: Knappen for å vise hele beskrivelsen har kun en visuell effekt.
NB: Knappen for å vise hele beskrivelsen har kun en visuell effekt.
Salgsoppgaven beskriver vesentlig og lovpålagt informasjon om eiendommen
Se komplett salgsoppgaveNærområdet
&Partners Sagene
Verdien av lokalkunnskap
Annonseinformasjon
| FINN-kode | 446636874 |
|---|---|
| Sist endret | 20. apr. 2026 13:52 |
| Referanse | 19251002 |
Annonsene kan være mangelfulle i forhold til lovpålagt opplysningsplikt. Før bindende avtale inngås oppfordres interessenter til å innhente komplett informasjon fra meglerforetaket, selger eller utleier.


























