Bildegalleri

EiendomsMegler 1 v/Rune Johansen har gleden av å presentere Mestergata 23! Foto: EFKT, Vilde Dahl
Kirkelandet
Fin sentrumsnær enebolig med vinterhage. Parkering på egen tomt. Rolig beliggenhet.
Prisantydning2 570 000 kr
Nøkkelinfo
- Boligtype
- Enebolig
- Eieform
- Eier (Selveier)
- Soverom
- 1
- Internt bruksareal
- 121 m² (BRA-i)
- Bruksareal
- 131 m²
- Eksternt bruksareal
- 3 m² (BRA-e)
- Innglasset balkong
- 7 m² (BRA-b)
- Balkong/Terrasse
- 18 m² (TBA)
- Byggeår
- 1957
- Energimerking
- E - Oransje
- Rom
- 3
- Tomteareal
- 294 m² (eiet)
Om boligen
EiendomsMegler 1 v/Rune Johansen har gleden av å presentere Mestergata 23!
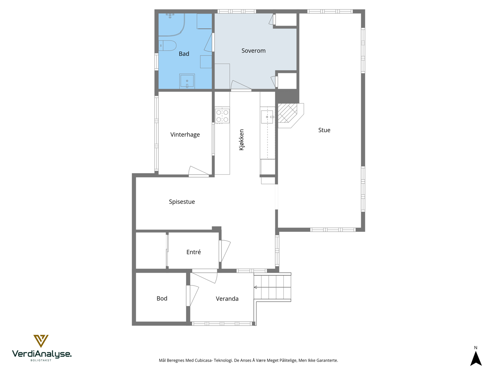
Sentrumsnær enebolig m/vinterhage. Boligen går over 2 plan og byr på bl. a underetasje med gang, bad, boder, kryperom og kjellerstue. Hovedplan: Entre, gang, vinterhage, bad, soverom, kjøkken og stue.
Fra spisestue er det utgang til en trivelig vinterhage og skjermet uteområde.
Boligen ligger i øvre bydel med gåavstand til sentrum og alle fasiliteter.
Velkommen til visning!
Sentrumsnær enebolig m/vinterhage. Boligen går over 2 plan og byr på bl. a underetasje med gang, bad, boder, kryperom og kjellerstue. Hovedplan: Entre, gang, vinterhage, bad, soverom, kjøkken og stue.
Fra spisestue er det utgang til en trivelig vinterhage og skjermet uteområde.
Boligen ligger i øvre bydel med gåavstand til sentrum og alle fasiliteter.
Velkommen til visning!
NB: Knappen for å vise hele beskrivelsen har kun en visuell effekt.
NB: Knappen for å vise hele beskrivelsen har kun en visuell effekt.
Salgsoppgaven beskriver vesentlig og lovpålagt informasjon om eiendommen
Se komplett salgsoppgaveNyttige lenker
Nærområdet
EiendomsMegler 1 Kristiansund
Vi loser deg trygt gjennom hele boligsalget
Annonseinformasjon
| FINN-kode | 446430813 |
|---|---|
| Sist endret | 26. jan. 2026 20:08 |
| Referanse | 17250512 |
Annonsene kan være mangelfulle i forhold til lovpålagt opplysningsplikt. Før bindende avtale inngås oppfordres interessenter til å innhente komplett informasjon fra meglerforetaket, selger eller utleier.


























