Bildegalleri

Velkommen til Dalehaugen 2B - en lys og gjennomgående 2-roms leilighet. Foto:
Solgt
Gamlebyen / Galgeberg
Lekker og nyere oppusset 2-roms leilighet. Kjøkken 2026. Takhøyde på 3m. Nye vinduer 2023. Felles takterrasse
Prisantydning4 490 000 kr
Nøkkelinfo
- Boligtype
- Leilighet
- Eieform
- Andel
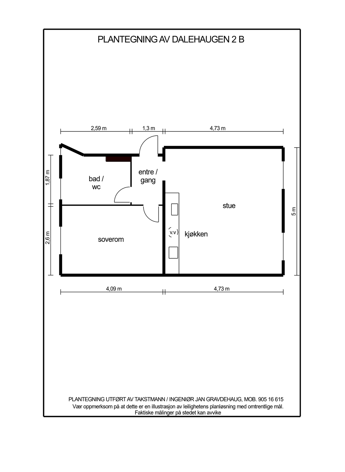
- Soverom
- 1
- Internt bruksareal
- 45 m² (BRA-i)
- Bruksareal
- 49 m²
- Eksternt bruksareal
- 4 m² (BRA-e)
- Etasje
- 3
- Byggeår
- 1878
- Energimerking
- Rom
- 2
- Tomteareal
- 470 m² (eiet)
Fasiliteter
Takterrasse
Barnevennlig
Bredbåndstilknytning
Garasje/P-plass
Kjæledyr tillatt
Kabel-TV
Sentralt
Om boligen
Velkommen til Dalehaugen 2B
Lekker 2-roms leilighet med nyoppussede overflater med god takhøyde og fine detaljer som stukkatur og store vinduer. Leiligheten holder god standard, med nytt kjøkken og gulv fra 2026. Planløsningen er smart og arealeffektiv, noe som gir en romslig og funksjonell bolig der arealet er godt utnyttet.
Her bor du i et rolig og historisk hjørne av Gamle Oslo, omgitt av klassiske bygårder og trehusidyll, med kafeer, restauranter, parker og kollektivtransport rett i nærheten.
Lekker 2-roms leilighet med nyoppussede overflater med god takhøyde og fine detaljer som stukkatur og store vinduer. Leiligheten holder god standard, med nytt kjøkken og gulv fra 2026. Planløsningen er smart og arealeffektiv, noe som gir en romslig og funksjonell bolig der arealet er godt utnyttet.
Her bor du i et rolig og historisk hjørne av Gamle Oslo, omgitt av klassiske bygårder og trehusidyll, med kafeer, restauranter, parker og kollektivtransport rett i nærheten.
- Parkeringsleie*
- Ingen fellesgjeld
- Ingen forkjøpsrett
- Kjellerbod på ca. 3 m²
- Soverom mot bakgård
- Lun og koselig felles takterrasse
- Lave felleskostnader - Internett inkl.
- Pent opparbeidet bakgård med sittegrupper
NB: Knappen for å vise hele beskrivelsen har kun en visuell effekt.
NB: Knappen for å vise hele beskrivelsen har kun en visuell effekt.
Salgsoppgaven beskriver vesentlig og lovpålagt informasjon om eiendommen
Se komplett salgsoppgaveNyttige lenker
Nærområdet
Nordvik Frogner
Annonseinformasjon
| FINN-kode | 446417307 |
|---|---|
| Sist endret | 17. mars 2026 12:40 |
| Referanse | 14-0009/26 |
Annonsene kan være mangelfulle i forhold til lovpålagt opplysningsplikt. Før bindende avtale inngås oppfordres interessenter til å innhente komplett informasjon fra meglerforetaket, selger eller utleier.


















