Bildegalleri

Velkommen til Ottar Landfalds veg 2. Stor og innholdsrik enebolig med sentral beliggenhet i Bekkelaget.
Solgt
Ottestad
Innholdsrik enebolig med sentral beliggenhet i Bekkelaget
Prisantydning4 780 000 kr
Nøkkelinfo
- Boligtype
- Enebolig
- Eieform
- Eier (Selveier)
- Soverom
- 2
- Internt bruksareal
- 239 m² (BRA-i)
- Bruksareal
- 316 m²
- Eksternt bruksareal
- 63 m² (BRA-e)
- Innglasset balkong
- 14 m² (BRA-b)
- Balkong/Terrasse
- 108 m² (TBA)
- Byggeår
- 1969
- Energimerking
- F - Gul
- Rom
- 3
- Tomteareal
- 1 412 m² (eiet)
Om boligen
Velholdt og innholdsrik enebolig med sentral beliggenhet i Bekkelaget.
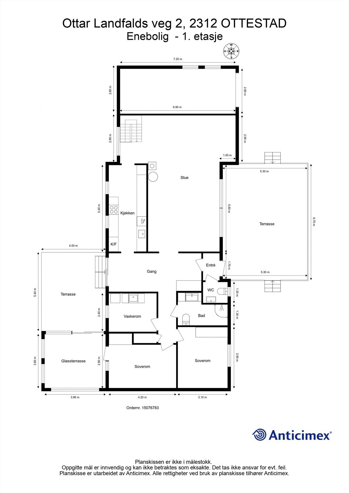
Praktisk og fin planløsning i første etasje, med kjøkken og stue i den ene enden. Bad, vaskerom og 2 soverom i den andre.
Fine uteplasser med et totalt terrasseareal på 108 kvm fordelt på 3 flater.
Deler av boligens kjelleretasje er innredet som en utleiedel. Dette er arealet er ikke byggemeldt og godkjent for beboelse.
Stor dobbelgarasje, samt 1 enkelgarasje og romslig gårdsplass.
Eiendommen ligger med sentral plassering i Bekkelaget. Ca. 2,5 km fra Hamar sentrum og ca. 8 km til Stange sentrum. Gangavstand til barnehager, barne- og ungdomsskole.
Velkommen på visning.
Praktisk og fin planløsning i første etasje, med kjøkken og stue i den ene enden. Bad, vaskerom og 2 soverom i den andre.
Fine uteplasser med et totalt terrasseareal på 108 kvm fordelt på 3 flater.
Deler av boligens kjelleretasje er innredet som en utleiedel. Dette er arealet er ikke byggemeldt og godkjent for beboelse.
Stor dobbelgarasje, samt 1 enkelgarasje og romslig gårdsplass.
Eiendommen ligger med sentral plassering i Bekkelaget. Ca. 2,5 km fra Hamar sentrum og ca. 8 km til Stange sentrum. Gangavstand til barnehager, barne- og ungdomsskole.
Velkommen på visning.
NB: Knappen for å vise hele beskrivelsen har kun en visuell effekt.
NB: Knappen for å vise hele beskrivelsen har kun en visuell effekt.
Salgsoppgaven beskriver vesentlig og lovpålagt informasjon om eiendommen
Se komplett salgsoppgaveNyttige lenker
Nærområdet
Krogsveen Hamar
Verdien av en god megler.
Annonseinformasjon
| FINN-kode | 446410065 |
|---|---|
| Sist endret | 26. jan. 2026 11:45 |
| Referanse | KR65.25307 |
Annonsene kan være mangelfulle i forhold til lovpålagt opplysningsplikt. Før bindende avtale inngås oppfordres interessenter til å innhente komplett informasjon fra meglerforetaket, selger eller utleier.































