Bildegalleri

Velkommen til Håkons gate 5 D!
Sarpsborg sentrum
Påkostet hjørneleilighet i toppetasje - 2 soverom - Gode solforhold og skjermet for innsyn - Garasjeplass
Prisantydning2 700 000 kr
Nøkkelinfo
- Boligtype
- Leilighet
- Eieform
- Andel
- Soverom
- 2
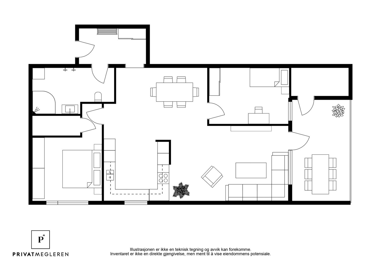
- Internt bruksareal
- 94 m² (BRA-i)
- Bruksareal
- 97 m²
- Eksternt bruksareal
- 3 m² (BRA-e)
- Balkong/Terrasse
- 13 m² (TBA)
- Etasje
- 4
- Byggeår
- 1977
- Energimerking
- E - Oransje
- Rom
- 3
- Tomteareal
- 3 242 m² (eiet)
Fasiliteter
Balkong/Terrasse
Garasje/P-plass
Ingen gjenboere
Utsikt
Moderne
Om boligen
Dette er en påkostet og flott hjørneleilighet i øverste etasje. Den høye beliggenheten gir ekstra lys og utsyn, og du er usjenert for innsyn. For ca 5 år siden ble leiligheten pusset opp og modernisert, med blant annet nytt kjøkken, baderom og øvrige overflater. Det ble laget en åpen stue-/kjøkkenløsning som utnytter arealene godt, og gjør at leiligheten oppleves ekstra romslig. Garasjeplass i felles oppvarmet garasje, som også har dekkhotell og vaskeplass.
Håkons Gate 5 D ligger sentralt plassert i Sarpsborg sentrum, kun noen kvartal fra byens gågate. Dette gir gangavstand til alle byens fasiliteter, som spisesteder, kjøpesenter, spesialforretninger og servicetilbud. Flotte rekreasjonsområder som Kulåsparken og Glengshølen ligger også innenfor gangavstand.
Velkommen på visning!
Håkons Gate 5 D ligger sentralt plassert i Sarpsborg sentrum, kun noen kvartal fra byens gågate. Dette gir gangavstand til alle byens fasiliteter, som spisesteder, kjøpesenter, spesialforretninger og servicetilbud. Flotte rekreasjonsområder som Kulåsparken og Glengshølen ligger også innenfor gangavstand.
Velkommen på visning!
NB: Knappen for å vise hele beskrivelsen har kun en visuell effekt.
NB: Knappen for å vise hele beskrivelsen har kun en visuell effekt.
Salgsoppgaven beskriver vesentlig og lovpålagt informasjon om eiendommen
Se komplett salgsoppgaveNyttige lenker
Nærområdet

PrivatMegleren Sarpsborg
Kun det beste på dine vegne
Annonseinformasjon
| FINN-kode | 446406718 |
|---|---|
| Sist endret | 06. mars 2026 05:02 |
| Referanse | 193250175 |
Annonsene kan være mangelfulle i forhold til lovpålagt opplysningsplikt. Før bindende avtale inngås oppfordres interessenter til å innhente komplett informasjon fra meglerforetaket, selger eller utleier.





















