Bildegalleri

Solgt
Stjerneblokkene
Meget hyggelig 2-roms med stor markterrasse på 20 m² |Peisovn |Varmtvann inkl. i fellesutg. |Parkering |Sentralt
Prisantydning3 650 000 kr
Nøkkelinfo
- Boligtype
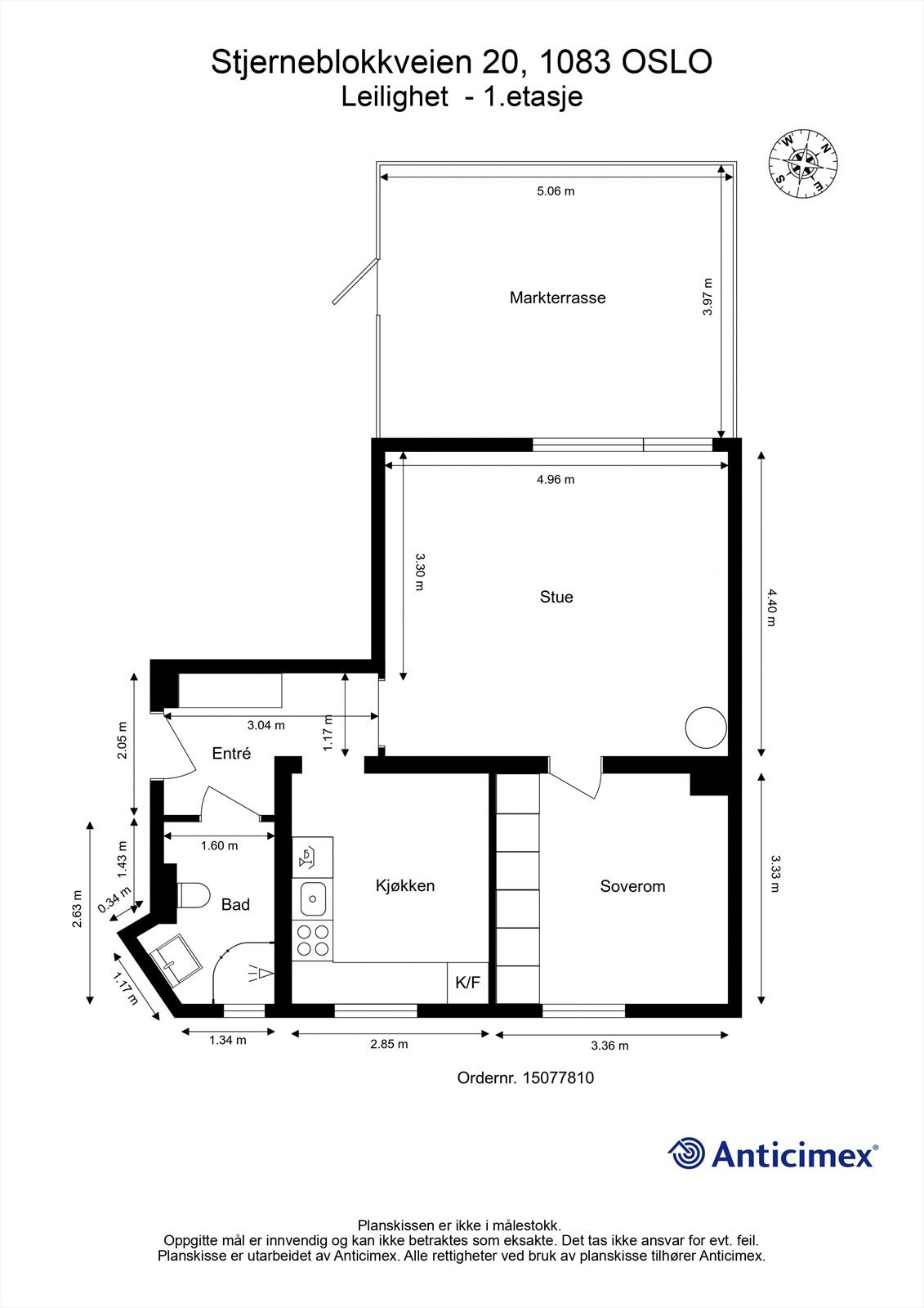
- Leilighet
- Eieform
- Andel
- Soverom
- 1
- Internt bruksareal
- 55 m² (BRA-i)
- Bruksareal
- 62 m²
- Eksternt bruksareal
- 7 m² (BRA-e)
- Balkong/Terrasse
- 20 m² (TBA)
- Etasje
- 1
- Byggeår
- 1953
- Energimerking
- D - Rød
- Rom
- 2
- Tomteareal
- 81 632 m² (eiet)
Fasiliteter
Balkong/Terrasse
Garasje/P-plass
Kjæledyr tillatt
Peis/Ildsted
Vaktmester-/vektertjeneste
Lademulighet
Om boligen
Velkommen til Stjerneblokkveien 20! Lys og arealeffektiv 2-roms med en herlig, stor markterrasse.
En trivelig andelsleilighet i et veletablert område på Grorud, med kort vei til servicetilbud og offentlig transport. Leiligheten har en god planløsning med eget separat kjøkken med god plass til stort spisebord. Med leiligheten følger i tillegg en herlig markterrasse på 20 m².
Kort fortalt:
Velkommen til visning!
En trivelig andelsleilighet i et veletablert område på Grorud, med kort vei til servicetilbud og offentlig transport. Leiligheten har en god planløsning med eget separat kjøkken med god plass til stort spisebord. Med leiligheten følger i tillegg en herlig markterrasse på 20 m².
Kort fortalt:
- Stor markterrasse på 20 m²
- Peisovn i stuen for ekstra varme og hygge.
- God lagringsplass med to kjellerboder og én loftsbod.
- Varmtvann inkludert i felleskostnadene.
- Felles biloppstillingsplasser med elbillader.
- Mulighet for leie av garasjeplass
Velkommen til visning!
NB: Knappen for å vise hele beskrivelsen har kun en visuell effekt.
NB: Knappen for å vise hele beskrivelsen har kun en visuell effekt.
Salgsoppgaven beskriver vesentlig og lovpålagt informasjon om eiendommen
Se komplett salgsoppgaveNyttige lenker
Nærområdet
Krogsveen Bærum
Verdien av en god megler.
Annonseinformasjon
| FINN-kode | 446401902 |
|---|---|
| Sist endret | 29. jan. 2026 14:49 |
| Referanse | KR10.25397 |
Annonsene kan være mangelfulle i forhold til lovpålagt opplysningsplikt. Før bindende avtale inngås oppfordres interessenter til å innhente komplett informasjon fra meglerforetaket, selger eller utleier.



































