Bildegalleri

Nedre Holmegate 9C presenteres av EIE eiendomsmegling v/ Torbjørn Lie - Eiendomsmegler MNEF/Salgsleder/Partner | Fotograf Arve Gravdal
Stavanger Sentrum
Flott selveierleilighet med god standard midt i hjerte av Stavanger sentrum | Fast parkering i lukket anlegg | Heis
Prisantydning4 390 000 kr
Nøkkelinfo
- Boligtype
- Leilighet
- Eieform
- Eier (Selveier)
- Soverom
- 1
- Internt bruksareal
- 57 m² (BRA-i)
- Bruksareal
- 62 m²
- Eksternt bruksareal
- 5 m² (BRA-e)
- Balkong/Terrasse
- 1 m² (TBA)
- Etasje
- 2
- Byggeår
- 2007
- Energimerking
- C - Rød
- Rom
- 2
- Tomteareal
- 2 011 m² (eiet)
Fasiliteter
Balkong/Terrasse
Garasje/P-plass
Heis
Offentlig vann/kloakk
Parkett
Vaktmester-/vektertjeneste
Sentralt
Bredbåndstilknytning
Om boligen
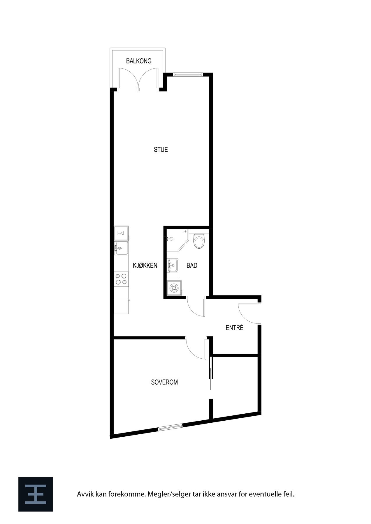
Vi kan presentere en romslig og attraktiv 2-roms leilighet i 2. etasje med fast parkering i felles garasjeanlegg.
Nedre Holmegate 9 C ligger midt i Stavanger sentrum like bak fasjonable Victoria Hotel, i enden av den kjente og populære "Fargegaten". Her er du aldri lenger enn en kort spasertur fra hyggelige gågater med butikker, serveringssteder og servicetilbud samt et bare et par minutter fra torget i Stavanger. Treningssentrene Elixia, Breiavannet og Bjergstedsparken er kun en kort spasertur unna.
Inneholder:
Entrè/gang, stue/spisestue med åpent kjøkkenløsning, bad og stort soverom med bod.
Mer om leiligheten:
- Bygget er oppført i 2007 m/ heis
- Balkong som vender ut mot fargegaten.
- Flislagt bad med varmekabler i gulv
- En innvendig bod, samt stor bod i garasje som ligger rett ved parkeringsplassen
- Veldrevet sameiet med vaktmestertjeneste
- Leiligheten er klar for innflytting!
Velkommen til visning.
Nedre Holmegate 9 C ligger midt i Stavanger sentrum like bak fasjonable Victoria Hotel, i enden av den kjente og populære "Fargegaten". Her er du aldri lenger enn en kort spasertur fra hyggelige gågater med butikker, serveringssteder og servicetilbud samt et bare et par minutter fra torget i Stavanger. Treningssentrene Elixia, Breiavannet og Bjergstedsparken er kun en kort spasertur unna.
Inneholder:
Entrè/gang, stue/spisestue med åpent kjøkkenløsning, bad og stort soverom med bod.
Mer om leiligheten:
- Bygget er oppført i 2007 m/ heis
- Balkong som vender ut mot fargegaten.
- Flislagt bad med varmekabler i gulv
- En innvendig bod, samt stor bod i garasje som ligger rett ved parkeringsplassen
- Veldrevet sameiet med vaktmestertjeneste
- Leiligheten er klar for innflytting!
Velkommen til visning.
NB: Knappen for å vise hele beskrivelsen har kun en visuell effekt.
NB: Knappen for å vise hele beskrivelsen har kun en visuell effekt.
Salgsoppgaven beskriver vesentlig og lovpålagt informasjon om eiendommen
Se komplett salgsoppgaveNyttige lenker
Nærområdet
EIE eiendomsmegling - Rogaland Eiendomsmegling AS
Annonseinformasjon
| FINN-kode | 446396314 |
|---|---|
| Sist endret | 28. jan. 2026 05:04 |
| Referanse | 54251280 |
Annonsene kan være mangelfulle i forhold til lovpålagt opplysningsplikt. Før bindende avtale inngås oppfordres interessenter til å innhente komplett informasjon fra meglerforetaket, selger eller utleier.





























