Bildegalleri

Her bor du med umiddelbar nærhet til Kjekstadmarka, med skiløype kun få meter fra gårdsplassen.
Røyken
Nydelig og stor enebolig med stor hage og dobbelgarasje. To terrasser, utsikt og elbillader | Nytt bad fra 2025
Prisantydning6 690 000 kr
Nøkkelinfo
- Boligtype
- Enebolig
- Eieform
- Eier (Selveier)
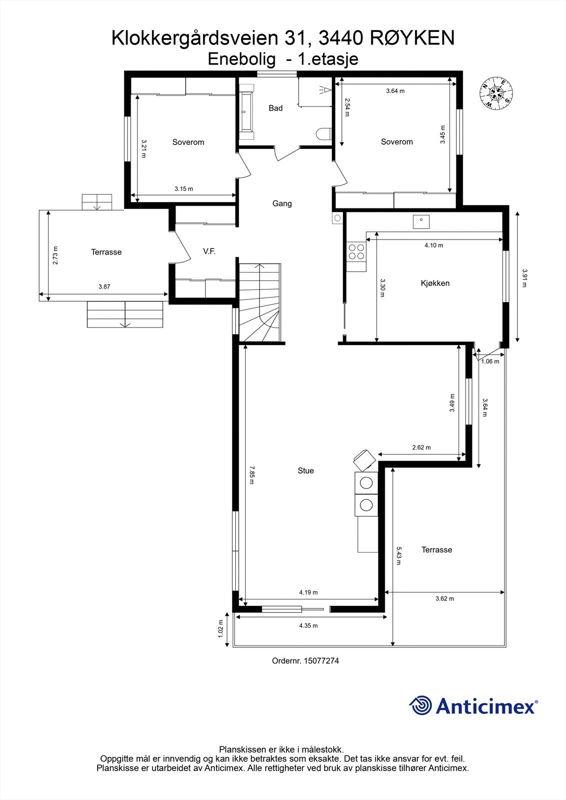
- Soverom
- 4
- Internt bruksareal
- 213 m² (BRA-i)
- Bruksareal
- 253 m²
- Eksternt bruksareal
- 40 m² (BRA-e)
- Balkong/Terrasse
- 39 m² (TBA)
- Byggeår
- 1939
- Energimerking
- E - Gul
- Rom
- 5
- Tomteareal
- 1 305 m² (eiet)
Fasiliteter
Balkong/Terrasse
Barnevennlig
Garasje/P-plass
Hage
Kjæledyr tillatt
Offentlig vann/kloakk
Peis/Ildsted
Sentralt
Turterreng
Om boligen
Velkommen til Klokkergårdsveien 31! En innholdsrik enebolig med flott hage og umiddelbar nærhet til marka
Her bor du i rolige omgivelser, tilbaketrukket fra gjennomfartstrafikk. Nyt morgenkaffen på terrassen før du tar med familien ut i den store, pent opparbeidede hagen med både hyggelig pryd- og bærbusker. Med skiløypa rett utenfor gårdsplassen og gangavstand til tog, buss og butikker, byr boligen på en perfekt balanse mellom naturopplevelser og en praktisk hverdag.
Høydepunkter
Her bor du i rolige omgivelser, tilbaketrukket fra gjennomfartstrafikk. Nyt morgenkaffen på terrassen før du tar med familien ut i den store, pent opparbeidede hagen med både hyggelig pryd- og bærbusker. Med skiløypa rett utenfor gårdsplassen og gangavstand til tog, buss og butikker, byr boligen på en perfekt balanse mellom naturopplevelser og en praktisk hverdag.
Høydepunkter
- Nytt, lekkert bad i 1. etasje fra 2025
- Overbygget sydvest vendt terrasse på 28 m²
- Stor dobbelgarasje med el-bil lader
- Peis i både stue og kjellerstue
- To bad og separat vaskerom
- Gangavstand til Røyken stasjon
NB: Knappen for å vise hele beskrivelsen har kun en visuell effekt.
NB: Knappen for å vise hele beskrivelsen har kun en visuell effekt.
Salgsoppgaven beskriver vesentlig og lovpålagt informasjon om eiendommen
Se komplett salgsoppgaveNyttige lenker
Nærområdet
Krogsveen Bærum
Verdien av en god megler.
Annonseinformasjon
| FINN-kode | 446394479 |
|---|---|
| Sist endret | 05. mars 2026 15:52 |
| Referanse | KR10.25367 |
Annonsene kan være mangelfulle i forhold til lovpålagt opplysningsplikt. Før bindende avtale inngås oppfordres interessenter til å innhente komplett informasjon fra meglerforetaket, selger eller utleier.





























































