Bildegalleri

Velkommen til Kongsskogen 60, presentert av Håkon Espeseth i Nordvik Asker. FOTO: Eiendomsfoto AS.
Solgt
Vardåsen/Kongsskogen
Tiltalende og innholdsrik enebolig - Solrike uteplasser - Barnevennlig i blindvei - Kort vei til butikk, buss og marka
Prisantydning11 750 000 kr
Nøkkelinfo
- Boligtype
- Enebolig
- Eieform
- Eier (Selveier)
- Soverom
- 3
- Internt bruksareal
- 260 m² (BRA-i)
- Bruksareal
- 324 m²
- Eksternt bruksareal
- 64 m² (BRA-e)
- Balkong/Terrasse
- 43 m² (TBA)
- Etasje
- 3
- Byggeår
- 1986
- Energimerking
- D - Gul
- Tomteareal
- 1 137 m² (eiet)
Fasiliteter
Balkong/Terrasse
Barnevennlig
Bredbåndstilknytning
Garasje/P-plass
Hage
Kabel-TV
Offentlig vann/kloakk
Parkett
Peis/Ildsted
Turterreng
Lademulighet
Om boligen
Velkommen til Kongsskogen 60, presentert av Håkon Espeseth i Nordvik Asker.
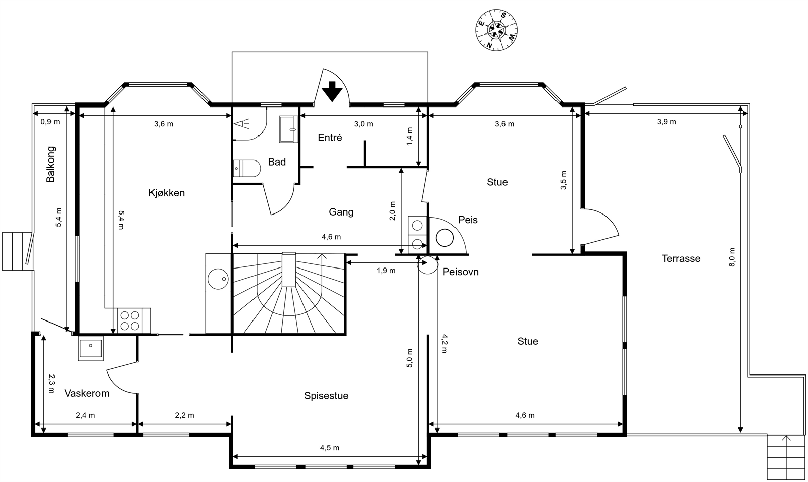
Her får du en innholdsrik og velholdt enebolig med gode solforhold, romslige oppholdsarealer og flere uteplasser. Boligen har gjennomgående god standard, tre stuer, spisestue og ildsteder som gir en lun og hyggelig ramme for hverdagen. Pent opparbeidet tomt, vestvendt terrasse med adkomst til romslig hage med god plass til lek og moro.
Høydepunkter:
- Løpende oppgradert
- Nye vinduer og balkongdører (2022)
- Dobbelgarasje m/lader
- Godt med lagringsplass i boder
- Idyllisk og barnevennlig boligområde
- Umiddelbar nærhet til marka med fine turmuligheter
- Reisetid til Nationaltheatret er ca. 33 min med kollektivtrafikk
- Nær skole og barnehage
- Kort vei til Asker sentrum
Her får du en innholdsrik og velholdt enebolig med gode solforhold, romslige oppholdsarealer og flere uteplasser. Boligen har gjennomgående god standard, tre stuer, spisestue og ildsteder som gir en lun og hyggelig ramme for hverdagen. Pent opparbeidet tomt, vestvendt terrasse med adkomst til romslig hage med god plass til lek og moro.
Høydepunkter:
- Løpende oppgradert
- Nye vinduer og balkongdører (2022)
- Dobbelgarasje m/lader
- Godt med lagringsplass i boder
- Idyllisk og barnevennlig boligområde
- Umiddelbar nærhet til marka med fine turmuligheter
- Reisetid til Nationaltheatret er ca. 33 min med kollektivtrafikk
- Nær skole og barnehage
- Kort vei til Asker sentrum
NB: Knappen for å vise hele beskrivelsen har kun en visuell effekt.
NB: Knappen for å vise hele beskrivelsen har kun en visuell effekt.
Salgsoppgaven beskriver vesentlig og lovpålagt informasjon om eiendommen
Se komplett salgsoppgaveNyttige lenker
Nærområdet
Nordvik Asker
Vi vet hva det er verdt
Annonseinformasjon
| FINN-kode | 446393084 |
|---|---|
| Sist endret | 29. jan. 2026 13:34 |
| Referanse | 33-0255/25 |
Annonsene kan være mangelfulle i forhold til lovpålagt opplysningsplikt. Før bindende avtale inngås oppfordres interessenter til å innhente komplett informasjon fra meglerforetaket, selger eller utleier.































































