Bildegalleri

Dette er et gjennomgående og svært tiltalende hjem, med en ypperlig beliggenhet - vender mot Niels Juels gate
Skillebekk
Eksklusiv & romslig bygårdsleilighet på Skillebekk. Heis, sørvestvendt balkong, peis og over 3 meter takhøyde.
Prisantydning12 600 000 kr
Nøkkelinfo
- Boligtype
- Leilighet
- Eieform
- Eier (Selveier)
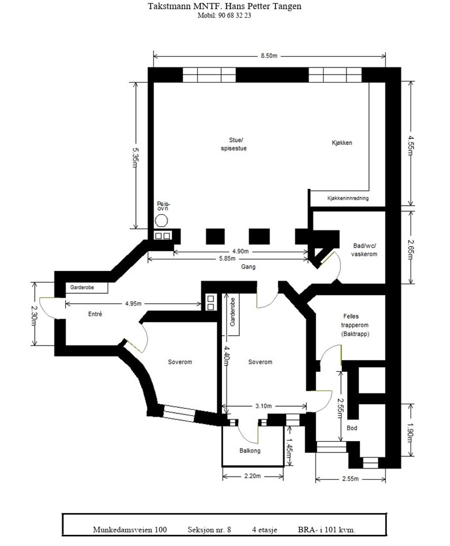
- Soverom
- 2
- Internt bruksareal
- 101 m² (BRA-i)
- Bruksareal
- 106 m²
- Eksternt bruksareal
- 5 m² (BRA-e)
- Balkong/Terrasse
- 3 m² (TBA)
- Etasje
- 4
- Byggeår
- 1896
- Energimerking
- G - Oransje
- Rom
- 3
- Tomteareal
- 602 m² (eiet)
Fasiliteter
Barnevennlig
Balkong/Terrasse
Kabel-TV
Heis
Offentlig vann/kloakk
Parkett
Peis/Ildsted
Turterreng
Utsikt
Sentralt
Bredbåndstilknytning
Rolig
Bademulighet
Om boligen
Delikat og innbydende leilighet bak klassisk bygårdsfasade på Skillebekk. Leiligheten ble betydelig oppgradert i 2018 og fremstår moderne og gjennomgående, med en fin balanse mellom klassiske rammer og oppdatert standard. Bygården er tegnet av arkitekt Ivar Cock, og er et godt eksempel på den solide og vakre arkitekturen som preger nabolaget.
. God takhøyde på over 3 meter, enstavs furuparkett og downlights
. Stue og kjøkken er forent i ett stort oppholdsrom
. Rom for gjester og selskapeligheter
. Morgensol i stuen og svale soverom mot bakgård
. Jøtul-peis innstallert i 2019
. 2 gode soverom, master med eget walk-in
. Sørvestvendt balkong fra 2024 mot rolig bakgård
. Delikat, romslig baderom fra 2018 med nisje for vaskesøyle
. Disponerer kjellerbod på 5 m²
. Enkel heisadkomst
. God takhøyde på over 3 meter, enstavs furuparkett og downlights
. Stue og kjøkken er forent i ett stort oppholdsrom
. Rom for gjester og selskapeligheter
. Morgensol i stuen og svale soverom mot bakgård
. Jøtul-peis innstallert i 2019
. 2 gode soverom, master med eget walk-in
. Sørvestvendt balkong fra 2024 mot rolig bakgård
. Delikat, romslig baderom fra 2018 med nisje for vaskesøyle
. Disponerer kjellerbod på 5 m²
. Enkel heisadkomst
NB: Knappen for å vise hele beskrivelsen har kun en visuell effekt.
NB: Knappen for å vise hele beskrivelsen har kun en visuell effekt.
Salgsoppgaven beskriver vesentlig og lovpålagt informasjon om eiendommen
Se komplett salgsoppgaveNærområdet

PrivatMegleren Dyve & Partnere
Kun det beste på dine vegne
Annonseinformasjon
| FINN-kode | 446265656 |
|---|---|
| Sist endret | 27. jan. 2026 05:07 |
| Referanse | 159251013 |
Annonsene kan være mangelfulle i forhold til lovpålagt opplysningsplikt. Før bindende avtale inngås oppfordres interessenter til å innhente komplett informasjon fra meglerforetaket, selger eller utleier.





































