Bildegalleri

Velkommen til Gamle Åsvei 32 C, presentert av EiendomsMegler 1 ved Sigbjørn Shaswar-Vestå.
Byåsen/Åsveien
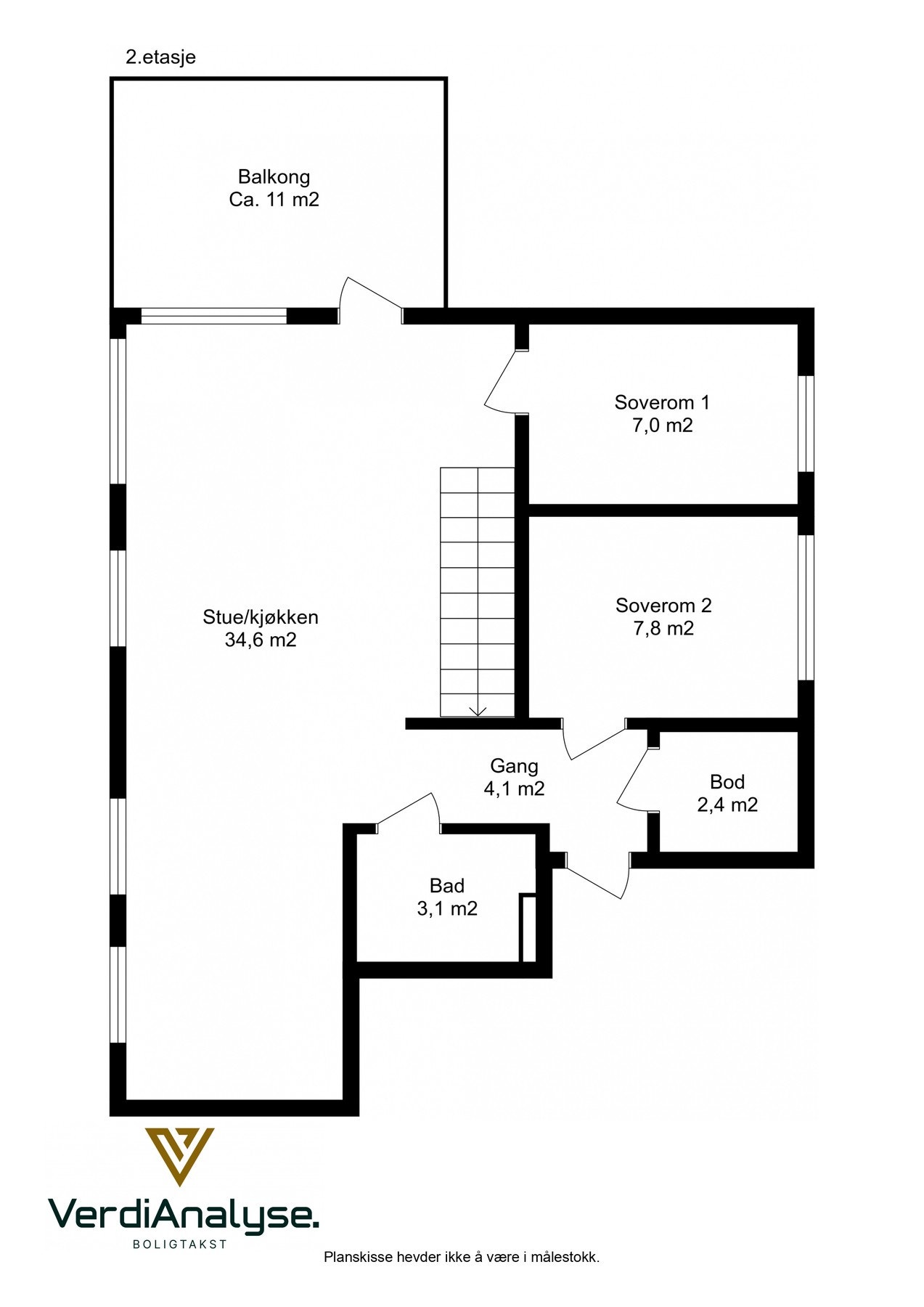
3-ROMS LEILIGHET I 2. ETASJE + LOFT. Nyoppusset i 2025 med høy standard. Takterrasse med panoramautsikt. Parkeringsplass
Prisantydning5 990 000 kr
Nøkkelinfo
- Boligtype
- Leilighet
- Eieform
- Eier (Selveier)
- Soverom
- 2
- Internt bruksareal
- 87 m² (BRA-i)
- Bruksareal
- 87 m²
- Balkong/Terrasse
- 17 m² (TBA)
- Etasje
- 2
- Byggeår
- 1934
- Energimerking
- G - Rød
- Rom
- 3
- Tomteareal
- 808 m² (eiet)
Fasiliteter
Barnevennlig
Balkong/Terrasse
Garasje/P-plass
Offentlig vann/kloakk
Parkett
Utsikt
Sentralt
Moderne
Rolig
Om boligen
Velkommen til Gamle Åsvei 32 C!
EiendomsMegler 1 ved Sigbjørn Shaswar-Vestå ønsker velkommen til en stilren 3-roms leilighet med beliggenhet i 2. etasje + loft. Leiligheten byr på to soverom, moderne bad og kjøkken og en luftig stue med flott utsikt. I tillegg har du ekstra areal på det koselige loftet med skråtak, takvindu og utgang til takterrasse.
I Åsveien bor du svært sentralt med god kollektivforbindelse samt gang- og sykkelvei til sentrum, St. Olavs og Bymarka. Det er også kort skolevei til Åsveien skole.
Kvaliteter:
EiendomsMegler 1 ved Sigbjørn Shaswar-Vestå ønsker velkommen til en stilren 3-roms leilighet med beliggenhet i 2. etasje + loft. Leiligheten byr på to soverom, moderne bad og kjøkken og en luftig stue med flott utsikt. I tillegg har du ekstra areal på det koselige loftet med skråtak, takvindu og utgang til takterrasse.
I Åsveien bor du svært sentralt med god kollektivforbindelse samt gang- og sykkelvei til sentrum, St. Olavs og Bymarka. Det er også kort skolevei til Åsveien skole.
Kvaliteter:
- Renovert i 2025 med nye overflater, kjøkken, bad og elektrisk anlegg
- Stue med utgang til balkong og panoramautsikt mot byens severdigheter
- To fine soverom på hhv. 7 og 7,8 kvm
- Lekkert bad med gulvvarme
- Romslig kjøkken med god utforming
- Solrike uteplasser
- Parkeringsplass
- Kort vei til skole, kollektivtransport og Bymarka
Velkommen!
NB: Knappen for å vise hele beskrivelsen har kun en visuell effekt.
NB: Knappen for å vise hele beskrivelsen har kun en visuell effekt.
Salgsoppgaven beskriver vesentlig og lovpålagt informasjon om eiendommen
Se komplett salgsoppgaveNyttige lenker
Nærområdet
EiendomsMegler 1 Byåsen
Vi loser deg trygt gjennom hele boligsalget
Annonseinformasjon
| FINN-kode | 446257988 |
|---|---|
| Sist endret | 06. mars 2026 05:01 |
| Referanse | 35250214 |
Annonsene kan være mangelfulle i forhold til lovpålagt opplysningsplikt. Før bindende avtale inngås oppfordres interessenter til å innhente komplett informasjon fra meglerforetaket, selger eller utleier.































