Bildegalleri

EiendomsMegler1 ved Kenneth Johansen har gleden av å presentere Væressletta 11 B! (Foto: Krokstad & Nervik - Jens Martin Nervik)
Væretrøa
STILREN OG MODERNE 2-ROMS FRA 2023. Fantastiske sol- og utsiktsforhold. TG0 på alle punkt. Innglasset balkong. P-plass.
Prisantydning1 950 000 kr
Nøkkelinfo
- Boligtype
- Leilighet
- Eieform
- Andel
- Soverom
- 1
- Internt bruksareal
- 37 m² (BRA-i)
- Bruksareal
- 49 m²
- Eksternt bruksareal
- 2 m² (BRA-e)
- Innglasset balkong
- 10 m² (BRA-b)
- Etasje
- 2
- Byggeår
- 2023
- Energimerking
- B - Mørkegrønn
- Rom
- 2
- Tomteareal
- 6 832 m² (eiet)
Fasiliteter
Barnevennlig
Balkong/Terrasse
Garasje/P-plass
Kabel-TV
Heis
Offentlig vann/kloakk
Parkett
Turterreng
Utsikt
Sentralt
Bredbåndstilknytning
Moderne
Rolig
Balansert ventilasjon
Visning
onsdag, 04. februar
16:30 – 17:15
Våre visninger har påmelding. Dette gjør vi for å kunne yte bedre service for våre kunder. Verdifullt for boligkjøper og for oss. Vi anbefaler at salgsoppgaven lastes ned digitalt før visning, og ring oss gjerne på forhånd for spørsmål om boligen. Passer ikke angitt tidspunkt, ta kontakt så finner vi en løsning. Skulle det mot formodning ikke være påmeldte til angitt visningstidspunkt vil ikke visning bli gjennomført.
Om boligen
EiendomsMegler 1 v/ Kenneth Johansen har gleden av å presentere Væressletta 11 B - en moderne og tiltalende 2-roms leilighet med fantastiske sol- og utsiktsforhold.
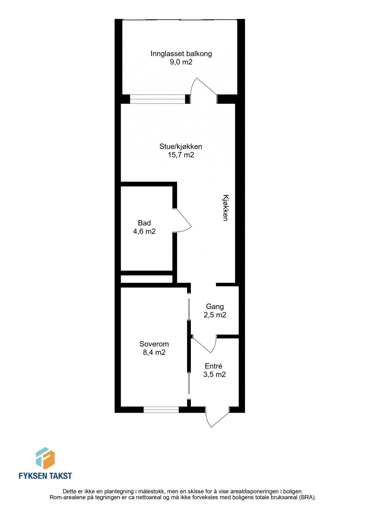
Nå har du muligheten til å sikre deg denne nyoppførte andelsleiligheten fra 2023. Leiligheten ligger i 2. etasje og fremstår som stilren, moderne og svært gjennomtenkt med en effektiv og god planløsning. Her får du en åpen stue- og kjøkkenløsning som gir gode møbleringsmuligheter, et pent flislagt bad, et romslig soverom samt en herlig innglasset balkong på 9m². Balkongen byr på flott utsikt mot Trondheimsfjorden og innehar svært gode solforhold. Leiligheten holder en gjennomgående høy standard, noe som gjenspeiles i tilstandsrapporten hvor samtlige punkter har fått TG0. Beliggenheten kombinerer nærhet til sjø og natur med kort vei til Trondheim sentrum og Trondheim Lufthavn. Væretrøa er et attraktivt område for deg som ønsker en tilbaketrukket beliggenhet i rolige omgivelser, samtidig som byens tilbud er lett tilgjengelig.
Av mange foretrukne kvaliteter fremheves:
Velkommen til en hyggelig visning!
Nå har du muligheten til å sikre deg denne nyoppførte andelsleiligheten fra 2023. Leiligheten ligger i 2. etasje og fremstår som stilren, moderne og svært gjennomtenkt med en effektiv og god planløsning. Her får du en åpen stue- og kjøkkenløsning som gir gode møbleringsmuligheter, et pent flislagt bad, et romslig soverom samt en herlig innglasset balkong på 9m². Balkongen byr på flott utsikt mot Trondheimsfjorden og innehar svært gode solforhold. Leiligheten holder en gjennomgående høy standard, noe som gjenspeiles i tilstandsrapporten hvor samtlige punkter har fått TG0. Beliggenheten kombinerer nærhet til sjø og natur med kort vei til Trondheim sentrum og Trondheim Lufthavn. Væretrøa er et attraktivt område for deg som ønsker en tilbaketrukket beliggenhet i rolige omgivelser, samtidig som byens tilbud er lett tilgjengelig.
Av mange foretrukne kvaliteter fremheves:
- Stilrent kjøkken med integrerte hvitevarer og rikelig med skap- og benkeplass
- Stor innglasset balkong med ypperlige sol- og utsiktsforhold
- Lyst og lekkert flislagt bad på ca. 4,6m² med alt du trenger
- TG0 på alle punkter i tilstandsrapporten
- Nybyggsgaranti i 5 år fra ferdigstillelse
- Parkeringsplass m/elbillader og bod i felles kjeller
Velkommen til en hyggelig visning!
NB: Knappen for å vise hele beskrivelsen har kun en visuell effekt.
NB: Knappen for å vise hele beskrivelsen har kun en visuell effekt.
Salgsoppgaven beskriver vesentlig og lovpålagt informasjon om eiendommen
Se komplett salgsoppgaveNyttige lenker
Nærområdet
EiendomsMegler 1 Grilstadporten
Vi loser deg trygt gjennom hele boligsalget
Annonseinformasjon
| FINN-kode | 446234572 |
|---|---|
| Sist endret | 23. jan. 2026 17:01 |
| Referanse | 33250375 |
Annonsene kan være mangelfulle i forhold til lovpålagt opplysningsplikt. Før bindende avtale inngås oppfordres interessenter til å innhente komplett informasjon fra meglerforetaket, selger eller utleier.

































