Bildegalleri

Kristian Knutsen v/DNB Eiendom har gleden av å presentere Storhammeren 41!
3-roms med balkong og naturskjønn utsikt! Oppussingsmulighet i populært borettslag med heis og sentral beliggenhet.
Prisantydning2 890 000 kr
Nøkkelinfo
- Boligtype
- Leilighet
- Eieform
- Andel
- Soverom
- 2
- Internt bruksareal
- 83 m² (BRA-i)
- Bruksareal
- 88 m²
- Eksternt bruksareal
- 5 m² (BRA-e)
- Balkong/Terrasse
- 11 m² (TBA)
- Etasje
- 5
- Byggeår
- 1973
- Energimerking
- E - Oransje
- Rom
- 3
- Tomteareal
- 106 025 m² (eiet)
Fasiliteter
Balkong/Terrasse
Barnevennlig
Bredbåndstilknytning
Garasje/P-plass
Heis
Kabel-TV
Offentlig vann/kloakk
Rolig
Sentralt
Utsikt
Vaktmester-/vektertjeneste
Turterreng
Lademulighet
Balansert ventilasjon
Om boligen
Velkommen til Storhammeren 41!
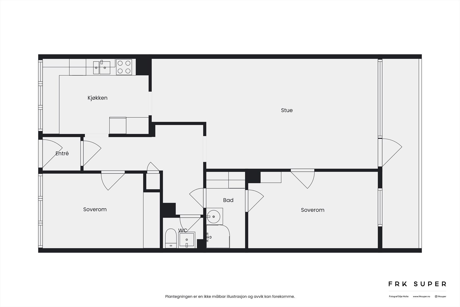
Lys og romslig 3-roms andelsleilighet i 5. etasje, med gode muligheter. Boligen har behov for noe modernisering, men byr på to soverom av god størrelse og en løsning med separat toalettrom adskilt fra det flislagte badet med dusjkabinett. Kjøkkenet (ikea) ligger i delvis åpen forbindelse med stuen, som har store vindusflater og rikelig med dagslys. Fra stuen er det direkte utgang til en solrik balkong. Et godt utgangspunkt for å skape et hjem etter egne ønsker.
Fra leiligheten er det gangavstand til offentlig transport, skole og ellers kort avstand til turmuligheter. Fra eiendommen tar det ca. 14 minutter å kjøre til Bergen Lufthavn og ca. 7 minutter til Bergen Togstasjon.
Velkommen til visning! - Husk visningspåmeldning.
Lys og romslig 3-roms andelsleilighet i 5. etasje, med gode muligheter. Boligen har behov for noe modernisering, men byr på to soverom av god størrelse og en løsning med separat toalettrom adskilt fra det flislagte badet med dusjkabinett. Kjøkkenet (ikea) ligger i delvis åpen forbindelse med stuen, som har store vindusflater og rikelig med dagslys. Fra stuen er det direkte utgang til en solrik balkong. Et godt utgangspunkt for å skape et hjem etter egne ønsker.
Fra leiligheten er det gangavstand til offentlig transport, skole og ellers kort avstand til turmuligheter. Fra eiendommen tar det ca. 14 minutter å kjøre til Bergen Lufthavn og ca. 7 minutter til Bergen Togstasjon.
Velkommen til visning! - Husk visningspåmeldning.
NB: Knappen for å vise hele beskrivelsen har kun en visuell effekt.
NB: Knappen for å vise hele beskrivelsen har kun en visuell effekt.
Salgsoppgaven beskriver vesentlig og lovpålagt informasjon om eiendommen
Se komplett salgsoppgaveNyttige lenker
Nærområdet
DNB Eiendom AS
Fra hjem til hjem
Annonseinformasjon
| FINN-kode | 446122878 |
|---|---|
| Sist endret | 15. jan. 2026 10:26 |
| Referanse | 704250407 |
Annonsene kan være mangelfulle i forhold til lovpålagt opplysningsplikt. Før bindende avtale inngås oppfordres interessenter til å innhente komplett informasjon fra meglerforetaket, selger eller utleier.




































