Bildegalleri

Bjoa/Innbjoa
Idyllisk beliggende småbruk med koselig våningshus - Fin utsikt - Strandlinje og nærhet til sjøen
Prisantydning3 490 000 kr
Nøkkelinfo
- Boligtype
- Gårdsbruk/Småbruk
- Eieform
- Selveier
- Soverom
- 3
- Internt bruksareal
- 76 m² (BRA-i)
- Bruksareal
- 76 m²
- Balkong/Terrasse
- 34 m² (TBA)
- Rom
- 4
- Tomteareal
- 73 783 m² (eiet)
Fasiliteter
Balkong/Terrasse
Barnevennlig
Hage
Peis/Ildsted
Rolig
Utsikt
Bademulighet
Fiskemulighet
Strandlinje
Turterreng
Visning
Ønsker du å delta på visningen ber vi deg melde deg på slik at vi vet at du kommer. Da kan vi bistå alle best mulig og gi deg tiden du trenger på visningen. Kontakt gjerne megler før visning hvis du har spørsmål. Visningen avholdes bare dersom det er påmeldte. Hvis det ikke er oppsatt visningstidspunkt eller tidspunkt ikke passer, kontakt megler.
VisningspåmeldingOm boligen
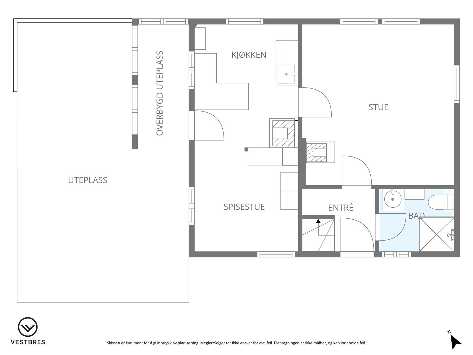
Et sjarmerende og idyllisk småbruk som byr på en sjelden mulighet til å eie en eiendom med nærhet til både landlige omgivelser og sjø. Eiendommen er på cirka 73 dekar og består av eiertomt med fulldyrket jord, produktiv skog og annet markslag. Med sin fine beliggenhet, fine utsikt og nærhet til sjø og badeplasser, er dette stedet som skapt for deg som drømmer om å kombinere naturskjønnhet og det enkle livet på landet.
Huset har eldre standard og vil kreve noe oppgradering, men med rette grep kan denne eiendommen bli ditt drømmested. Her finner du blant annet en koselig stue, romslig kjøkken, funksjonelt bad og tre soverom på loftet. Den landlige atmosfæren forsterkes av malte tregulv, tømmervegger og utsikten mot naturen utenfor.
Huset har eldre standard og vil kreve noe oppgradering, men med rette grep kan denne eiendommen bli ditt drømmested. Her finner du blant annet en koselig stue, romslig kjøkken, funksjonelt bad og tre soverom på loftet. Den landlige atmosfæren forsterkes av malte tregulv, tømmervegger og utsikten mot naturen utenfor.
NB: Knappen for å vise hele beskrivelsen har kun en visuell effekt.
NB: Knappen for å vise hele beskrivelsen har kun en visuell effekt.
Salgsoppgaven beskriver vesentlig og lovpålagt informasjon om eiendommen
Se komplett salgsoppgaveNyttige lenker
Nærområdet
Eiendomsmegler 1 avd Tysvær
En del av Sparebank 1 Sør-Norge
Annonseinformasjon
| FINN-kode | 446096428 |
|---|---|
| Sist endret | 29. mai 2026 11:17 |
| Referanse | 2503250189 |
Annonsene kan være mangelfulle i forhold til lovpålagt opplysningsplikt. Før bindende avtale inngås oppfordres interessenter til å innhente komplett informasjon fra meglerforetaket, selger eller utleier.


























































