Bildegalleri

EiendomsMegler1 ved Marianne Vasiljevic har gleden av å presentere Paul Røstads veg 47B!
Bratsberg
Pen og innholdsrik tomannsbolig i landlig, barnevennlig område - Solrik hjørnetomt - Carport - Kort vei skole/barnehage
Prisantydning4 490 000 kr
Nøkkelinfo
- Boligtype
- Tomannsbolig
- Eieform
- Eier (Selveier)
- Soverom
- 4
- Internt bruksareal
- 137 m² (BRA-i)
- Bruksareal
- 149 m²
- Eksternt bruksareal
- 12 m² (BRA-e)
- Balkong/Terrasse
- 38 m² (TBA)
- Byggeår
- 2013
- Energimerking
- C - Lysegrønn
- Rom
- 6
- Tomteareal
- 323 m² (eiet)
Fasiliteter
Barnevennlig
Balkong/Terrasse
Garasje/P-plass
Kabel-TV
Offentlig vann/kloakk
Parkett
Peis/Ildsted
Turterreng
Utsikt
Bredbåndstilknytning
Moderne
Rolig
Balansert ventilasjon
Visning
tirsdag, 03. februar
17:15 – 18:15
Våre visninger har påmelding. Dette gjør vi for å kunne yte bedre service for våre kunder. Verdifullt for boligkjøper og for oss. Vi anbefaler at salgsoppgaven lastes ned digitalt før visning, og ring oss gjerne på forhånd for spørsmål om boligen. Passer ikke angitt tidspunkt, ta kontakt så finner vi en løsning. Skulle det mot formodning ikke være påmeldte til angitt visningstidspunkt vil ikke visning bli gjennomført.
Om boligen
Velkommen til Paul Røstads veg 47 B!
EiendomsMegler1 ved Marianne Vasiljevic har gleden av å presentere denne flotte tomannsboligen med fin beliggenhet i boligfelt i Bratsberg. Boområdet Bratsberg kan best karakteriseres som fredelig og barnevennlig. Her bor du med gangavstand til blant annet skole og barnehage samtidig som man har nærhet til skog og mark med flotte turterreng sommer og vinter.
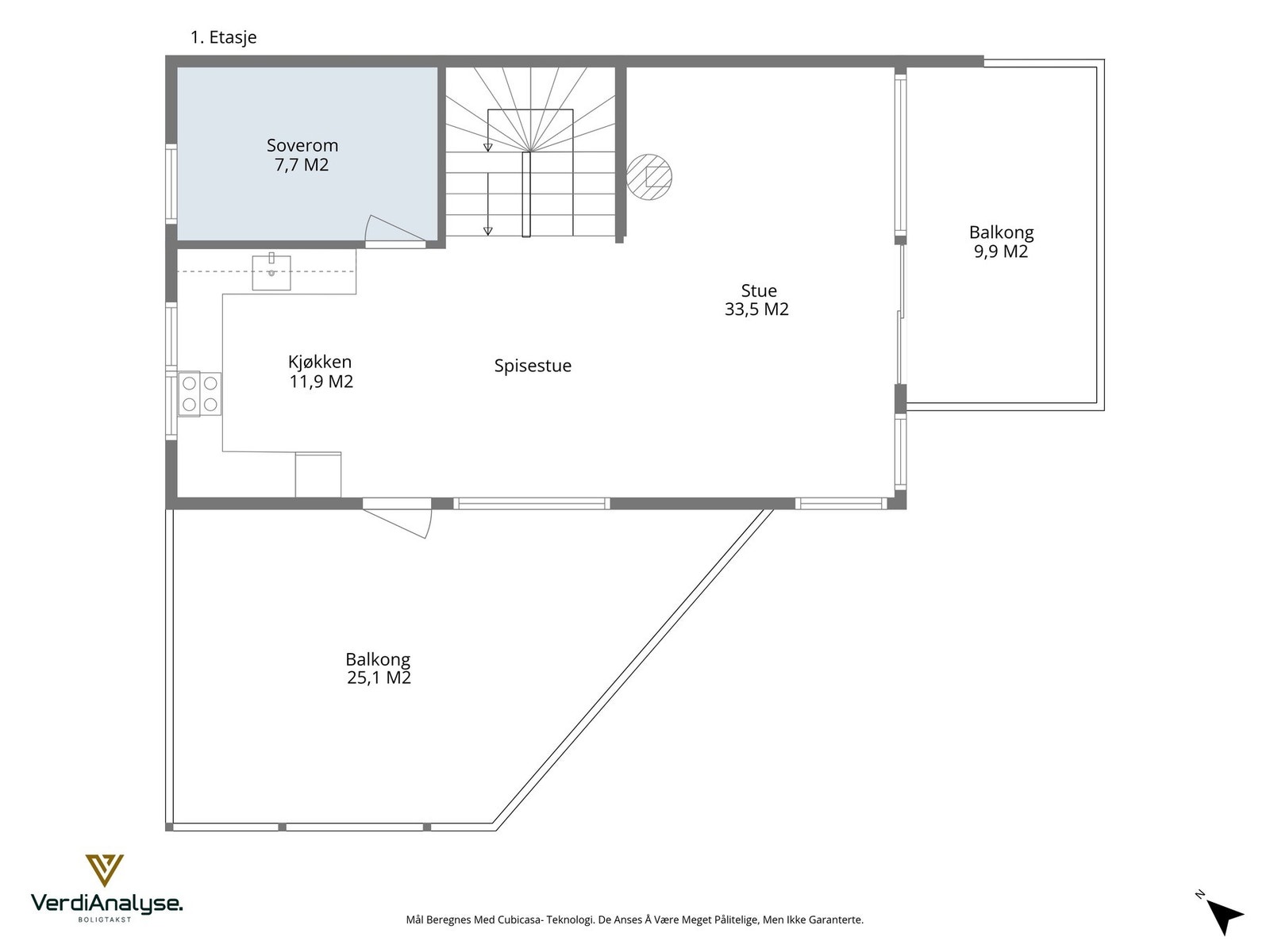
Rekkehuset er oppført i 2013 og har en gjennomgående god standard. Bra uteareal med terrasse og balkong med gode solforhold og fin utsikt.
Kvaliteter verdt å nevne:
- Fine oppholdsrom med store vindusflater gir boligen godt lys og god utsikt
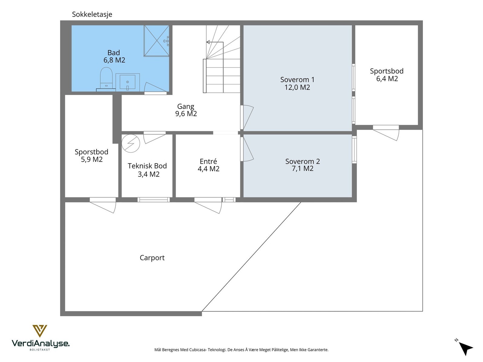
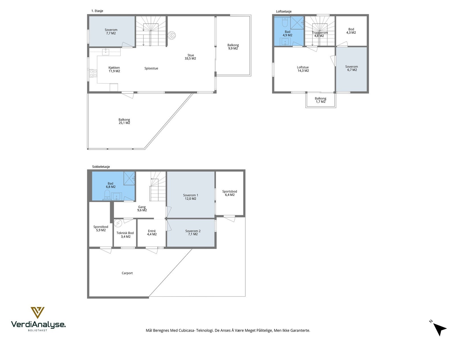
- Boligen inneholder bla. 2 stuer, 4 soverom, 2 bad. Balansert ventilasjon
- Carport. Oppstillingsplasser på tomten
- Solrik hjørnetomt gir en privat "eneboligfølelse"
- Kort vei til flott turterreng og lysløype
- Bratsberg Idrettsanlegg med kunstgressbane, lekeapparater i nærheten
- Jonsvatnet og Nidelva finnes en sykkeltur unna
Velkommen til visning!
EiendomsMegler1 ved Marianne Vasiljevic har gleden av å presentere denne flotte tomannsboligen med fin beliggenhet i boligfelt i Bratsberg. Boområdet Bratsberg kan best karakteriseres som fredelig og barnevennlig. Her bor du med gangavstand til blant annet skole og barnehage samtidig som man har nærhet til skog og mark med flotte turterreng sommer og vinter.
Rekkehuset er oppført i 2013 og har en gjennomgående god standard. Bra uteareal med terrasse og balkong med gode solforhold og fin utsikt.
Kvaliteter verdt å nevne:
- Fine oppholdsrom med store vindusflater gir boligen godt lys og god utsikt
- Boligen inneholder bla. 2 stuer, 4 soverom, 2 bad. Balansert ventilasjon
- Carport. Oppstillingsplasser på tomten
- Solrik hjørnetomt gir en privat "eneboligfølelse"
- Kort vei til flott turterreng og lysløype
- Bratsberg Idrettsanlegg med kunstgressbane, lekeapparater i nærheten
- Jonsvatnet og Nidelva finnes en sykkeltur unna
Velkommen til visning!
NB: Knappen for å vise hele beskrivelsen har kun en visuell effekt.
NB: Knappen for å vise hele beskrivelsen har kun en visuell effekt.
Salgsoppgaven beskriver vesentlig og lovpålagt informasjon om eiendommen
Se komplett salgsoppgaveNyttige lenker
Nærområdet
EiendomsMegler 1 Lerkendal
Vi loser deg trygt gjennom hele boligsalget
Annonseinformasjon
| FINN-kode | 446087079 |
|---|---|
| Sist endret | 28. jan. 2026 09:47 |
| Referanse | 37250356 |
Annonsene kan være mangelfulle i forhold til lovpålagt opplysningsplikt. Før bindende avtale inngås oppfordres interessenter til å innhente komplett informasjon fra meglerforetaket, selger eller utleier.






































