Bildegalleri

Velkommen til Svensenga 110! Foto: Petter Tanum/ Tanumfoto
Svensenga v/marka
Flott, familievennlig enderekkehus i meget populært område. Svært god intern beliggenhet. Kort avstand til "alt", Garasj
Prisantydning12 950 000 kr
Nøkkelinfo
- Boligtype
- Rekkehus
- Eieform
- Eier (Selveier)
- Soverom
- 4
- Internt bruksareal
- 125 m² (BRA-i)
- Bruksareal
- 133 m²
- Eksternt bruksareal
- 8 m² (BRA-e)
- Balkong/Terrasse
- 55 m² (TBA)
- Etasje
- 3
- Byggeår
- 1984
- Energimerking
- F - Oransje
- Rom
- 5
- Tomteareal
- 223 m² (eiet)
Fasiliteter
Balkong/Terrasse
Barnevennlig
Bredbåndstilknytning
Garasje/P-plass
Hage
Kjæledyr tillatt
Parkett
Peis/Ildsted
Rolig
Sentralt
Utsikt
Turterreng
Lademulighet
Om boligen
Velkommen til Svensenga 110!
Herlig beliggende enderekkehus i barnevennlig område. Svensenga byr på flere fine lekeplasser internt på feltet og barna kan ferdes trygt i nabolaget. Fra eiendommen er det gangavstand til matbutikker, offentlig kommunikasjon, servicetilbudet på Frysjaparken og du har kun få minutters gange til marka.
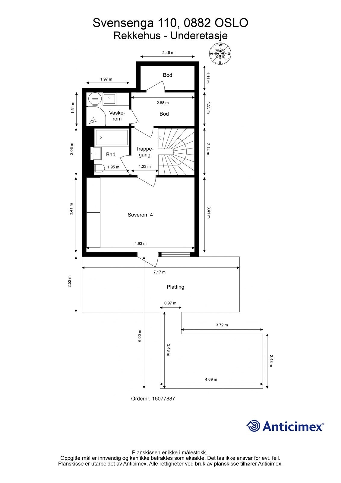
Huset har en meget god planløsning med entré/gang, toalettrom og 3 soverom i 1. etasje. I 2. etasje er det en romslig stue med peisovn, godt og lyst kjøkken med HTH innredning fra 2012 og utgang til flott balkong. Underetasjen består av bad, vaskerom, bod og kjellerstue/soverom med utgang til en herlig hage. Godt med lagringsplass i bodene, på loft samt i utvendig bod. Yttertaket ble skiftet i 2014. Garasje med elbillader medfølger.
Velkommen til visning!
Herlig beliggende enderekkehus i barnevennlig område. Svensenga byr på flere fine lekeplasser internt på feltet og barna kan ferdes trygt i nabolaget. Fra eiendommen er det gangavstand til matbutikker, offentlig kommunikasjon, servicetilbudet på Frysjaparken og du har kun få minutters gange til marka.
Huset har en meget god planløsning med entré/gang, toalettrom og 3 soverom i 1. etasje. I 2. etasje er det en romslig stue med peisovn, godt og lyst kjøkken med HTH innredning fra 2012 og utgang til flott balkong. Underetasjen består av bad, vaskerom, bod og kjellerstue/soverom med utgang til en herlig hage. Godt med lagringsplass i bodene, på loft samt i utvendig bod. Yttertaket ble skiftet i 2014. Garasje med elbillader medfølger.
Velkommen til visning!
NB: Knappen for å vise hele beskrivelsen har kun en visuell effekt.
NB: Knappen for å vise hele beskrivelsen har kun en visuell effekt.
Salgsoppgaven beskriver vesentlig og lovpålagt informasjon om eiendommen
Se komplett salgsoppgaveNyttige lenker
Nærområdet
Krogsveen Grefsen
Verdien av en god megler.
Annonseinformasjon
| FINN-kode | 446068620 |
|---|---|
| Sist endret | 17. jan. 2026 09:07 |
| Referanse | KR41.25117 |
Annonsene kan være mangelfulle i forhold til lovpålagt opplysningsplikt. Før bindende avtale inngås oppfordres interessenter til å innhente komplett informasjon fra meglerforetaket, selger eller utleier.
































































