Bildegalleri

Aktiv Eiendomsmegling v/Anders Borgsø har gleden av å presentere en flott selveierleilighet over 2 plan i Brugata 2. Foto: EFKT/Kvello
BRYGGA/BRUGATA
NY VISNING. Pen selveierleilighet i sentrum. 2 soverom I 2 stuer I Balkong og terrasse I P-plass i kjeller.
Prisantydning3 590 000 kr
Nøkkelinfo
- Boligtype
- Leilighet
- Eieform
- Eier (Selveier)
- Soverom
- 2
- Internt bruksareal
- 103 m² (BRA-i)
- Bruksareal
- 106 m²
- Eksternt bruksareal
- 3 m² (BRA-e)
- Balkong/Terrasse
- 13 m² (TBA)
- Etasje
- 3
- Byggeår
- 1991
- Energimerking
- Tomteareal
- 2 975 m² (eiet)
Fasiliteter
Balkong/Terrasse
Bredbåndstilknytning
Garasje/P-plass
Heis
Offentlig vann/kloakk
Parkett
Rolig
Sentralt
Vaktmester-/vektertjeneste
Turterreng
Balansert ventilasjon
Visning
Ved annonsert visning er det viktig at du melder deg på visningen ved å bruke visningspåmeldingsknappen eller kontakter megler. Annonserte visninger hvor det ikke er noen påmeldte innen kl. 12.00 på visningsdagen vil ikke bli avholdt.
For visninger utover dette, ta direkte kontakt med megler.
VisningspåmeldingOm boligen
Aktiv Eiendomsmegling v/Anders Borgsø har gleden av å presentere en romslig og innholdsrik selveierleilighet midt i Steinkjer sentrum.
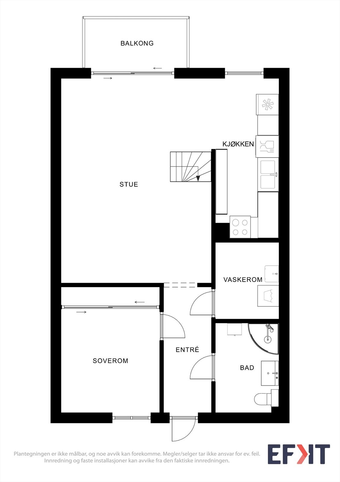
Leiligheten går over 2 plan, og innholder følgende:
3.etg: Gang, soverom, bad, vaskerom, stue, kjøkken og balkong.
Loftsetasje: Loftsstue, soverom, bod og takterrasse.
Det medfølger p-plass i kjeller samt 1 stk sportsbod.
Verdt å merke seg:
Leiligheten går over 2 plan, og innholder følgende:
3.etg: Gang, soverom, bad, vaskerom, stue, kjøkken og balkong.
Loftsetasje: Loftsstue, soverom, bod og takterrasse.
Det medfølger p-plass i kjeller samt 1 stk sportsbod.
Verdt å merke seg:
- 2 soverom.
- Garasjeplass.
- 2 stuer.
- Vaskerom
- 2 uteplasser samt tilgang til felles balkong mot elva.
- Mulighet for lån av flott fellesrom ved selskap o.l.
- Mulighet for rask overtagelse.
Velkommen på visning. Husk påmelding:)
NB: Knappen for å vise hele beskrivelsen har kun en visuell effekt.
NB: Knappen for å vise hele beskrivelsen har kun en visuell effekt.
Salgsoppgaven beskriver vesentlig og lovpålagt informasjon om eiendommen
Se komplett salgsoppgaveNærområdet
Aktiv Steinkjer
Annonseinformasjon
| FINN-kode | 445960157 |
|---|---|
| Sist endret | 10. mars 2026 13:06 |
| Referanse | 1708250312 |
Annonsene kan være mangelfulle i forhold til lovpålagt opplysningsplikt. Før bindende avtale inngås oppfordres interessenter til å innhente komplett informasjon fra meglerforetaket, selger eller utleier.





















