Bildegalleri

Velkommen til Møglestuveien 23
Lillesand
Stansa Park | Romslig 4-roms leilighet med livsløpsstandard | Stor, solrik balkong | P-plass og bod i kjeller | Heis
Prisantydning3 450 000 kr
Nøkkelinfo
- Boligtype
- Leilighet
- Eieform
- Andel
- Soverom
- 3
- Internt bruksareal
- 90 m² (BRA-i)
- Bruksareal
- 95 m²
- Eksternt bruksareal
- 5 m² (BRA-e)
- Balkong/Terrasse
- 17 m² (TBA)
- Etasje
- 2
- Byggeår
- 2018
- Energimerking
- E - Mørkegrønn
- Rom
- 4
- Tomteareal
- 1 287 m² (eiet)
Fasiliteter
Balkong/Terrasse
Barnevennlig
Bredbåndstilknytning
Garasje/P-plass
Heis
Parkett
Rolig
Sentralt
Turterreng
Balansert ventilasjon
Visning
Alle våre visninger har påmelding. Det er enkelt å melde seg på ved å bruke knappen visningspåmelding. Frist for påmelding er kl.13.00 samme dag som det oppsatte visningstidspunktet. Visning uten påmelding vil ikke bli avholdt.
VisningspåmeldingOm boligen
Smakfull 4-roms leilighet i Stansa Park, sentralt i Lilllesand. Her har man kort vei til det meste en familie trenger i hverdagen - slik som barnehager, skoler i alle trinn, idrettsanlegg, kjøpesenter og sentrum, samt kollektivtrafikk med gode bussforbindelser både øst og vest.
Leiligheten har livsløpsstandard og god kvalitet på stil, innredning og overflater. Den har en funksjonell planløsning på 90 kvm, pluss solrik balkong, samt privat sportsbod og egen p-plass i lukket garasjeanlegg i kjeller. Det er heis i bygget.
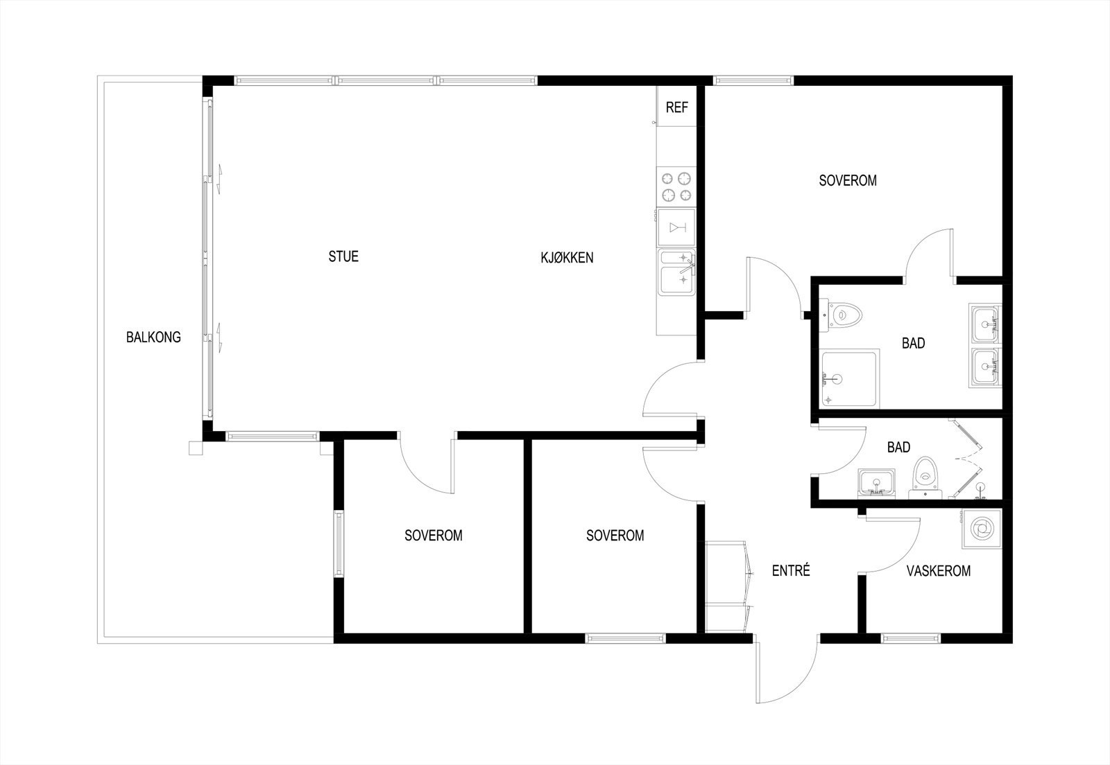
Leiligheten ligger i 2. etasje og inneholder: Entré/gang, stue/kjøkken med utgang til nordvest-vendt balkong, gjestebad/wc, 3 soverom - hvor hovedsoverom har eget bad, samt teknisk bod/vaskerom.
Velkommen til en hyggelig visning - husk påmelding!
Leiligheten har livsløpsstandard og god kvalitet på stil, innredning og overflater. Den har en funksjonell planløsning på 90 kvm, pluss solrik balkong, samt privat sportsbod og egen p-plass i lukket garasjeanlegg i kjeller. Det er heis i bygget.
Leiligheten ligger i 2. etasje og inneholder: Entré/gang, stue/kjøkken med utgang til nordvest-vendt balkong, gjestebad/wc, 3 soverom - hvor hovedsoverom har eget bad, samt teknisk bod/vaskerom.
Velkommen til en hyggelig visning - husk påmelding!
NB: Knappen for å vise hele beskrivelsen har kun en visuell effekt.
NB: Knappen for å vise hele beskrivelsen har kun en visuell effekt.
Salgsoppgaven beskriver vesentlig og lovpålagt informasjon om eiendommen
Se komplett salgsoppgaveNyttige lenker
Nærområdet
BOLIGMEGLEREN STRAY
Annonseinformasjon
| FINN-kode | 445956203 |
|---|---|
| Sist endret | 13. jan. 2026 14:51 |
| Referanse | STR1.25484 |
Annonsene kan være mangelfulle i forhold til lovpålagt opplysningsplikt. Før bindende avtale inngås oppfordres interessenter til å innhente komplett informasjon fra meglerforetaket, selger eller utleier.























