Bildegalleri

Velkommen til Chr. Tidemanns vei 120- Foto: Momenths of North AS. Silje. M. Karlsen
Enebolig med fin beliggenhet og fantastisk utsikt - renoveringsobjekt - Stor dobbelgarasje på egen tomt
Prisantydning550 000 kr
Nøkkelinfo
- Boligtype
- Enebolig
- Eieform
- Eier (Selveier)
- Soverom
- 2
- Internt bruksareal
- 82 m² (BRA-i)
- Bruksareal
- 135 m²
- Eksternt bruksareal
- 53 m² (BRA-e)
- Balkong/Terrasse
- 20 m² (TBA)
- Etasje
- 2
- Byggeår
- 1955
- Energimerking
- F - Oransje
- Rom
- 3
- Tomteareal
- 624 m² (eiet)
Fasiliteter
Balkong/Terrasse
Garasje/P-plass
Hage
Kjæledyr tillatt
Peis/Ildsted
Sentralt
Utsikt
Visning
Vi i Notar ønsker å avholde så gode visninger som mulig. Derfor har vi påmeldingsvisninger. Da vet vi hvor mange som kommer, og kan sette av nok tid til alle. Trykk på linken visningspåmelding for å avtale tidspunkt. Visninger uten påmeldte innen kl. 16:00 dagen i forkant, vil ikke bli avholdt. Velkommen til visning.
VisningspåmeldingOm boligen
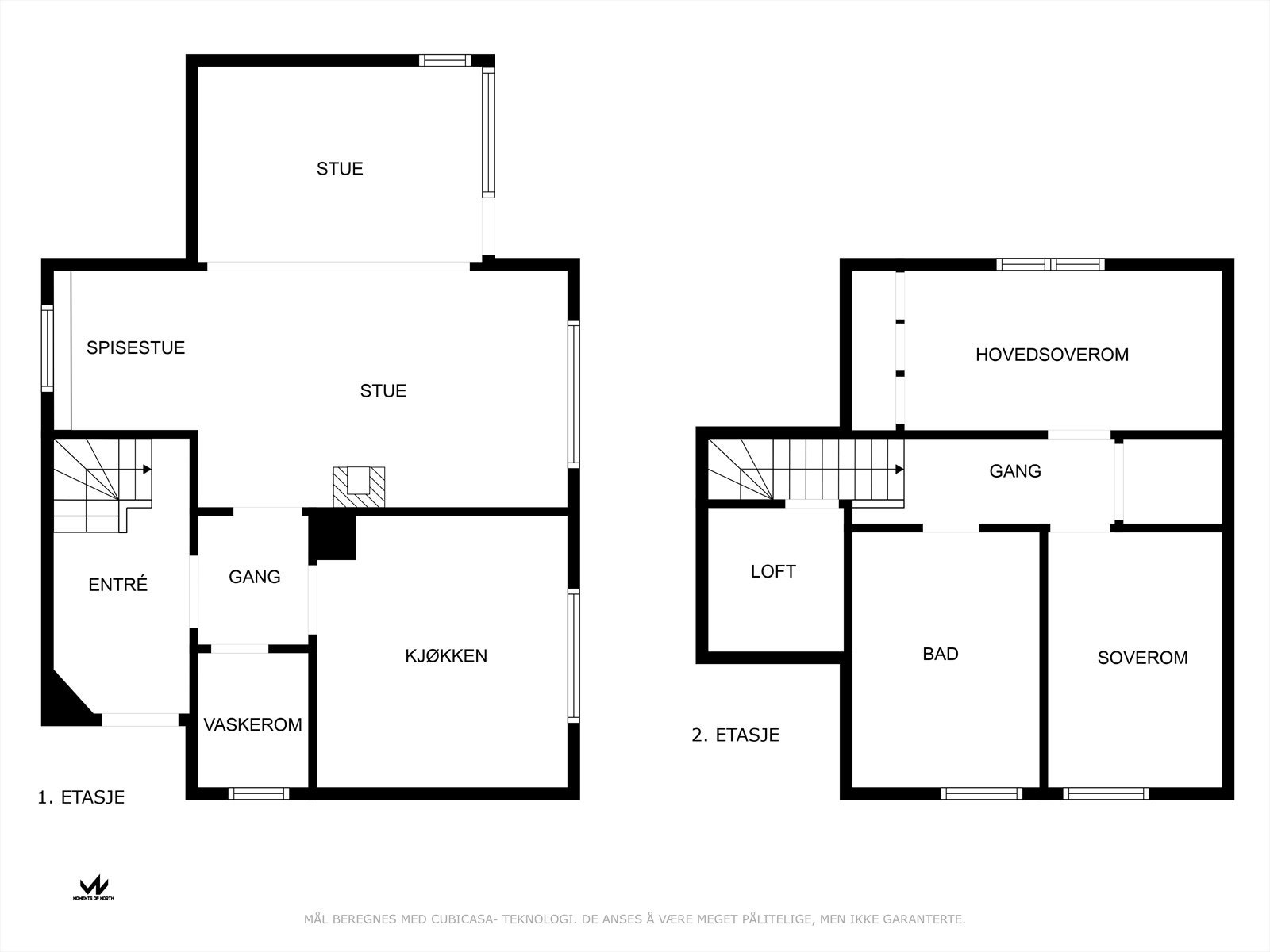
Velkommen til denne eneboligen med fin beliggenhet og fantastisk utsikt! Eiendommen ligger på Gjerset, ca. 3km fra Ørnes sentrum. Frittliggende bolig oppført trolig i 1955 og utbygget i 1981.
Hovedetasjen er med gang, hall m/trapp, vaskerom, kjøkken og stue, fra stuen er det utgang til en terrassedel. 2 etasjen har gang m/trapp, bad, og 2 soverom. Bygningen fremstår med store renoveringsbehov. Stor og flott dobbeltgarasje nede ved veien som står på egen tomt
Hovedetasjen er med gang, hall m/trapp, vaskerom, kjøkken og stue, fra stuen er det utgang til en terrassedel. 2 etasjen har gang m/trapp, bad, og 2 soverom. Bygningen fremstår med store renoveringsbehov. Stor og flott dobbeltgarasje nede ved veien som står på egen tomt
NB: Knappen for å vise hele beskrivelsen har kun en visuell effekt.
NB: Knappen for å vise hele beskrivelsen har kun en visuell effekt.
Salgsoppgaven beskriver vesentlig og lovpålagt informasjon om eiendommen
Se komplett salgsoppgaveNærområdet
Notar Salten
God magefølelse
Annonseinformasjon
| FINN-kode | 445934712 |
|---|---|
| Sist endret | 14. jan. 2026 11:25 |
| Referanse | NO7.2514 |
Annonsene kan være mangelfulle i forhold til lovpålagt opplysningsplikt. Før bindende avtale inngås oppfordres interessenter til å innhente komplett informasjon fra meglerforetaket, selger eller utleier.





















