Bildegalleri

Inaktiv
ABILDSØ
Unik mulighet! Innholdsrik leilighet over hele 2. etg. i tremannsbolig - 114kvm, utleiemulighet og betydelig potensial
Prisantydning7 950 000 kr
Nøkkelinfo
- Boligtype
- Leilighet
- Eieform
- Selveier
- Soverom
- 4
- Internt bruksareal
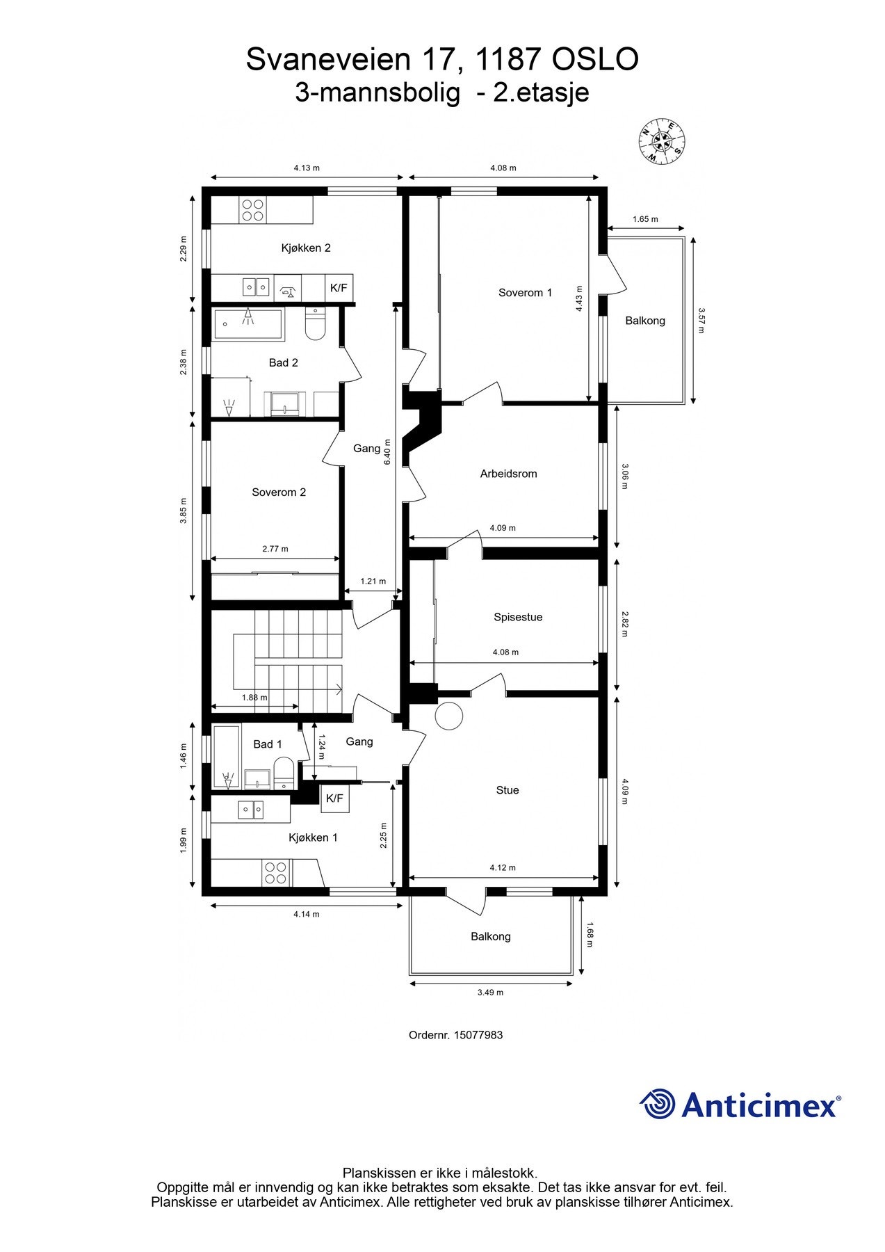
- 114 m² (BRA-i)
- Bruksareal
- 145 m²
- Eksternt bruksareal
- 31 m² (BRA-e)
- Balkong/Terrasse
- 12 m² (TBA)
- Etasje
- 2
- Byggeår
- 1953
- Energimerking
- E - Gul
- Rom
- 5
- Tomteareal
- 704 m²
Fasiliteter
Barnevennlig
Balkong/Terrasse
Garasje/P-plass
Kabel-TV
Offentlig vann/kloakk
Peis/Ildsted
Turterreng
Fellesvaskeri
Bredbåndstilknytning
Rolig
Bademulighet
Lademulighet
Om boligen
Drømmer du om god plass, grønne omgivelser og kort vei til byen? Velkommen til Svaneveien 17- en sjelden mulighet i en veletablert og rolig del av Abildsø. Her får du en 5-roms leilighet på hele 114 kvm. Med fleksibel planløsning er dette et hjem med mange muligheter hvor du kan skape ditt eget drømmehjem, perfekt for storfamilien med plass til alt og alle. Leiligheten er svært innholdsrik med flere rom, to kjøkken, to bad og gode oppbevaringsløsninger. Beliggenheten gir deg det beste av to verdener: fredelige omgivelser med Marka og Østensjøvannet rett i nærheten, samtidig som du har kort vei til skole, barnehager, kollektivtransport og sentrum.
Høydepunkter:
To innganger- fleksibel bruk og mange muligheter
Hageparsell og to balkonger
Ladeplasser i sameiet, garasje kan kjøpes*
Veletablert og rolig nabolag
To romslige kjellerboder
Mulighet for skattefri utleie
Kort vei til skole, barnehager og kollektivtransport
Her får du en unik kombinasjon av plass, natur og sentral beliggenhet!
Høydepunkter:
To innganger- fleksibel bruk og mange muligheter
Hageparsell og to balkonger
Ladeplasser i sameiet, garasje kan kjøpes*
Veletablert og rolig nabolag
To romslige kjellerboder
Mulighet for skattefri utleie
Kort vei til skole, barnehager og kollektivtransport
Her får du en unik kombinasjon av plass, natur og sentral beliggenhet!
NB: Knappen for å vise hele beskrivelsen har kun en visuell effekt.
NB: Knappen for å vise hele beskrivelsen har kun en visuell effekt.
Salgsoppgaven beskriver vesentlig og lovpålagt informasjon om eiendommen
Se komplett salgsoppgaveNyttige lenker
Nærområdet
Landkreditt Eiendom
NÅR KOMPETANSE TELLER
Annonseinformasjon
| FINN-kode | 445904255 |
|---|---|
| Sist endret | 18. mai 2026 12:13 |
| Referanse | 328250022 |
Annonsene kan være mangelfulle i forhold til lovpålagt opplysningsplikt. Før bindende avtale inngås oppfordres interessenter til å innhente komplett informasjon fra meglerforetaket, selger eller utleier.





















































