Bildegalleri

Pivatmegleren Park v/Thor Vegard Bjørnerud har gleden av å presentere Bispeluelia 6H!
Lekkert og påkostet enderekkehus over tre plan fra 2020 | Solrike uteområder og fin fjordutsikt | Garasje med lader
Nøkkelinfo
- Boligtype
- Rekkehus
- Eieform
- Eier (Selveier)
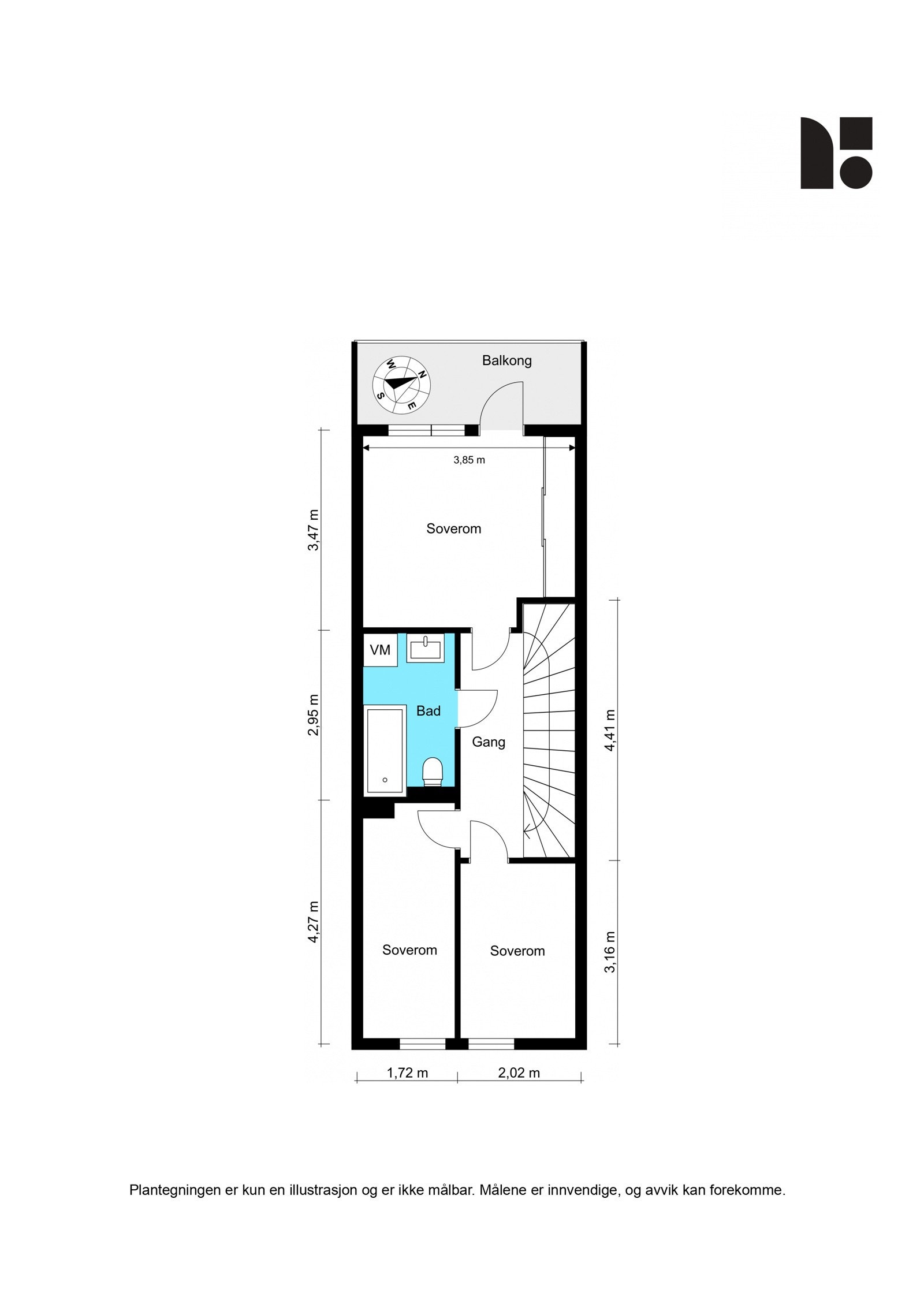
- Soverom
- 4
- Internt bruksareal
- 129 m² (BRA-i)
- Bruksareal
- 129 m²
- Balkong/Terrasse
- 32 m² (TBA)
- Byggeår
- 2020
- Energimerking
- B - Mørkegrønn
- Rom
- 6
- Tomt
- Eiet
Fasiliteter
Visning
Om boligen
Pivatmegleren Park v/Thor Vegard Bjørnerud har gleden av å presentere Bispeluelia 6H - Et moderne og lekkert enderekkehus fra 2020, attraktivt beliggende på populære Mortensrudhøyden.
Boligen er innholdsrik og går over tre plan med et samlet bruksareal på 129 m². Den rommer fire romslige soverom, lys stue med utsikt, kjøkken, to bad, separat wc, bod samt praktisk walk-in-garderobe. Stuen har utgang til en vestvendt terrasseplatting på 19 m², mens hovedsoverommet har direkte adkomst til vestvendt balkong på 6 m². Eiendommen byr på flere fine uteplasser som gir gode muligheter for både avslapning og sosiale sammenkomster.
Kort oppsummert:
- Moderne enderekkehus fra 2020
- Usjenert beliggenhet med flott fjordutsikt
- Vestvendt terrasse på 19 m²
- Garasjeplass med elbillader
Velkommen til visning!
Salgsoppgaven beskriver vesentlig og lovpålagt informasjon om eiendommen
Se komplett salgsoppgaveNyttige lenker
Nærområdet

PrivatMegleren Park
Annonsene kan være mangelfulle i forhold til lovpålagt opplysningsplikt. Før bindende avtale inngås oppfordres interessenter til å innhente komplett informasjon fra meglerforetaket, selger eller utleier.
















































