Bildegalleri

Ali Khoshnau ved EiendomsMegler 1 har gleden av å presentere Storbuktveien 14! Foto: EFKT (Vilde Dahl)
En meget innholdsrik enebolig med to garasjer, lun og fin beliggenhet med flott utsikt!
Prisantydning4 350 000 kr
Nøkkelinfo
- Boligtype
- Enebolig
- Eieform
- Eier (Selveier)
- Soverom
- 3
- Internt bruksareal
- 257 m² (BRA-i)
- Bruksareal
- 320 m²
- Eksternt bruksareal
- 63 m² (BRA-e)
- Byggeår
- 1976
- Energimerking
- E - Gul
- Tomteareal
- 2 076 m² (eiet)
Visning
mandag, 19. januar
17:00 – 18:00
Våre visninger har påmelding. Dette gjør vi for å kunne yte bedre service for våre kunder. Verdifullt for boligkjøper og for oss. Vi anbefaler at salgsoppgaven lastes ned digitalt før visning, og ring oss gjerne på forhånd for spørsmål om boligen. Passer ikke angitt tidspunkt, ta kontakt så finner vi en løsning. Skulle det mot formodning ikke være påmeldte til angitt visningstidspunkt vil ikke visning bli gjennomført.
Om boligen
Ali Khoshnau ved EiendomsMegler 1 har gleden av å presentere tere Storbuktveien 14.
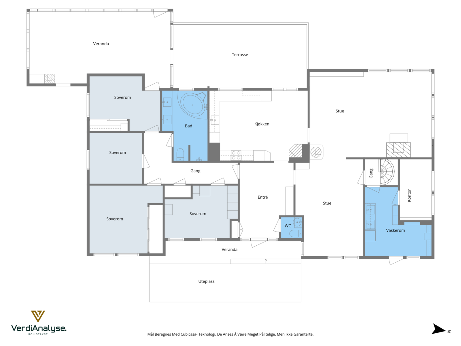
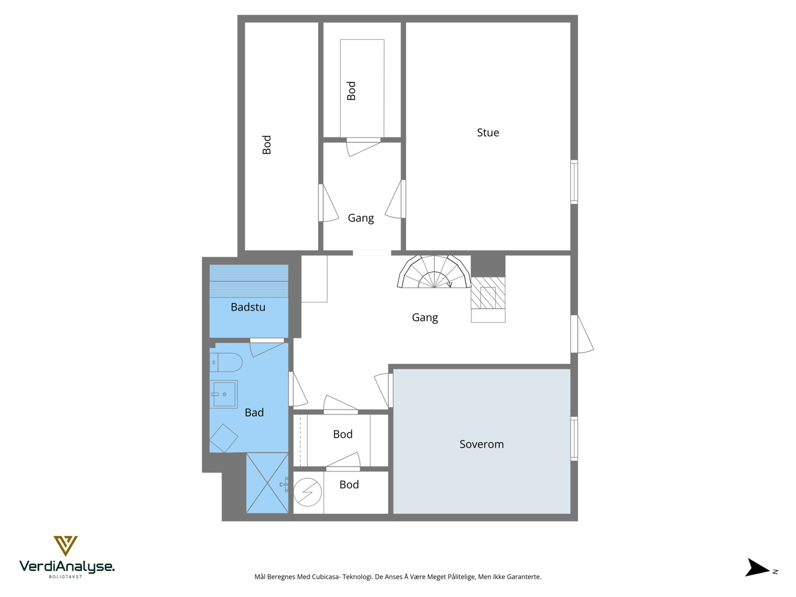
Innholdsrik enebolig som inneholder bl.a gang, 3 stue, kjøkken, kjellerstue, 5 soverom( 2 soverom er ikke omsøkt og godkjent) , kontor, 2 bad, toalettrom, vaskerom og diverse boder.
Tomten er pent opparbeidet med plen, blomsterbed, frukttrær, trær og prydbusker. Dobbelgarasje med innlagt strøm samt carport, parkering i dobbelgarasje eller carport. Forøvrig parkering på egen tomt.
Idyllisk og barnevennlig beliggenhet enebolig i Omsundet. Boligen ligger på en høyde, men likevel lunt, med flott utsikt over Omsundet. Når solen er fremme, har man denne fra tidlig morgen til sent på kveld. Forøvrig er det kort vei til skole, barnehage, butikk, treningssenter og flotte turområder, både til sjø og fjell.
Velkommen til visning!
Innholdsrik enebolig som inneholder bl.a gang, 3 stue, kjøkken, kjellerstue, 5 soverom( 2 soverom er ikke omsøkt og godkjent) , kontor, 2 bad, toalettrom, vaskerom og diverse boder.
Tomten er pent opparbeidet med plen, blomsterbed, frukttrær, trær og prydbusker. Dobbelgarasje med innlagt strøm samt carport, parkering i dobbelgarasje eller carport. Forøvrig parkering på egen tomt.
Idyllisk og barnevennlig beliggenhet enebolig i Omsundet. Boligen ligger på en høyde, men likevel lunt, med flott utsikt over Omsundet. Når solen er fremme, har man denne fra tidlig morgen til sent på kveld. Forøvrig er det kort vei til skole, barnehage, butikk, treningssenter og flotte turområder, både til sjø og fjell.
Velkommen til visning!
NB: Knappen for å vise hele beskrivelsen har kun en visuell effekt.
NB: Knappen for å vise hele beskrivelsen har kun en visuell effekt.
Salgsoppgaven beskriver vesentlig og lovpålagt informasjon om eiendommen
Se komplett salgsoppgaveNyttige lenker
Nærområdet
EiendomsMegler 1 Kristiansund
Vi loser deg trygt gjennom hele boligsalget
Annonseinformasjon
| FINN-kode | 445818080 |
|---|---|
| Sist endret | 12. jan. 2026 16:10 |
| Referanse | 17250507 |
Annonsene kan være mangelfulle i forhold til lovpålagt opplysningsplikt. Før bindende avtale inngås oppfordres interessenter til å innhente komplett informasjon fra meglerforetaket, selger eller utleier.







































