Bildegalleri

PrivatMegleren Renommé har gleden av å presentere Steingrims vei 9B!
Solgt
Bekkelaget
Frittliggende enebolig med vid utsikt | Hybel m/egen inngang | Solrik tomt med stort uteområde | Garasje
Prisantydning12 000 000 kr
Nøkkelinfo
- Boligtype
- Enebolig
- Eieform
- Eier (Selveier)
- Soverom
- 3
- Internt bruksareal
- 157 m² (BRA-i)
- Bruksareal
- 163 m²
- Eksternt bruksareal
- 6 m² (BRA-e)
- Balkong/Terrasse
- 38 m² (TBA)
- Byggeår
- 1971
- Tomteareal
- 699 m² (eiet)
Fasiliteter
Barnevennlig
Balkong/Terrasse
Garasje/P-plass
Peis/Ildsted
Utsikt
Sentralt
Rolig
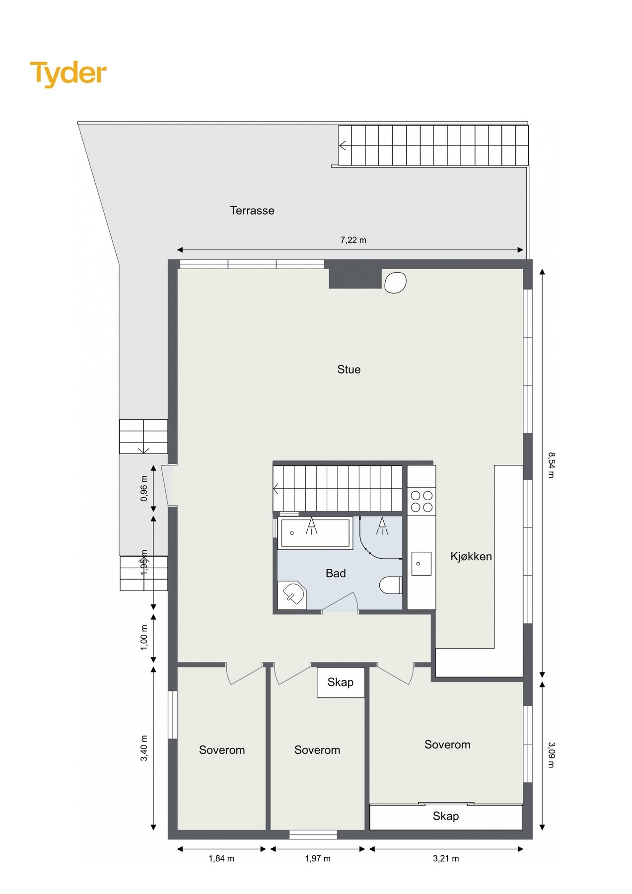
Om boligen
På et høydedrag på Bekkelaget presenteres en lys og innbydende enebolig med en sjelden kombinasjon av utsikt, sol og romslige utearealer. Her bor du stille og usjenert, omkranset av grønn bebyggelse og med en tomt som innbyr til både lek og hageglede.
Boligen strekker seg over to plan og byr på en sosial og åpen hovedetasje med store vindusflater som slipper utsikten inn. Terrassedører leder deg direkte ut til den solrike uteplassen - perfekt for varme sommerkvelder. I underetasjen ligger egen hybel med separat inngang, et fleksibelt og verdifullt tilskudd for både utleie og familiære behov.
Kjøkken fra Huseby med integrerte hvitevarer, hyggelig stue med peis, bad oppusset i 2019 og tre gode soverom gjør hjemmet komplett. Tomten må oppleves - grønn, romslig og uten sjenerende innsyn.
- Flott opparbeidet og delvis naturtomt
- Stue/spisestue med utsikt og peis
- Kjøkken fra Huseby med int. hvitevarer
- Bad modernisert i 2019
- Fire minutter til t-banen
- Sokner til Bekkelaget skole
Boligen strekker seg over to plan og byr på en sosial og åpen hovedetasje med store vindusflater som slipper utsikten inn. Terrassedører leder deg direkte ut til den solrike uteplassen - perfekt for varme sommerkvelder. I underetasjen ligger egen hybel med separat inngang, et fleksibelt og verdifullt tilskudd for både utleie og familiære behov.
Kjøkken fra Huseby med integrerte hvitevarer, hyggelig stue med peis, bad oppusset i 2019 og tre gode soverom gjør hjemmet komplett. Tomten må oppleves - grønn, romslig og uten sjenerende innsyn.
- Flott opparbeidet og delvis naturtomt
- Stue/spisestue med utsikt og peis
- Kjøkken fra Huseby med int. hvitevarer
- Bad modernisert i 2019
- Fire minutter til t-banen
- Sokner til Bekkelaget skole
NB: Knappen for å vise hele beskrivelsen har kun en visuell effekt.
NB: Knappen for å vise hele beskrivelsen har kun en visuell effekt.
Salgsoppgaven beskriver vesentlig og lovpålagt informasjon om eiendommen
Se komplett salgsoppgaveNyttige lenker
Nærområdet

PrivatMegleren Renommé
Kun det beste på dine vegne
Annonseinformasjon
| FINN-kode | 445804918 |
|---|---|
| Sist endret | 30. jan. 2026 14:29 |
| Referanse | 40251187 |
Annonsene kan være mangelfulle i forhold til lovpålagt opplysningsplikt. Før bindende avtale inngås oppfordres interessenter til å innhente komplett informasjon fra meglerforetaket, selger eller utleier.



































































