Bildegalleri

Velkommen til vakre Landås og Nordahl Rolfsens vei 29B! Presenter av Laila Flinterud i Fana Sparebank Eiendom.
Landås | Pent oppusset 3roms i 3. etg | Nye gulv i flere rom. Bad fra ca. 2016 | Peis | Flott utsikt og gode solforhold
Prisantydning3 450 000 kr
Nøkkelinfo
- Boligtype
- Leilighet
- Eieform
- Andel
- Soverom
- 2
- Internt bruksareal
- 65 m² (BRA-i)
- Bruksareal
- 72 m²
- Eksternt bruksareal
- 7 m² (BRA-e)
- Balkong/Terrasse
- 5 m² (TBA)
- Etasje
- 3
- Byggeår
- 1957
- Energimerking
- D - Gul
- Rom
- 3
- Tomteareal
- 12 767 m²
Fasiliteter
Balkong/Terrasse
Barnevennlig
Bredbåndstilknytning
Offentlig vann/kloakk
Parkett
Peis/Ildsted
Rolig
Sentralt
Utsikt
Turterreng
Om boligen
Velkommen til Nordahl Rolfsens vei 29B!
Leiligheten er perfekt for studenter, førstegangskjøpere eller par/små familier. En trivelig leilighet som inneholder alt en trenger, i et populært og sentrumsnært område på Landås!
Leiligheten inneholder følgende:
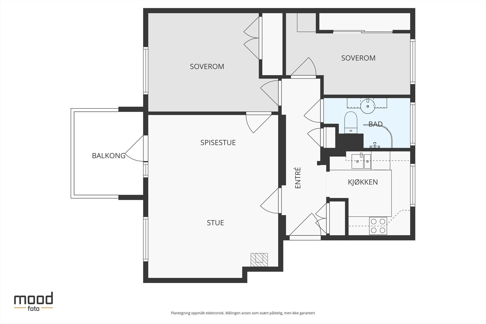
Entré, stue, kjøkken, bad, 2 soverom. Flere tilhørende boder.
Kort fortalt:
- Nyoppusset: malte flater, nytt gulv i flere rom 2025
- Fin intern beliggenhet i byggets 3. etasje
- Romslig balkong med nydelige sol- og utsiktsforhold
- Bad 2016, praktisk kjøkkenløsning
- Varmtvann inkl. i felleskost!
- God planløsning
- Like ved Sletten, Bybanestopp og fine turmuligheter
- Nært Haukeland, Haraldsplass og Odontologen
- Sentral plassering for studenter
- Parkering i offentlig gate
Velkommen til visning!
Leiligheten er perfekt for studenter, førstegangskjøpere eller par/små familier. En trivelig leilighet som inneholder alt en trenger, i et populært og sentrumsnært område på Landås!
Leiligheten inneholder følgende:
Entré, stue, kjøkken, bad, 2 soverom. Flere tilhørende boder.
Kort fortalt:
- Nyoppusset: malte flater, nytt gulv i flere rom 2025
- Fin intern beliggenhet i byggets 3. etasje
- Romslig balkong med nydelige sol- og utsiktsforhold
- Bad 2016, praktisk kjøkkenløsning
- Varmtvann inkl. i felleskost!
- God planløsning
- Like ved Sletten, Bybanestopp og fine turmuligheter
- Nært Haukeland, Haraldsplass og Odontologen
- Sentral plassering for studenter
- Parkering i offentlig gate
Velkommen til visning!
NB: Knappen for å vise hele beskrivelsen har kun en visuell effekt.
NB: Knappen for å vise hele beskrivelsen har kun en visuell effekt.
Salgsoppgaven beskriver vesentlig og lovpålagt informasjon om eiendommen
Se komplett salgsoppgaveNyttige lenker
Nærområdet
Fana Sparebank Eiendom
Annonseinformasjon
| FINN-kode | 445780584 |
|---|---|
| Sist endret | 12. jan. 2026 18:21 |
| Referanse | 01250441 |
Annonsene kan være mangelfulle i forhold til lovpålagt opplysningsplikt. Før bindende avtale inngås oppfordres interessenter til å innhente komplett informasjon fra meglerforetaket, selger eller utleier.












































