Bildegalleri

Det er med stor glede vi i Verdi &Partners v/Therese Kane kan presentere for salg Buggelandstubben 17.
Solgt
BOGAFJELL
Stor, innbydende enebolig m/god standard |5 sov.|2 utleieleiligheter| Hage samt flere solrike soner | Dobbel garasje
Prisantydning10 490 000 kr
Nøkkelinfo
- Boligtype
- Enebolig
- Eieform
- Eier (Selveier)
- Soverom
- 5
- Internt bruksareal
- 278 m² (BRA-i)
- Bruksareal
- 278 m²
- Eksternt bruksareal
- 35 m² (BRA-e)
- Balkong/Terrasse
- 49 m² (TBA)
- Byggeår
- 2003
- Energimerking
- C - Gul
- Tomteareal
- 568 m² (eiet)
Fasiliteter
Barnevennlig
Balkong/Terrasse
Garasje/P-plass
Kabel-TV
Offentlig vann/kloakk
Parkett
Peis/Ildsted
Turterreng
Utsikt
Sentralt
Bredbåndstilknytning
Moderne
Rolig
Lademulighet
Balansert ventilasjon
Om boligen
Det er med stolthet vi presenterer denne store og innbydende eneboligen i Buggelandstubben 17 på Bogafjell for salg. Eiendommen ligger skjermet til og holder gjennomgående høy standard.
1.etg.: Gang med fliser på gulv, toalettrom, bi-inngang/bad/vaskerom, stue, spisestue og kjøkken.
Kjøkkenet har god skap- og benkeplass, int. komfyr, mikro, koketopp, oppvaskmaskin og kjølerom.
Både stuen og spisestuen har en fantastisk panoramautsikt. Gode rom å invitere venner og familie til bords.
2.etg.: Gang, helfliset bad med både badekar og dusj, 3 (4) gode soverom, samt en trivelig loftstue m/god takhøyde, vedovn og fin utsikt. Overbygget terrasse med flotte solforhold.
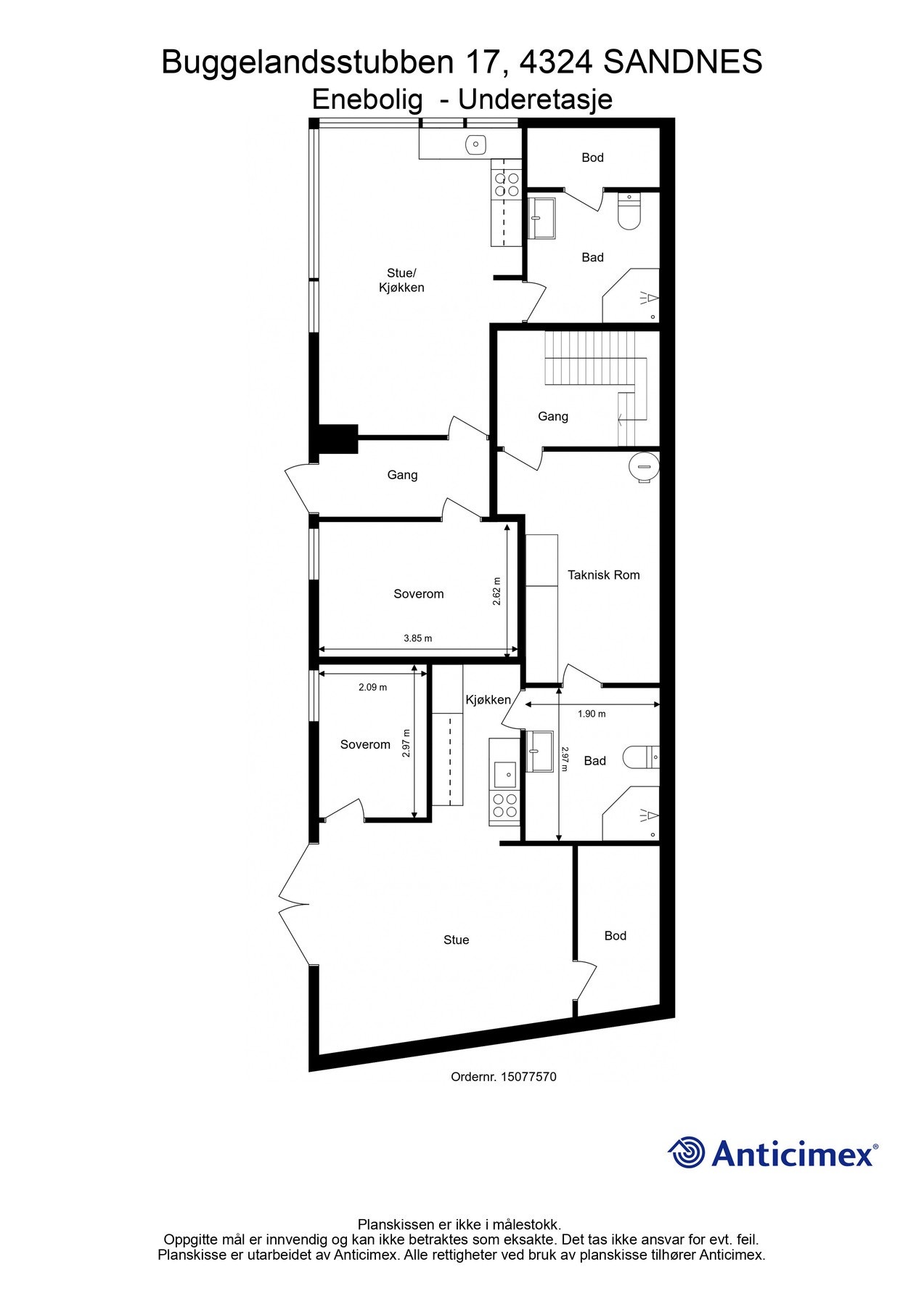
U.etg. egen del: Teknisk rom.
I tillegg finnes to utleieleiligheter som gir gode leieinntekter hhv. 9850,- og 10.000,- pr.mnd. En av leiligheten med tilgang til hoveddel.
Begge leiligheten inneholder stue/kjøkken, soverom og bad.
Dobbel garasje m/ el-billader.
Hagen ligger meget skjermet til og er pent opparbeidet.
1.etg.: Gang med fliser på gulv, toalettrom, bi-inngang/bad/vaskerom, stue, spisestue og kjøkken.
Kjøkkenet har god skap- og benkeplass, int. komfyr, mikro, koketopp, oppvaskmaskin og kjølerom.
Både stuen og spisestuen har en fantastisk panoramautsikt. Gode rom å invitere venner og familie til bords.
2.etg.: Gang, helfliset bad med både badekar og dusj, 3 (4) gode soverom, samt en trivelig loftstue m/god takhøyde, vedovn og fin utsikt. Overbygget terrasse med flotte solforhold.
U.etg. egen del: Teknisk rom.
I tillegg finnes to utleieleiligheter som gir gode leieinntekter hhv. 9850,- og 10.000,- pr.mnd. En av leiligheten med tilgang til hoveddel.
Begge leiligheten inneholder stue/kjøkken, soverom og bad.
Dobbel garasje m/ el-billader.
Hagen ligger meget skjermet til og er pent opparbeidet.
NB: Knappen for å vise hele beskrivelsen har kun en visuell effekt.
NB: Knappen for å vise hele beskrivelsen har kun en visuell effekt.
Salgsoppgaven beskriver vesentlig og lovpålagt informasjon om eiendommen
Se komplett salgsoppgaveNyttige lenker
Nærområdet
Verdi &Partners Sandnes
Verdien av lokalkunnskap
Annonseinformasjon
| FINN-kode | 445285543 |
|---|---|
| Sist endret | 27. jan. 2026 11:00 |
| Referanse | 203250135 |
Annonsene kan være mangelfulle i forhold til lovpålagt opplysningsplikt. Før bindende avtale inngås oppfordres interessenter til å innhente komplett informasjon fra meglerforetaket, selger eller utleier.
























































