Bildegalleri

Bilde tatt november 2024. Snart ferdigstilt
Skedsmokorset: Nybygg med unik profilering mot E6. Lager/kontor/verksted/bilsalg etc
Nøkkelinfo
- Areal
- 550 - 2 500 m²
- Byggeår
- 2025
Type lokale
Fasiliteter
Skedsmokorset: Nybygg med unik profilering mot E6. Lager/kontor/verksted/bilsalg etc
På det som kanskje er den mest profilerte tomten langs E6 mellom Oslo og Gardermoen er det bygget nybygg på ca 4500 kvm, hvorav store deler er utleid til anerkjente leietakere som Sortimo, Hertz og Riis Bilglass. Det er fortsatt ledige lokaler fra ca 550 kvm og opp til 2500 kvm for virksomheter som ønsker førsteklasses synlighet, eksponering og parkering.
De tilgjengelige lokalene har tilgang fra bakkeplan med kjøreporter, og tilpasses leietakers behov. Profileringsmulighetene mot E6 er svært gode.
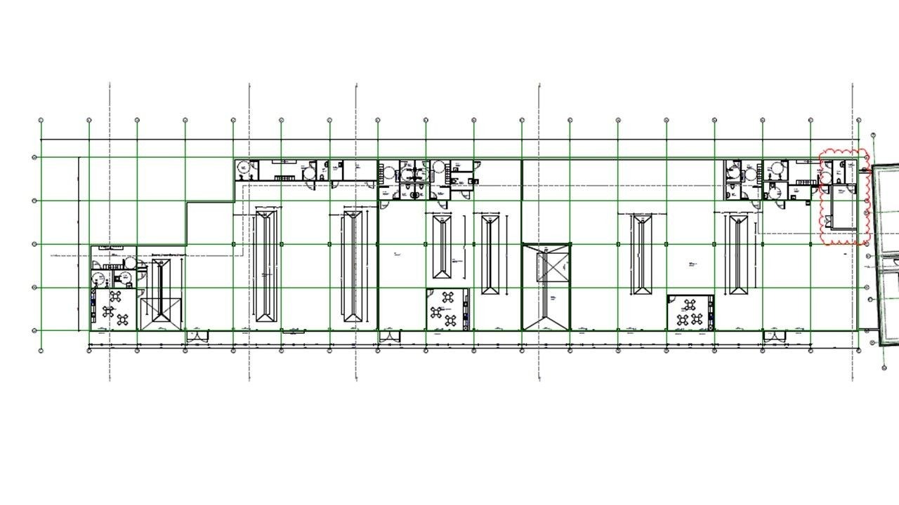
Se vedlagte skisser i PDF for utkast til plantegninger, men dette tegnes inn i samarbeid med leietaker. I øvre plan planlegges kontorlokaler (om ønskelig tilhørende butikklokale i etasjen under) med flott utsikt.
Det er parkeringsplasser og stort uteareal ut mot E6 samt mot Trondheimsveien, og mulighet for kunder å hente varer rett utenfor inngangsdøren. Lokalene vil tilpasses leietakers behov og ønsker. Ta kontakt for mer informasjon om prosjektet!
- Innflytting: 2025
- Gårdeier: Star Autoco Eiendom Skedsmo
Beliggenhet
Eiendommen ligger helt ut mot E6 ved Skedsmokorset, vis-a-vis Coop Extra. Det er innkjøring fra motorveikrysset på Skedsmokorset eller fra Hvam-krysset. Strategisk beliggenhet mellom Oslo og Gardermoen, og kort reisevei til Oslo nord og resten av Romerike.
- Beliggenhet: Viken, Lillestrøm
Fasiliteter
Nybygget er bygget etter gjeldende tekniske forskrifter, og for øvrig kan lokalene tilpasses etter leietakers ønsker. Ta gjerne kontakt for nærmere informasjon om dette.
Plantegninger
Visning
Ta kontakt for å avtale visning.Malling & Co Næringsmegling AS
Nærområdet
Annonseinformasjon
| FINN-kode | 445235814 |
|---|---|
| Sist endret | 09. jan. 2026 11:07 |
| Referanse | 655d41d14c01fa947327417e |
Annonsene kan være mangelfulle i forhold til lovpålagt opplysningsplikt. Før bindende avtale inngås oppfordres interessenter til å innhente komplett informasjon fra meglerforetaket, selger eller utleier.











