Bildegalleri

Velkommen inn til en pen og varm leilighet i et attraktivt område.
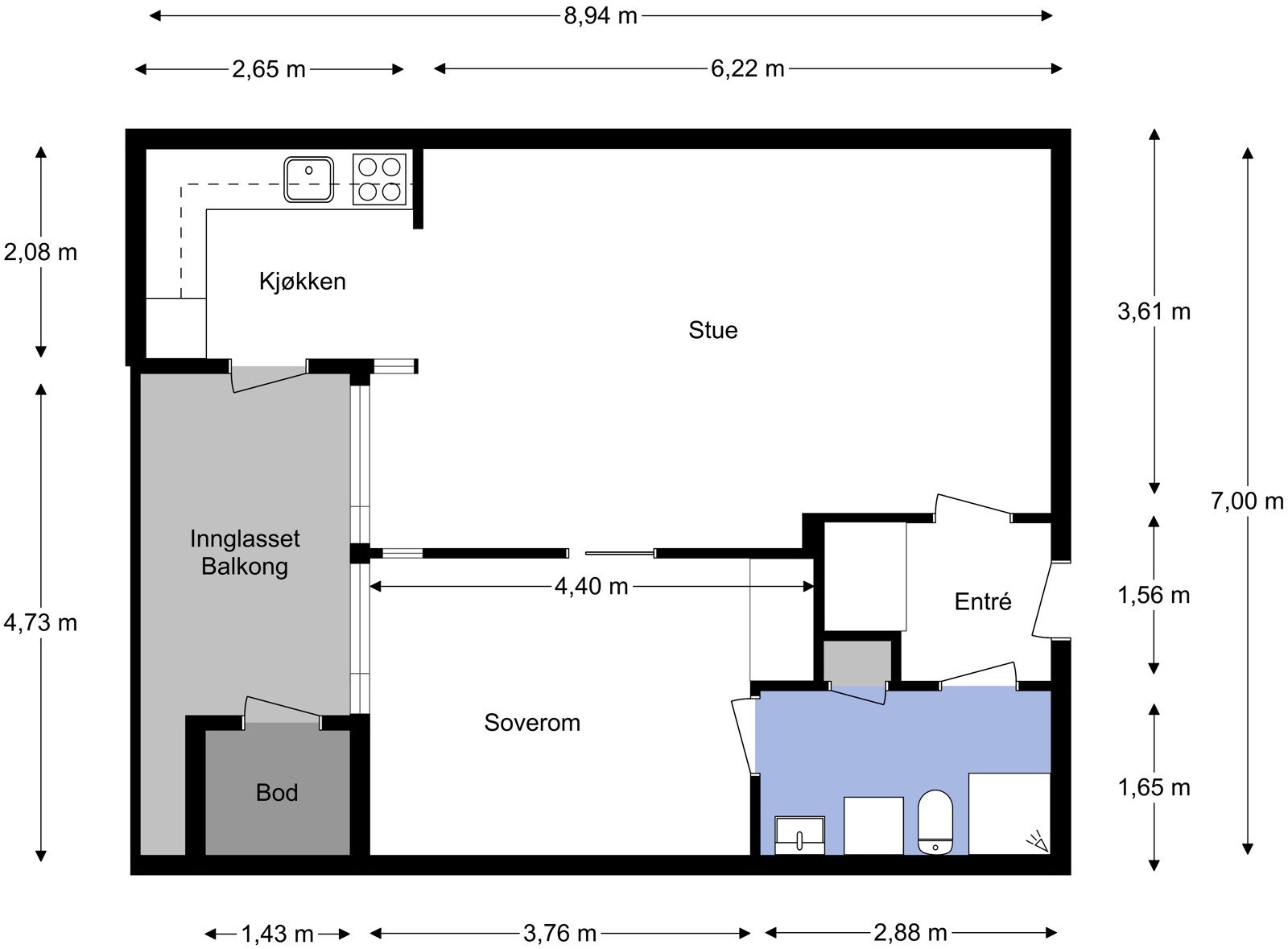
Pen 2R i attraktivt område - god standard, moderniseringspotensiale på bad m/tilskudd. Innglasset balkong, garasje, heis
Nøkkelinfo
- Boligtype
- Leilighet
- Eieform
- Andel
- Soverom
- 1
- Internt bruksareal
- 54 m² (BRA-i)
- Bruksareal
- 66 m²
- Eksternt bruksareal
- 2 m² (BRA-e)
- Innglasset balkong
- 10 m² (BRA-b)
- Etasje
- 3
- Byggeår
- 1976
- Energimerking
- D - Rød
- Rom
- 2
- Tomt
- Eiet
Fasiliteter
Om boligen
Mads Bekk Rustad v/ OBOS Eiendomsmeglere ønsker velkommen til Åsengata 8A, en pen og attraktiv 2-roms leilighet beliggende i 3. etasje i et ettertraktet nabolag. Leiligheten har en god planløsning og praktiske innvendige løsninger. Innglasset balkong med hyggelig utsyn og bod. Baderommet er stort og har et moderniseringsbehov, og det er mulighet for å få et tilskudd fra borettslaget for oppussing av baderommet. Boligen har enkel adkomst med heis og søppelsjakt rett utenfor entré.
Kort oppsummert:
- Tilskudd på oppussing av bad
- God planløsning
- To boder
- Garasjeplass medfølger
- Innglasset balkong
- Vinduer og balkongdør fra 2019
- Søppelsjakt i bygget
- Heis
- Lave omkostninger (ingen dok. avgift)
- Ettertraktet område
- Rolig nabolag, lite gjennomfartstrafikk
Velkommen til visning!
Salgsoppgaven beskriver vesentlig og lovpålagt informasjon om eiendommen
Se komplett salgsoppgaveNyttige lenker
Nærområdet
OBOS eiendomsmeglere - Ensjø
Annonseinformasjon
| FINN-kode | 445225960 |
|---|---|
| Sist endret | 28. jan. 2026 12:33 |
| Referanse | 718250086 |
Annonsene kan være mangelfulle i forhold til lovpålagt opplysningsplikt. Før bindende avtale inngås oppfordres interessenter til å innhente komplett informasjon fra meglerforetaket, selger eller utleier.

























