Bildegalleri

Velkommen til Finn Thorsagers vei 1 v/Håkon Sæther i PrivatMegleren Bærum
FORNEBU / OKSENØYA
Moderne 4-roms endeleilighet på Oksenøya - Tilbaketrukket beliggenhet med nærhet til sjø og natur - Garasje m/lader
Prisantydning12 950 000 kr
Nøkkelinfo
- Boligtype
- Leilighet
- Eieform
- Eier (Selveier)
- Soverom
- 3
- Internt bruksareal
- 109 m² (BRA-i)
- Bruksareal
- 114 m²
- Eksternt bruksareal
- 5 m² (BRA-e)
- Balkong/Terrasse
- 15 m² (TBA)
- Etasje
- 2
- Byggeår
- 2019
- Energimerking
- B - Mørkegrønn
- Tomteareal
- 6 900 m² (eiet)
Fasiliteter
Barnevennlig
Balkong/Terrasse
Garasje/P-plass
Kabel-TV
Heis
Offentlig vann/kloakk
Parkett
Vaktmester-/vektertjeneste
Sentralt
Bredbåndstilknytning
Moderne
Rolig
Balansert ventilasjon
Om boligen
Lys og moderne 4-roms leilighet på Oksenøya, et naturskjønt område på Fornebu. Leiligheten ligger tilbaketrukket i et urbant og moderne boligstrøk, med kort vei til sjø, kyststi, parker og friluftsliv - perfekt for deg som ønsker en aktiv livsstil med naturen som nærmeste nabo.
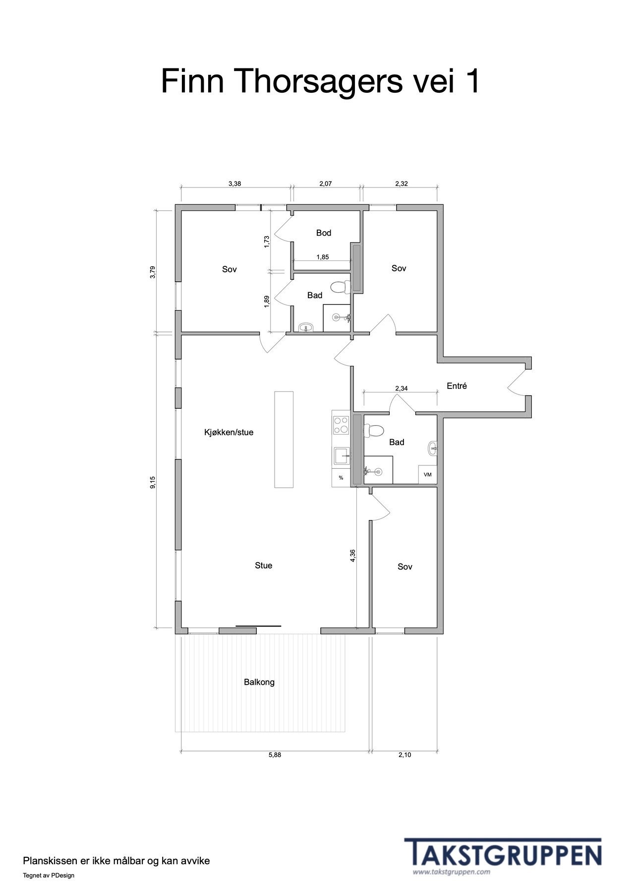
Leiligheten ligger i 2. etasje og har en åpen planløsning med stue og kjøkken, to bad, tre soverom og innvendig bod. I tillegg følger bod i kjeller og garasjeplass med lader og dekkstativ. Her får du gode solforhold, store vindusflater og en gjennomtenkt planløsning med romslige og lyse oppholdsrom.
Oksenøya og Fornebu byr på flotte friluftsområder, 7 km strandlinje, Nansenparken, naturreservater og kilometerlange sykkel- og gangstier. Her finnes alt fra kafé, bibliotek og galleri i gamle flytårnet, til barnehager, skoler og treningsfasiliteter i nærheten. Kort vei til dagligvarebutikker og Fornebu S, samt enkel tilgang til kollektivtransport med hyppige bussavganger til Oslo og Sandvika.
Leiligheten ligger i 2. etasje og har en åpen planløsning med stue og kjøkken, to bad, tre soverom og innvendig bod. I tillegg følger bod i kjeller og garasjeplass med lader og dekkstativ. Her får du gode solforhold, store vindusflater og en gjennomtenkt planløsning med romslige og lyse oppholdsrom.
Oksenøya og Fornebu byr på flotte friluftsområder, 7 km strandlinje, Nansenparken, naturreservater og kilometerlange sykkel- og gangstier. Her finnes alt fra kafé, bibliotek og galleri i gamle flytårnet, til barnehager, skoler og treningsfasiliteter i nærheten. Kort vei til dagligvarebutikker og Fornebu S, samt enkel tilgang til kollektivtransport med hyppige bussavganger til Oslo og Sandvika.
NB: Knappen for å vise hele beskrivelsen har kun en visuell effekt.
NB: Knappen for å vise hele beskrivelsen har kun en visuell effekt.
Salgsoppgaven beskriver vesentlig og lovpålagt informasjon om eiendommen
Se komplett salgsoppgaveNyttige lenker
Nærområdet
PrivatMegleren Bærum
Kun det beste på dine vegne
Annonsene kan være mangelfulle i forhold til lovpålagt opplysningsplikt. Før bindende avtale inngås oppfordres interessenter til å innhente komplett informasjon fra meglerforetaket, selger eller utleier.




































