Bildegalleri

DNB Eiendom ved Johanna Wenngren har gleden av å ønske deg velkommen til Brådalsfjellet 68A - en gjennomført og tiltalende 1/2-part med attraktiv beliggenhet på toppen av Brådalsfjellet. Dette er en bolig som virkelig bør oppleves. Velkommen!
Nydelig 1/2-part på toppen av Brådalsfjellet | Inngang til Romeriksåsen fra egen terrasse | Utsikt | Carport | Peis |
Prisantydning6 990 000 kr
Nøkkelinfo
- Boligtype
- Tomannsbolig
- Eieform
- Eier (Selveier)
- Soverom
- 3
- Internt bruksareal
- 143 m² (BRA-i)
- Bruksareal
- 152 m²
- Eksternt bruksareal
- 9 m² (BRA-e)
- Balkong/Terrasse
- 75 m² (TBA)
- Etasje
- 3
- Byggeår
- 2017
- Energimerking
- B - Gul
- Rom
- 5
- Tomteareal
- 231 m² (eiet)
Fasiliteter
Aircondition
Balkong/Terrasse
Barnevennlig
Bredbåndstilknytning
Garasje/P-plass
Offentlig vann/kloakk
Parkett
Peis/Ildsted
Rolig
Utsikt
Turterreng
Lademulighet
Balansert ventilasjon
Visning
søndag, 18. januar
13:30 – 14:30
Velkommen til visning! Meld deg på ved å trykke "visningspåmelding" i våre boligannonser. Visning med megler til stede vil ikke bli avholdt uten påmeldinger. Ta gjerne kontakt med megler i forkant av visningen om du har spørsmål.
VisningspåmeldingOm boligen
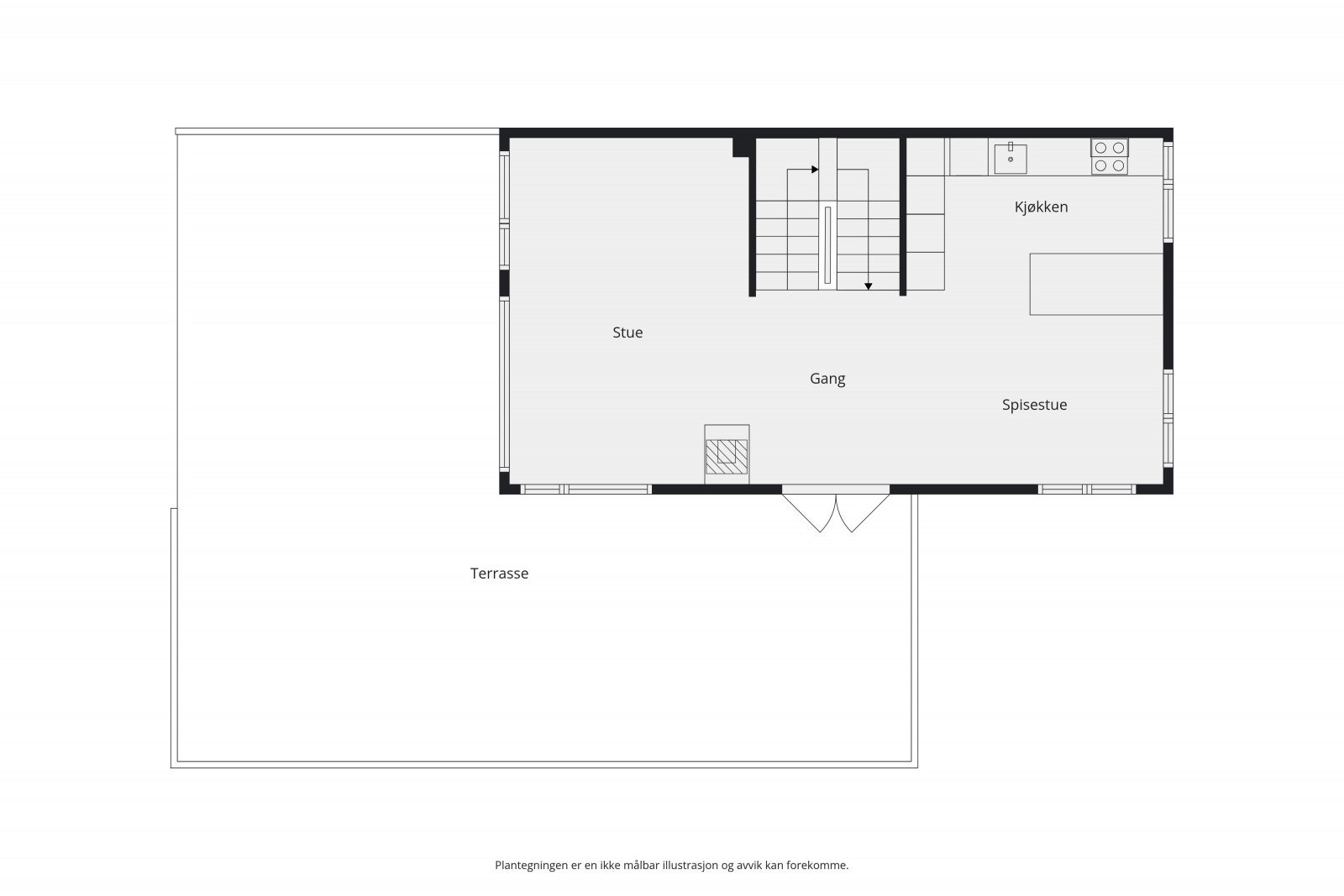
Velkommen til Brådalsfjellet 68A en moderne og stilren halvpart av tomannsbolig fra 2017, idyllisk beliggende helt øverst på Brådalsfjellet. Her bor du skjermet og naturnært med marka som nærmeste nabo, og kan nyte en lun og solrik terrasse med gode solforhold.
Boligen er tegnet av Erik Ask og oppført av Naturbygg som et gjennomtenkt miljøhus. Utvendig trekledning i gran er behandlet med jernvitrol tilsatt pigmenter, noe som gir minimalt vedlikehold. Boligen er isolert med celluloseisolasjon som bidrar til et godt inneklima. Det er installert solceller som i 2025 produserte ca. 6 300 kWh.
Eiendommen er en ypperlig familiebolig med god planløsning over tre plan, ekstra lagringsplass i utvendig bod under terrassen og praktisk trapp ned til innkjørselen. Parkering i carport med elbillader
Boligen er tegnet av Erik Ask og oppført av Naturbygg som et gjennomtenkt miljøhus. Utvendig trekledning i gran er behandlet med jernvitrol tilsatt pigmenter, noe som gir minimalt vedlikehold. Boligen er isolert med celluloseisolasjon som bidrar til et godt inneklima. Det er installert solceller som i 2025 produserte ca. 6 300 kWh.
Eiendommen er en ypperlig familiebolig med god planløsning over tre plan, ekstra lagringsplass i utvendig bod under terrassen og praktisk trapp ned til innkjørselen. Parkering i carport med elbillader
NB: Knappen for å vise hele beskrivelsen har kun en visuell effekt.
NB: Knappen for å vise hele beskrivelsen har kun en visuell effekt.
Salgsoppgaven beskriver vesentlig og lovpålagt informasjon om eiendommen
Se komplett salgsoppgaveNyttige lenker
Nærområdet
DNB Eiendom AS
Fra hjem til hjem
Annonseinformasjon
| FINN-kode | 445199674 |
|---|---|
| Sist endret | 09. jan. 2026 09:36 |
| Referanse | 302250358 |
Annonsene kan være mangelfulle i forhold til lovpålagt opplysningsplikt. Før bindende avtale inngås oppfordres interessenter til å innhente komplett informasjon fra meglerforetaket, selger eller utleier.




























































