Bildegalleri

Velkommen til Beintegata 25!
Haukerød
Stilren og romslig kjedet bolig i barnevennlig boligområde - 2 Bad - 3 Soverom - Usjenert og solrik uteplass - Garasje
Prisantydning5 350 000 kr
Nøkkelinfo
- Boligtype
- Enebolig
- Eieform
- Eier (Selveier)
- Soverom
- 3
- Internt bruksareal
- 162 m² (BRA-i)
- Bruksareal
- 190 m²
- Eksternt bruksareal
- 28 m² (BRA-e)
- Balkong/Terrasse
- 72 m² (TBA)
- Byggeår
- 2008
- Energimerking
- D - Rød
- Rom
- 5
- Tomteareal
- 882 m² (eiet)
Fasiliteter
Balkong/Terrasse
Barnevennlig
Bredbåndstilknytning
Rolig
Visning
onsdag, 21. januar
18:00 – 19:00
For å delta på visning, ber vi om at du melder deg på. Da sikrer vi at du får nødvendig informasjon og at det er satt av tilstrekkelig med tid. Kontakt megler dersom annet tidspunkt ønskes. Husk å lese salgsoppgaven før visningen, så du stiller forberedt. NB. Visning utgår dersom det ikke er noen påmeldte.
Ønsker du kun å bli holdt orientert, kan du fra eiendommens hjemmeside få varsel om solgtpris, eller kontakte megler.
VisningspåmeldingOm boligen
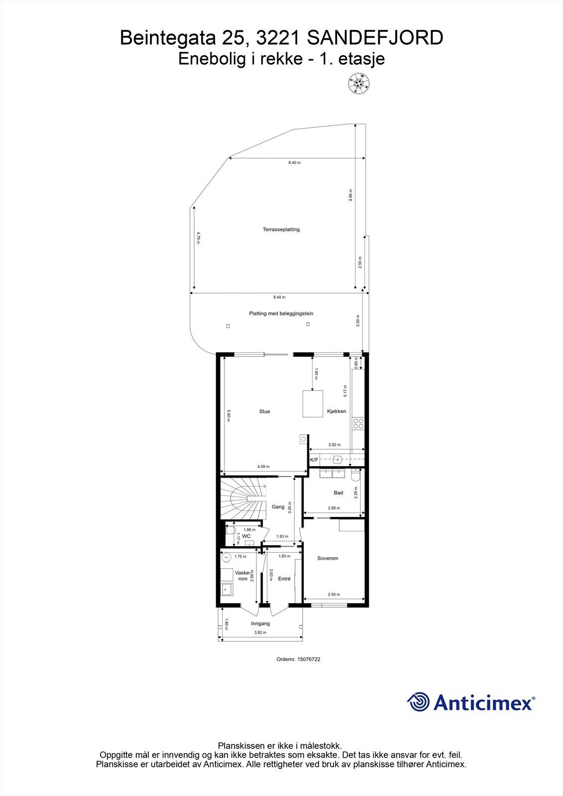
Flytt rett inn i moderne og innbydende kjedet enebolig fra 2008! Beintegata 25 byr på en gjennomført kombinasjon av stil, komfort og smarte løsninger et hjem som passer perfekt for den moderne barnefamilien.
Hovedetasjen ønsker deg velkommen med en lys og romslig stue med store vindusflater fra gulv til tak, som slipper inn rikelig med dagslys. Det lekre kjøkkenet har integrerte hvitevarer og gode arbeidsflater. Her finner du også hovedsoverom med eget delikat flislagt bad. Separat vaskerom og gjestetoalett.
I andre etasje er det to soverom, en hyggelig tv-stue (evt. ekstra soverom) med utgang til balkong samt et stilrent bad.
Attraktiv beliggenhet med kort vei til skole, barnehage, idrettsanlegg, skiløyper og butikk.
En innflytningsklar bolig som må oppleves velkommen til visning.
Hovedetasjen ønsker deg velkommen med en lys og romslig stue med store vindusflater fra gulv til tak, som slipper inn rikelig med dagslys. Det lekre kjøkkenet har integrerte hvitevarer og gode arbeidsflater. Her finner du også hovedsoverom med eget delikat flislagt bad. Separat vaskerom og gjestetoalett.
I andre etasje er det to soverom, en hyggelig tv-stue (evt. ekstra soverom) med utgang til balkong samt et stilrent bad.
Attraktiv beliggenhet med kort vei til skole, barnehage, idrettsanlegg, skiløyper og butikk.
En innflytningsklar bolig som må oppleves velkommen til visning.
NB: Knappen for å vise hele beskrivelsen har kun en visuell effekt.
NB: Knappen for å vise hele beskrivelsen har kun en visuell effekt.
Salgsoppgaven beskriver vesentlig og lovpålagt informasjon om eiendommen
Se komplett salgsoppgaveNyttige lenker
Nærområdet
Krogsveen Sandefjord
Verdien av en god megler.
Annonseinformasjon
| FINN-kode | 445153233 |
|---|---|
| Sist endret | 15. jan. 2026 14:43 |
| Referanse | KR22.25426 |
Annonsene kan være mangelfulle i forhold til lovpålagt opplysningsplikt. Før bindende avtale inngås oppfordres interessenter til å innhente komplett informasjon fra meglerforetaket, selger eller utleier.























































