Bildegalleri

Velkommen til Bråteveien 3A - en flott enebolig over to plan og en romslig, skjermet tomt!
Hemnes
Velholdt og koselig enebolig over 2 plan | Garasje | Stor og solrik tomt | Kort vei til barnehage og skole
Prisantydning3 190 000 kr
Nøkkelinfo
- Boligtype
- Enebolig
- Eieform
- Eier (Selveier)
- Soverom
- 3
- Internt bruksareal
- 181 m² (BRA-i)
- Bruksareal
- 211 m²
- Eksternt bruksareal
- 30 m² (BRA-e)
- Balkong/Terrasse
- 36 m² (TBA)
- Byggeår
- 1989
- Energimerking
- D - Lysegrønn
- Rom
- 5
- Tomteareal
- 750 m² (eiet)
Fasiliteter
Balkong/Terrasse
Barnevennlig
Garasje/P-plass
Hage
Kjæledyr tillatt
Offentlig vann/kloakk
Peis/Ildsted
Rolig
Turterreng
Visning
søndag, 18. januar
13:30 – 14:30
Velkommen til visning! Meld deg på ved å trykke "visningspåmelding" i våre boligannonser. Ta gjerne kontakt med megler i forkant av visningen om du har spørsmål.
VisningspåmeldingOm boligen
Velkommen til denne flotte eneboligen med integrert garasje, beliggende sentralt på Hemnes. Området byr på gode solforhold og et trygt nabolag. Her finner du barnehager, skole med 10 trinn, idrettsanlegg og flerbrukshall. Hemnes har et variert utvalg av butikker og servicetilbud, samt gode turmuligheter i nærliggende områder.
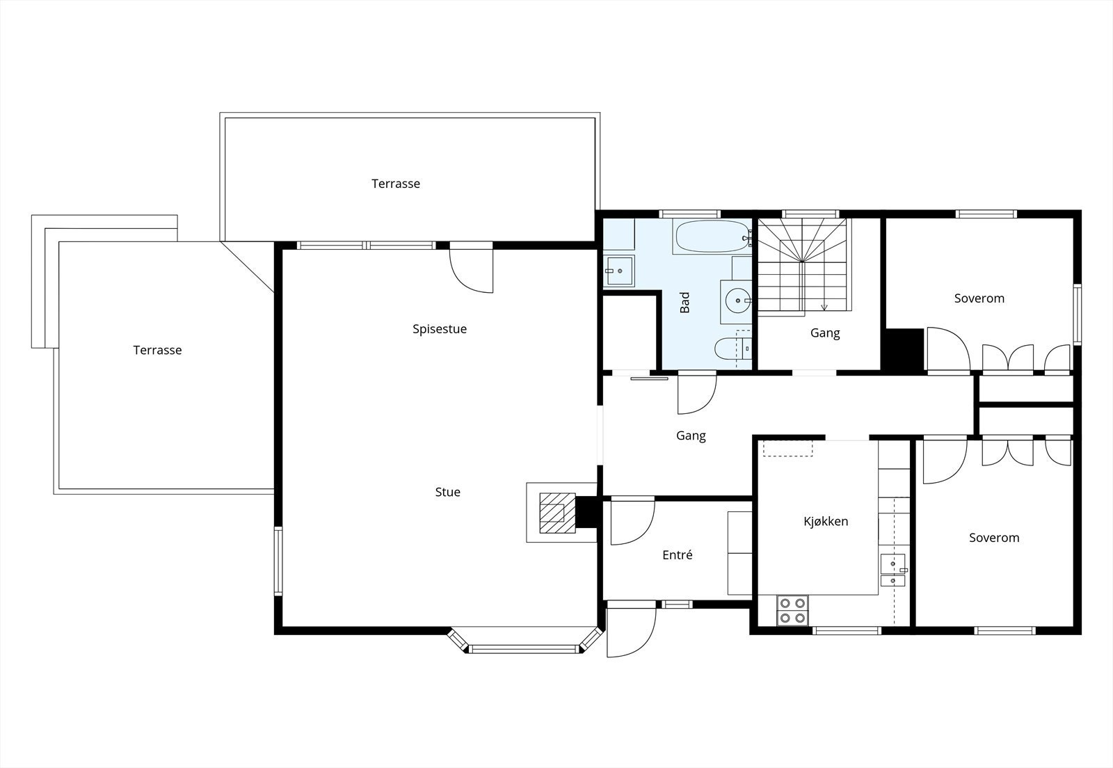
Eneboligen ble oppført i 1989 og har et bruksareal på 211 m². Den har en praktisk planløsning med entré, gang, trapperom, bad/wc/vaskerom, kjøkken, tre soverom, to stuer, kjølerom og toalettrom. Boligen har vedfyring med peisovn, luft til luft varmepumpe.
Fra stuen er det utgang til en herlig terrasse med utekjøkken.
Boligen har to kjellerboder og en integrert garasje.
Denne boligen er perfekt for en familie som vil bo trygt og trivelig - velkommen til visning!
Eneboligen ble oppført i 1989 og har et bruksareal på 211 m². Den har en praktisk planløsning med entré, gang, trapperom, bad/wc/vaskerom, kjøkken, tre soverom, to stuer, kjølerom og toalettrom. Boligen har vedfyring med peisovn, luft til luft varmepumpe.
Fra stuen er det utgang til en herlig terrasse med utekjøkken.
Boligen har to kjellerboder og en integrert garasje.
Denne boligen er perfekt for en familie som vil bo trygt og trivelig - velkommen til visning!
NB: Knappen for å vise hele beskrivelsen har kun en visuell effekt.
NB: Knappen for å vise hele beskrivelsen har kun en visuell effekt.
Salgsoppgaven beskriver vesentlig og lovpålagt informasjon om eiendommen
Se komplett salgsoppgaveNyttige lenker
Nærområdet
DNB Eiendom AS
Fra hjem til hjem
Annonseinformasjon
| FINN-kode | 445092892 |
|---|---|
| Sist endret | 12. jan. 2026 11:43 |
| Referanse | 303250415 |
Annonsene kan være mangelfulle i forhold til lovpålagt opplysningsplikt. Før bindende avtale inngås oppfordres interessenter til å innhente komplett informasjon fra meglerforetaket, selger eller utleier.















































