Bildegalleri

Velkommen til Vibes gate 2 - Presentert av Jørgen Ek v/PrivatMegleren Dyve & Partnere
Gjennomgående & klassisk bygårdsleilighet | Stukkatur & rosett | Mot blindgate | Balkongprosjekt | Peis | Parkering*
Nøkkelinfo
- Boligtype
- Leilighet
- Eieform
- Andel
- Soverom
- 2
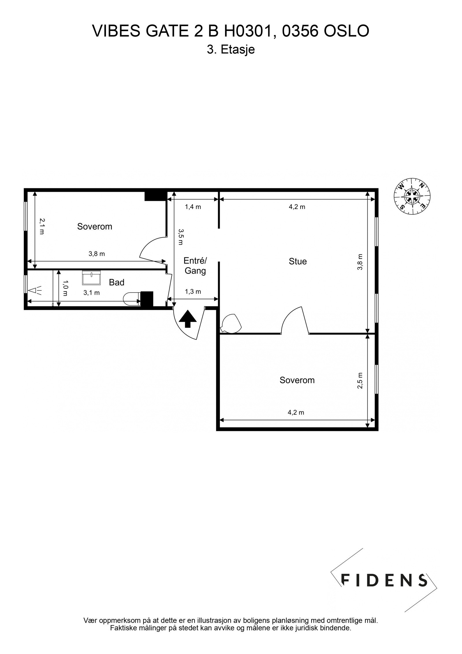
- Internt bruksareal
- 48 m² (BRA-i)
- Bruksareal
- 48 m²
- Etasje
- 3
- Byggeår
- 1892
- Energimerking
- G - Rød
- Rom
- 3
- Tomteareal
- 500 m² (eiet)
Fasiliteter
Visning
Om boligen
Velkommen til Vibes gate 2 - Presentert av Jørgen Ek v/PrivatMegleren Dyve & Partnere. Her har vi gleden av å presentere en klassisk og gjennomgående bygårdsleilighet med sentral beliggenhet på majorstuen. Leiligheten byr på en god planløsning med stort oppholdsrom og soverom. Leiligheten har flere tidstypiske detaljer som stukkatur, takrosett og brede vinduskarmer, noe som understreker bygårdens klassiske karakter. Det er godkjent balkongprosjekt i gården, som gir mulighet for å etablere egen balkong vendt mot rolig bakgård. Beliggenheten på Majorstuen gir nærhet til et bredt utvalg av butikker, kaféer, restauranter og gode kollektivforbindelser.
Høydepunkter:
- Mulighet for parkeringsplas
- Stukkatur og takrosett
- Godkjent balkongprosjekt mot bakgård
- Gjennomgående planløsnin
- Peis
Salgsoppgaven beskriver vesentlig og lovpålagt informasjon om eiendommen
Se komplett salgsoppgaveNyttige lenker
Nærområdet

PrivatMegleren Dyve & Partnere
Elise Høiberg Lien
Annonseinformasjon
| FINN-kode | 445017530 |
|---|---|
| Sist endret | 10. jan. 2026 03:08 |
| Referanse | 159250692 |
Annonsene kan være mangelfulle i forhold til lovpålagt opplysningsplikt. Før bindende avtale inngås oppfordres interessenter til å innhente komplett informasjon fra meglerforetaket, selger eller utleier.























