Bildegalleri

Velkommen til en attraktiv og helt ny enebolig i rolige omgivelser i blindvei på Holmen
HOLMEN / GRESSBANEN
NYHET! Ny enebolig med høy teknisk standard. Solrike uteplasser, rolig i blindvei. Kjeller m/egen inngang. Garasje.
Prisantydning20 900 000 kr
Nøkkelinfo
- Boligtype
- Enebolig
- Eieform
- Eier (Selveier)
- Soverom
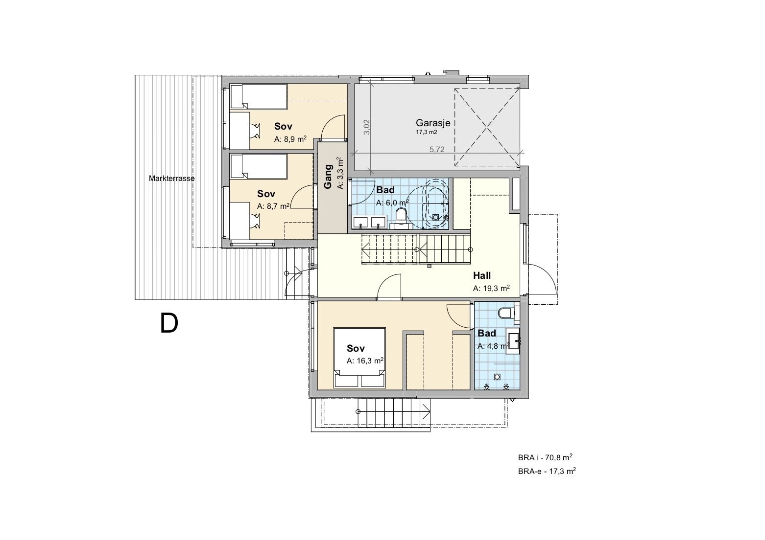
- 4
- Internt bruksareal
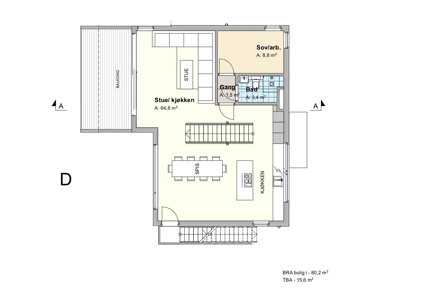
- 237 m² (BRA-i)
- Bruksareal
- 256 m²
- Eksternt bruksareal
- 19 m² (BRA-e)
- Balkong/Terrasse
- 101 m² (TBA)
- Byggeår
- 2025
- Energimerking
- A - Gul
- Tomteareal
- 2 385 m² (eiet)
Fasiliteter
Takterrasse
Balkong/Terrasse
Barnevennlig
Bredbåndstilknytning
Garasje/P-plass
Hage
Kabel-TV
Offentlig vann/kloakk
Parkett
Rolig
Sentralt
Utsikt
Turterreng
Lademulighet
Balansert ventilasjon
Visning
søndag, 11. januar
14:30 – 15:30
mandag, 12. januar
18:15 – 19:00
Visningen har obligatorisk påmelding.
Kravet om påmelding har vi for å kunne gi deg og andre visningsdeltakere en best mulig opplevelse og service knyttet til gjennomføring av visningen. Velkommen!
VisningspåmeldingOm boligen
Lekker, stor og helt ny enebolig med rolig beliggenhet innerst i blindvei på Holmen. Høy standard med betydelig påkostet tilvalgspakke.
- Svært attraktiv, skjermet beliggenhet innerst i blindvei
- Solrike uteplasser: Markterrasse, stor sydvendt balkong 16 kvm og takterrasse 64 m²
- Totalt 4 soverom, master med walk-in mulighet og eget bad
- Totalt 4 bad +vaskerom
- Tilrettelagt for hybel
- Garasje
- Balansert ventilasjon m/varmegjenvinning
- Vannbåren varme i alle gulv, bergvarme med varmepumpeløsning vann til vann fra Vaillant
- Påkostet tilvalg kjøkken, el, materialer mv.
- Lav dokumentavgift, kun tomteverdi
- Høy trygghet ved kjøp av ny bolig. Selger stiller garanti som varer i 5 år
- Energimerking A gir grønt boliglån
- Sogner til Holmen barneskole, flere barnehager i omr.
- Svært attraktiv, skjermet beliggenhet innerst i blindvei
- Solrike uteplasser: Markterrasse, stor sydvendt balkong 16 kvm og takterrasse 64 m²
- Totalt 4 soverom, master med walk-in mulighet og eget bad
- Totalt 4 bad +vaskerom
- Tilrettelagt for hybel
- Garasje
- Balansert ventilasjon m/varmegjenvinning
- Vannbåren varme i alle gulv, bergvarme med varmepumpeløsning vann til vann fra Vaillant
- Påkostet tilvalg kjøkken, el, materialer mv.
- Lav dokumentavgift, kun tomteverdi
- Høy trygghet ved kjøp av ny bolig. Selger stiller garanti som varer i 5 år
- Energimerking A gir grønt boliglån
- Sogner til Holmen barneskole, flere barnehager i omr.
NB: Knappen for å vise hele beskrivelsen har kun en visuell effekt.
NB: Knappen for å vise hele beskrivelsen har kun en visuell effekt.
Salgsoppgaven beskriver vesentlig og lovpålagt informasjon om eiendommen
Se komplett salgsoppgaveNærområdet
Sem & Johnsen
Boliger utenom det vanlige
Annonseinformasjon
| FINN-kode | 444986745 |
|---|---|
| Sist endret | 08. jan. 2026 16:31 |
| Referanse | 20-25-0234 |
Annonsene kan være mangelfulle i forhold til lovpålagt opplysningsplikt. Før bindende avtale inngås oppfordres interessenter til å innhente komplett informasjon fra meglerforetaket, selger eller utleier.






















































