Bildegalleri

Velkommen til Sinsenveien 51A presentert av Lina Møretrø v/ EiendomsMegler 1. Foto: André Aakermann
LØREN | BORGEN
Rålekker ende- og utsiktsleilighet med 12 kvm vestvendt balkong! | Bygg fra 2024 | Heis | Garasjeplass m/EL mulighet
Prisantydning8 590 000 kr
Nøkkelinfo
- Boligtype
- Leilighet
- Eieform
- Eier (Selveier)
- Soverom
- 2
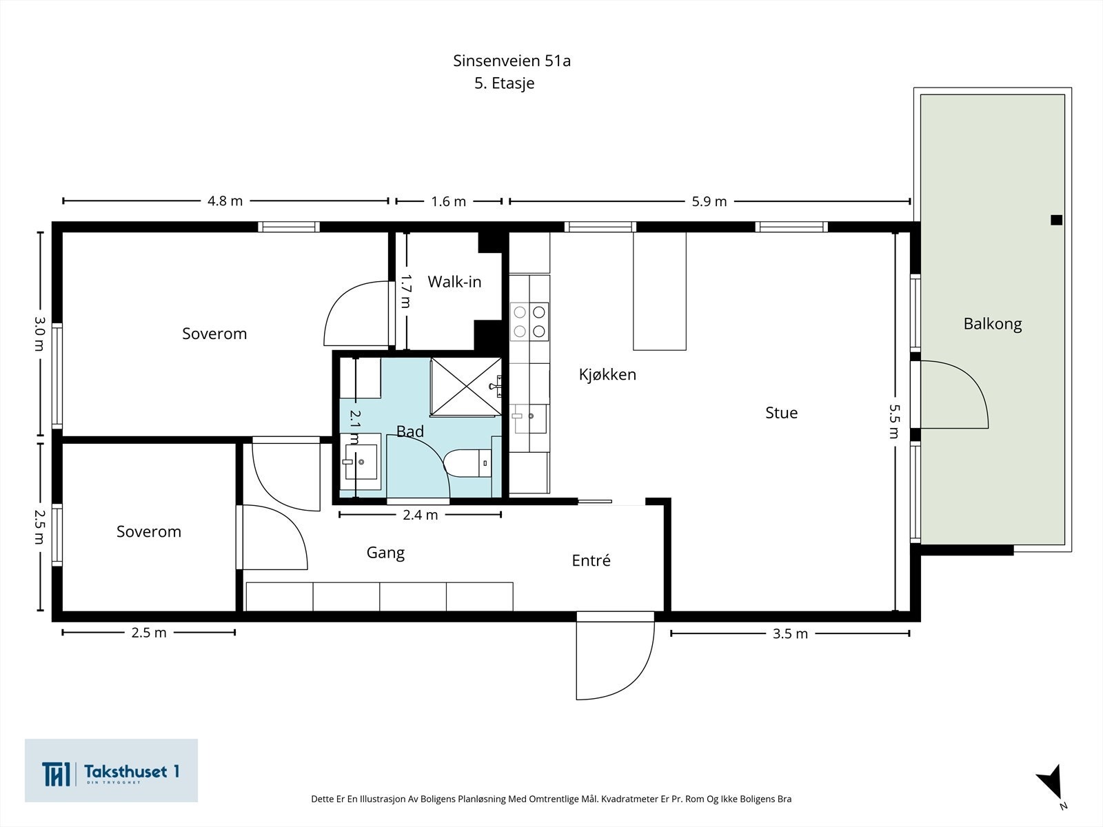
- Internt bruksareal
- 71 m² (BRA-i)
- Bruksareal
- 76 m²
- Eksternt bruksareal
- 5 m² (BRA-e)
- Balkong/Terrasse
- 12 m² (TBA)
- Etasje
- 5
- Byggeår
- 2024
- Energimerking
- B - Mørkegrønn
- Rom
- 3
- Tomteareal
- 975 m² (eiet)
Fasiliteter
Takterrasse
Balkong/Terrasse
Barnevennlig
Bredbåndstilknytning
Garasje/P-plass
Heis
Kjæledyr tillatt
Kabel-TV
Offentlig vann/kloakk
Parkett
Sentralt
Utsikt
Vaktmester-/vektertjeneste
Lademulighet
Balansert ventilasjon
Visning
søndag, 18. januar
14:30 – 15:15
mandag, 19. januar
17:00 – 17:45
Ønsker du å delta på visningen ber vi deg melde deg på slik at vi vet at du kommer. Hvis visningstidspunkt ikke passer, kontakt megler. Ønsker du bare følge budvarsel kan du benytte knappen "meld interesse" på eiendommens hjemmeside.
VisningspåmeldingOm boligen
Nå har du mulighet til å kapre en svært sjelden 3-roms endeleilighet i 5.etg. Her får du vinduer på hele 3 sider og spektakulær utsikt over Oslo med både fjorden og Holmenkollen. Leiligheten har 2 soverom mot bakhage, lekkert flislagt bad, innvendig bod og svært godt med lagring i plassbygde skap. Garasjeplass med mulighet for å installere elbil lader følger også.
Verdt å nevne:
- Lekkert kjøkken med øy, tilvalg og integrerte hvitevarer
- 1-stavs eikeparkett med vannbåren gulvvarme
- 2 soverom mot bilfri bakhage
- Garasjeplass
- Heis
- Ekstern bod i 1.etg 5 kvm
- Felles takterrasse
- Balansert ventilasjon med varmegjenvinning
- TEK 17 og BREEAM-miljøsertifisering
- Nybyggaranti frem til 21.11.29
- Nærhet til kollektivt
Denne leiligheten burde oppleves! Velkommen til visning.
Verdt å nevne:
- Lekkert kjøkken med øy, tilvalg og integrerte hvitevarer
- 1-stavs eikeparkett med vannbåren gulvvarme
- 2 soverom mot bilfri bakhage
- Garasjeplass
- Heis
- Ekstern bod i 1.etg 5 kvm
- Felles takterrasse
- Balansert ventilasjon med varmegjenvinning
- TEK 17 og BREEAM-miljøsertifisering
- Nybyggaranti frem til 21.11.29
- Nærhet til kollektivt
Denne leiligheten burde oppleves! Velkommen til visning.
NB: Knappen for å vise hele beskrivelsen har kun en visuell effekt.
NB: Knappen for å vise hele beskrivelsen har kun en visuell effekt.
Salgsoppgaven beskriver vesentlig og lovpålagt informasjon om eiendommen
Se komplett salgsoppgaveNyttige lenker
Nærområdet
EiendomsMegler 1 Sør-Norge avd Oslo
En del av Sparebank 1 Sør-Norge
Annonseinformasjon
| FINN-kode | 444956902 |
|---|---|
| Sist endret | 12. jan. 2026 19:23 |
| Referanse | 2801250073 |
Annonsene kan være mangelfulle i forhold til lovpålagt opplysningsplikt. Før bindende avtale inngås oppfordres interessenter til å innhente komplett informasjon fra meglerforetaket, selger eller utleier.






































