Bildegalleri

Velkommen til Mosvevegen 14F! Foto: Lars Marius Bækkevold.
Lillehammer
Praktisk 2-roms leilighet rett nord for sentrum. Garasjeplass, heis og bod. IN-ordning.
Prisantydning1 400 000 kr
Nøkkelinfo
- Boligtype
- Leilighet
- Eieform
- Andel
- Soverom
- 1
- Internt bruksareal
- 49 m² (BRA-i)
- Bruksareal
- 49 m²
- Balkong/Terrasse
- 10 m² (TBA)
- Etasje
- 2
- Byggeår
- 2005
- Energimerking
- D - Rød
- Rom
- 2
- Tomteareal
- 6 381 m² (eiet)
Fasiliteter
Balkong/Terrasse
Barnevennlig
Bredbåndstilknytning
Garasje/P-plass
Heis
Kjæledyr tillatt
Kabel-TV
Offentlig vann/kloakk
Parkett
Rolig
Sentralt
Utsikt
Turterreng
Visning
onsdag, 04. februar
16:00 – 17:00
Alle våre visninger har påmelding. På denne måten sikrer vi at megler har god oversikt og tid til å imøtekomme alle interessenter på beste måte. Det er enkelt å melde seg på, og du kan like enkelt melde deg av.
VisningspåmeldingOm boligen
EiendomsMegler1 Lillehammer presenterer Mosvevegen 14F!
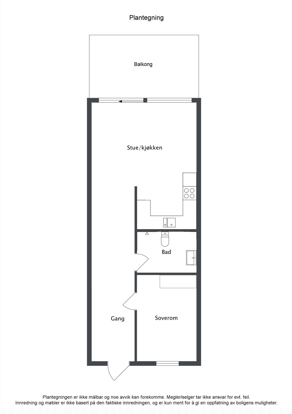
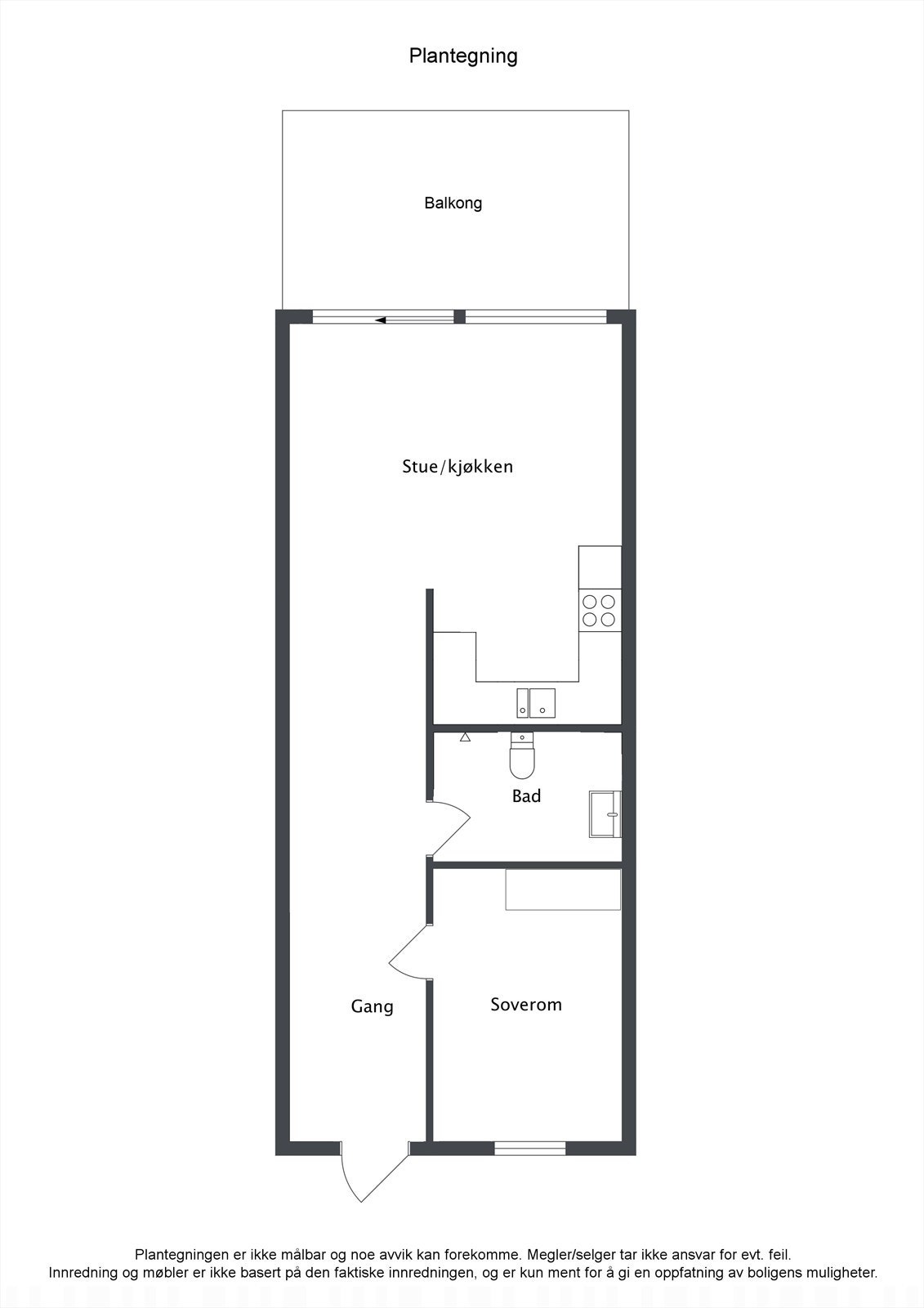
Leiligheten har en fin planløsning med romslig entré, stue og kjøkken i åpen løsning, romslig bad og ett soverom. Varme i alle gulv med unntak av soverom. Stua har god plass til ulike møbleringsalternativer. Kjøkkeninnredningen er i hestesko bestående av laminerte skrog og glatte fronter. Badet er flislagt på gulv og vegger. WC, dusj, baderomsinnredning og opplegg til vaskemaskin her inne. Fra stua er det utgang til romslig vestvendt og takoverbygd terrasse. Levegger mot naboene. Biloppstillingsplass i felles garasjekjeller og bod på ca. 4 m2. Borettslaget har dørcallingsystem, heis og egen lekeplass.
Beliggenheten er litt nord for sentrum med rimelig gangavstand til de fleste servicefunksjoner.
Velkommen til visning!
Leiligheten har en fin planløsning med romslig entré, stue og kjøkken i åpen løsning, romslig bad og ett soverom. Varme i alle gulv med unntak av soverom. Stua har god plass til ulike møbleringsalternativer. Kjøkkeninnredningen er i hestesko bestående av laminerte skrog og glatte fronter. Badet er flislagt på gulv og vegger. WC, dusj, baderomsinnredning og opplegg til vaskemaskin her inne. Fra stua er det utgang til romslig vestvendt og takoverbygd terrasse. Levegger mot naboene. Biloppstillingsplass i felles garasjekjeller og bod på ca. 4 m2. Borettslaget har dørcallingsystem, heis og egen lekeplass.
Beliggenheten er litt nord for sentrum med rimelig gangavstand til de fleste servicefunksjoner.
Velkommen til visning!
NB: Knappen for å vise hele beskrivelsen har kun en visuell effekt.
NB: Knappen for å vise hele beskrivelsen har kun en visuell effekt.
Salgsoppgaven beskriver vesentlig og lovpålagt informasjon om eiendommen
Se komplett salgsoppgaveNyttige lenker
Nærområdet
EiendomsMegler 1 Lillehammer og Gudbrandsdal - avd Lillehammer
Vi er der du er - EiendomsMegler 1
Annonseinformasjon
| FINN-kode | 444941461 |
|---|---|
| Sist endret | 20. jan. 2026 10:51 |
| Referanse | 1310250325 |
Annonsene kan være mangelfulle i forhold til lovpålagt opplysningsplikt. Før bindende avtale inngås oppfordres interessenter til å innhente komplett informasjon fra meglerforetaket, selger eller utleier.
























