Bildegalleri

Velkommen til Pilestredet Park 11C! Presentert av Halvor L. Heikkilä ved Krogsveen Majorstuen og Oslo Vest (Foto av Peter Futo - Kreativmangofoto.com)
Pilestredet Park
Lys & stor 3-roms over to plan i attraktive Pilestredet Park. Store vinduer. Heis. Fyring og vv ink. Felles takterrasser
Prisantydning6 800 000 kr
Nøkkelinfo
- Boligtype
- Leilighet
- Eieform
- Andel
- Soverom
- 2
- Internt bruksareal
- 100 m² (BRA-i)
- Bruksareal
- 106 m²
- Eksternt bruksareal
- 6 m² (BRA-e)
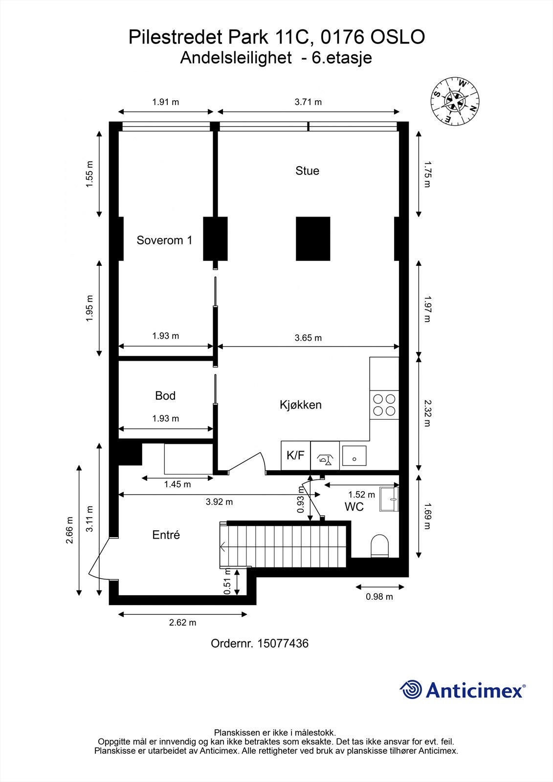
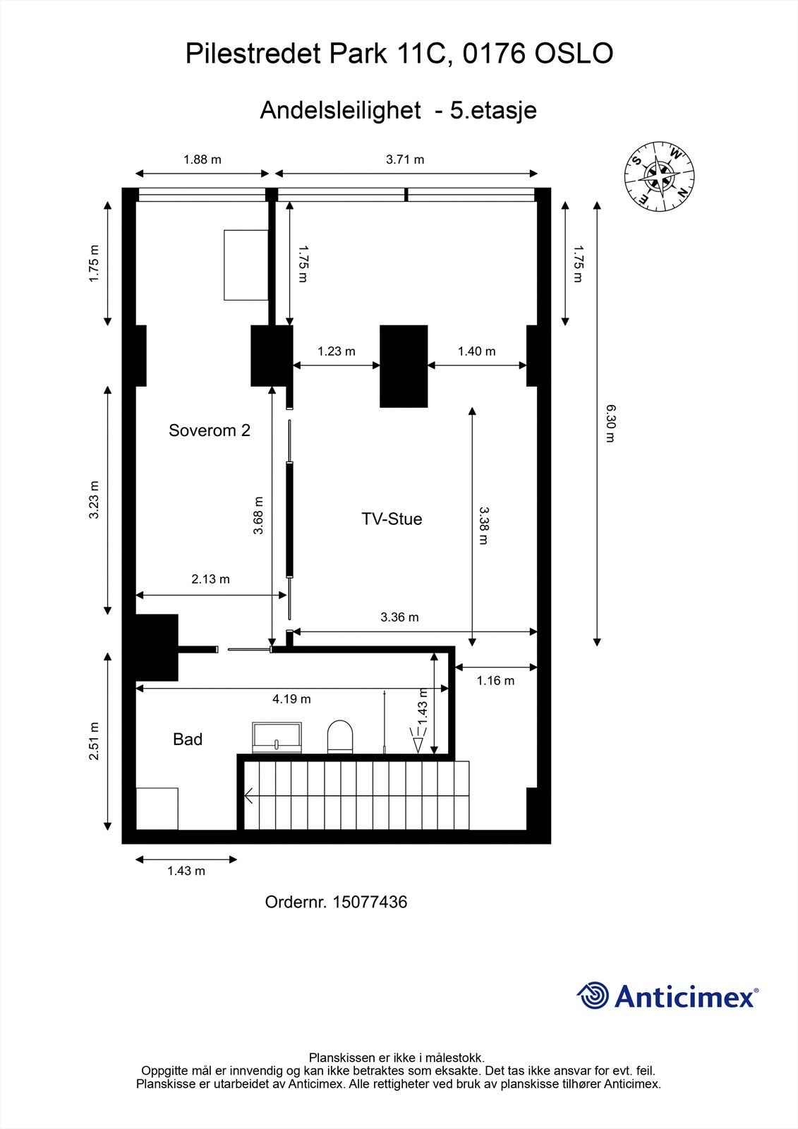
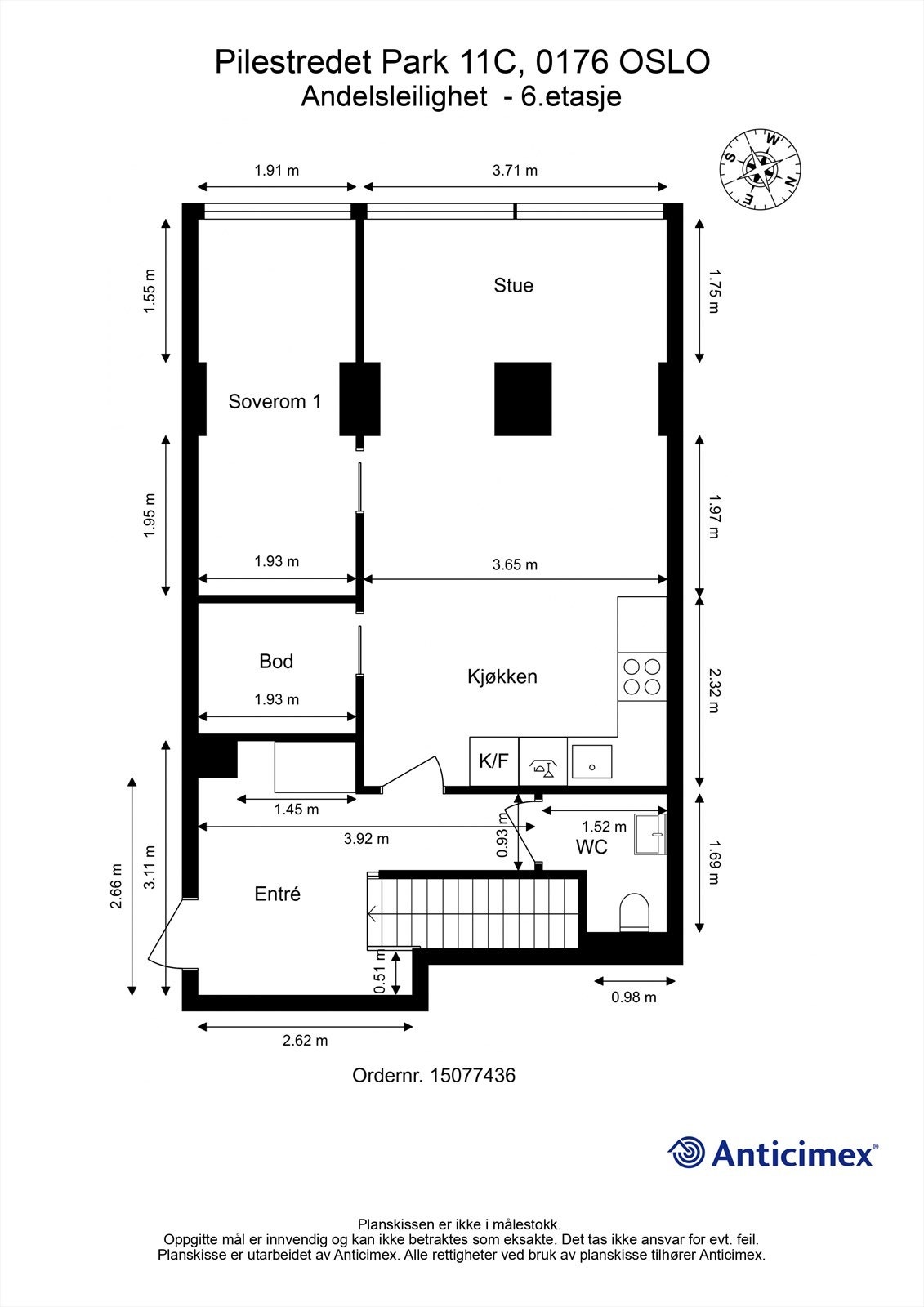
- Etasje
- 6
- Byggeår
- 1952
- Rom
- 3
- Tomteareal
- 3 577 m² (eiet)
Fasiliteter
Takterrasse
Barnevennlig
Bredbåndstilknytning
Heis
Kjæledyr tillatt
Kabel-TV
Offentlig vann/kloakk
Parkett
Peis/Ildsted
Rolig
Sentralt
Vaktmester-/vektertjeneste
Visning
søndag, 18. januar
14:00 – 14:45
mandag, 19. januar
17:15 – 18:00
For å delta på visning, ber vi om at du melder deg på. Da sikrer vi at du får nødvendig informasjon og at det er satt av tilstrekkelig med tid. Kontakt megler dersom annet tidspunkt ønskes. Husk å lese salgsoppgaven før visningen, så du stiller forberedt.
Ønsker du kun å bli holdt orientert, kan du fra eiendommens hjemmeside få varsel om solgtpris, eller kontakte megler.
VisningspåmeldingOm boligen
Velkommen til Pilestredet Park 11 C! Presentert av Halvor L. Heikkilä ved Krogsveen Oslo Vest. En moderne og stor 3-roms over to plan beliggende i et populært boligområde i Pilestredet Park. Leiligheten går over to plan i byggets 5. og 6. etg med heisadkomst. Bygget ble gjort om til leiligheter i 2008. I borettslaget er det to fantastiske takterrasser med gode solforhold. Meget sentral beliggenhet med enkel og rask tilgang til alle nødvendige fasiliteter.
Høydepunkter:
- Mulig å redusere felleskostnadene til kr 6.567,- per mnd. IN-ordning
- Generøs takhøyde på opptil 2,66 m
- Store vindusflater fra gulv til tak
- Innvendig bod
- Kjellerbod på 6m²
- A-konto oppvarming og vv inkl.
- Mulighet for leie/kjøp av garasjeplass
- Adgang til felles takterrasser
- Romslige oppholdsrom
Velkommen!
Høydepunkter:
- Mulig å redusere felleskostnadene til kr 6.567,- per mnd. IN-ordning
- Generøs takhøyde på opptil 2,66 m
- Store vindusflater fra gulv til tak
- Innvendig bod
- Kjellerbod på 6m²
- A-konto oppvarming og vv inkl.
- Mulighet for leie/kjøp av garasjeplass
- Adgang til felles takterrasser
- Romslige oppholdsrom
Velkommen!
NB: Knappen for å vise hele beskrivelsen har kun en visuell effekt.
NB: Knappen for å vise hele beskrivelsen har kun en visuell effekt.
Salgsoppgaven beskriver vesentlig og lovpålagt informasjon om eiendommen
Se komplett salgsoppgaveNyttige lenker
Nærområdet
Krogsveen Majorstuen og Oslo Vest
Verdien av en god megler.
Annonseinformasjon
| FINN-kode | 444817479 |
|---|---|
| Sist endret | 12. jan. 2026 13:41 |
| Referanse | KR40.25239 |
Annonsene kan være mangelfulle i forhold til lovpålagt opplysningsplikt. Før bindende avtale inngås oppfordres interessenter til å innhente komplett informasjon fra meglerforetaket, selger eller utleier.































