Bildegalleri

Velkommen til Tonsenhagen og Selvbyggerveien 187, presentert av Schala &Partners ved Henrik Jensen, tlf. 996 92 427.
Strøken 3-R selveierleilighet oppusset i 2023 I Solrik sydvestvendt balkong I Fjernvarme/varmtvann & tv/bredbånd inkl.
Nøkkelinfo
- Boligtype
- Leilighet
- Eieform
- Eier (Selveier)
- Soverom
- 2
- Internt bruksareal
- 66 m² (BRA-i)
- Bruksareal
- 81 m²
- Eksternt bruksareal
- 15 m² (BRA-e)
- Balkong/Terrasse
- 6 m² (TBA)
- Etasje
- 3
- Byggeår
- 1966
- Energimerking
- G - Mørkegrønn
- Rom
- 3
- Tomteareal
- 2 024 m² (eiet)
Fasiliteter
Visning
Om boligen
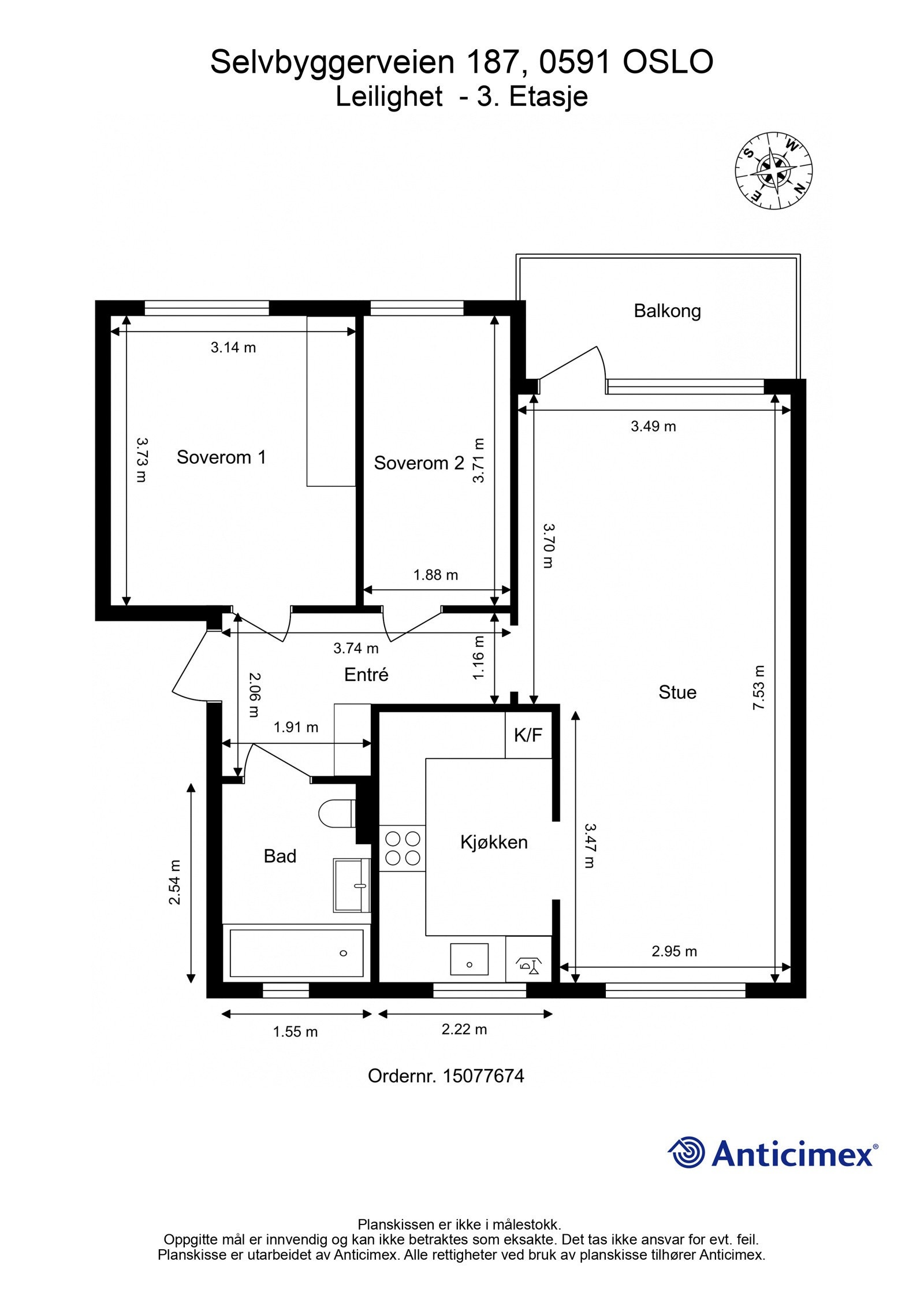
En gjennomført 3-roms selveierleilighet som er moderne oppusset i 2023. Leiligheten ligger i byggets 3. etasje, og har en gjennomgående planløsning med store, gode og lettmøblerte rom. Fra stuen har du utgang til en solrik sydvestvendt balkong med hyggelig utsyn. Hele leiligheten ble pusset opp i 2023 - her kan du flytte rett inn i en strøken leilighet!
Her bor du med kort vei til god offentlig kommunikasjon, marka, skoler og barnehage. Dette er et flott sted å bo for deg som ønsker en rolig tilværelse i nærheten av grønne friarealer, men samtidig kort vei til bylivet i Oslo sentrum.
- Gjennomgående 3-roms selveierleilighet
- Hele leiligheten er moderne oppusset i 2023
- Solrik sydvestvendt balkong på ca. 6m²
- Oppvarming med fjernvarme, varmtvann og tv/bredbånd inkl.
- Felles treningsrom og sykkelboder
Salgsoppgaven beskriver vesentlig og lovpålagt informasjon om eiendommen
Se komplett salgsoppgaveNyttige lenker
Nærområdet
Schala &Partners Sagene
Annonseinformasjon
| FINN-kode | 444669415 |
|---|---|
| Sist endret | 10. jan. 2026 03:24 |
| Referanse | 19250504 |
Annonsene kan være mangelfulle i forhold til lovpålagt opplysningsplikt. Før bindende avtale inngås oppfordres interessenter til å innhente komplett informasjon fra meglerforetaket, selger eller utleier.











































